Exposé
Objektart:
Wohnung
» Etage
» Miete
Standort: Wohnung »
Deutschland » Bayern » Nürnberg, Stadt (Kreis) » Nürnberg
Erstbezug nach Renovierung – Helle 2-Zimmer-Wohnung mit Balkon
Wohn- / Esszimmer mit neuer Kü
Das Wichtigste auf einen Blick:
| Objektnummer: | 9364238 |
Preise
| Kaltmiete (netto) | 720 € |
| Nebenkosten | 255 € |
| Heizkosten enthalten | Ja |
Flächen
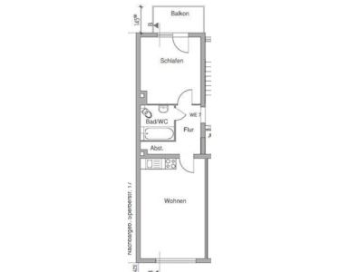
| Wohnfläche | 44 m² |
Objekt Adresse
Sperberstraße 19
90461 Nürnberg
- Bayern
Sonstige Angaben
| Baujahr | 1962 |
| Zimmer | 2 |
| Verfügbar ab | sofort |
| Bad | 1 |
| Inserat befindet sich im Stockwerk | 3 |
| Küche | Einbauküche |
| Bad | 1 |
| Balkone | 1 |
| Terrassen | 0 |
| Keller | Ja |
| Heizungsart | Zentralheizung |
| Energieträger/Befeuerung | Gas |
Objektbeschreibung
Diese attraktive, helle 2-Zimmer-Wohnung mit ca. 44 m² Wohnfläche befindet sich im 3. Obergeschoss eines gepflegten Mehrfamilienhauses in der in Nürnberg-Südstadt. Das Gebäude stammt aus dem Jahr 1962 und wurde 2024 umfangreich restauriert. Die Wohnung präsentiert sich in einem ansprechenden, modernen Zustand und überzeugt durch ihren durchdachten Grundriss sowie den sonnigen Balkon mit Blick in den ruhigen Innenhof.
Der Wohnbereich ist mit einer neuen und hochwertigen Küche ausgestattet. Das separate Schlafzimmer mit Zugang zum Balkon bietet ausreichend Platz für ein Doppelbett und einen großen Kleiderschrank. Der Balkon lädt im Sommer ideal zum Verweilen ein. Das Bad ist mit einer Duschwanne ausgestattet. In der gesamten Wohnung wurde ein neuer hochwertiger Vinylboden in Holzoptik verlegt. Ein Waschmaschinen Anschluss in einer praktischen Nische ist ebenfalls vorhanden.
Die Wohnung eignet sich ideal für Singles, Paare oder Pendler, die eine helle und ruhige Stadtwohnung mit guter Anbindung suchen.
Der Wohnbereich ist mit einer neuen und hochwertigen Küche ausgestattet. Das separate Schlafzimmer mit Zugang zum Balkon bietet ausreichend Platz für ein Doppelbett und einen großen Kleiderschrank. Der Balkon lädt im Sommer ideal zum Verweilen ein. Das Bad ist mit einer Duschwanne ausgestattet. In der gesamten Wohnung wurde ein neuer hochwertiger Vinylboden in Holzoptik verlegt. Ein Waschmaschinen Anschluss in einer praktischen Nische ist ebenfalls vorhanden.
Die Wohnung eignet sich ideal für Singles, Paare oder Pendler, die eine helle und ruhige Stadtwohnung mit guter Anbindung suchen.
Ausstattung
Balkon, Keller, Einbauküche
Bemerkungen:
•Erstbezug nach Teilrenovierung
•Heller Wohn-/Essbereich
•Offene, moderne Einbauküche (Backofen, Kühlschrank, Induktionskochfeld, Dunstabzugshaube)
•Separates Schlafzimmer
•Schöner Nord/Westbalkon
•Waschmaschinenanschluss vorhanden
•Hochwertiger Vinylboden in Holzoptik in allen Wohnräumen
•Separate Abstellfläche im Keller
•Überdachte Fahrradstellplätze im Innenhof
Bemerkungen:
•Erstbezug nach Teilrenovierung
•Heller Wohn-/Essbereich
•Offene, moderne Einbauküche (Backofen, Kühlschrank, Induktionskochfeld, Dunstabzugshaube)
•Separates Schlafzimmer
•Schöner Nord/Westbalkon
•Waschmaschinenanschluss vorhanden
•Hochwertiger Vinylboden in Holzoptik in allen Wohnräumen
•Separate Abstellfläche im Keller
•Überdachte Fahrradstellplätze im Innenhof
Lage des Objektes
Die Wohnung liegt in einer ruhigen Fahrradstraße der beliebten Südstadt – zentral, aber angenehm abgeschirmt vom Verkehr.
Tram- und Bushaltestellen sind nur ca. 2 Gehminuten entfernt, der Frankenschnellweg (A73) ist in 5 Fahrminuten erreichbar.
Einkaufsmöglichkeiten befinden sich direkt vor der Haustür: Ein Edeka-Markt, ein Bäcker und weitere Geschäfte des täglichen Bedarfs liegen nur 1 Gehminute entfernt.
Die Umgebung bietet zudem eine gute Auswahl an Restaurants, Grünflächen und Freizeitmöglichkeiten – ideal für alle, die urbanes Wohnen mit Ruhe und Komfort verbinden möchten.
Infrastruktur (im Umkreis von 5 km):
Apotheke, Lebensmittel-Discount, Allgemeinmediziner, Kindergarten, Grundschule, Öffentliche Verkehrsmittel
Tram- und Bushaltestellen sind nur ca. 2 Gehminuten entfernt, der Frankenschnellweg (A73) ist in 5 Fahrminuten erreichbar.
Einkaufsmöglichkeiten befinden sich direkt vor der Haustür: Ein Edeka-Markt, ein Bäcker und weitere Geschäfte des täglichen Bedarfs liegen nur 1 Gehminute entfernt.
Die Umgebung bietet zudem eine gute Auswahl an Restaurants, Grünflächen und Freizeitmöglichkeiten – ideal für alle, die urbanes Wohnen mit Ruhe und Komfort verbinden möchten.
Infrastruktur (im Umkreis von 5 km):
Apotheke, Lebensmittel-Discount, Allgemeinmediziner, Kindergarten, Grundschule, Öffentliche Verkehrsmittel
Sonstige Informationen
Heizungsart: Zentralheizung
Energieträger: Gas
Makleranfragen nicht erwünscht. Nach § 7 UWG sind unaufgeforderte Kontaktaufnahmen durch Makler ohne ausdrückliche Einwilligung des Empfängers verboten!
ohne-makler (OM) ist weder Anbieter noch Vermittler der Immobilie. OM betreibt eine Plattform für Immobilieneigentümer, die unter anderem die gleichzeitige Veröffentlichung einzelner Inserate auf mehreren Immobilienportalen ermöglicht. Die Inhalte dieser Inserate werden ausschließlich von Dritten verantwortet. Für die Richtigkeit, Vollständigkeit oder Rechtmäßigkeit der Angaben übernimmt OM keine Haftung. Hinweise auf mögliche Rechtsverstöße können jederzeit gemeldet werden und werden nach Prüfung umgehend bearbeitet.
Flur
Abstellecke für Waschmaschine
Schlafzimmer mit Balkonzugang
Balkon
Hausansicht
Hof
3D Ansicht
Grundriss