Exposé
Objektart:
Büro / Praxen
» Bueroflaeche
» Miete
Standort: Büro / Praxen »
Deutschland » Nordrhein-Westfalen » Düsseldorf, Stadt (Kreis) » Düsseldorf
GLOBAL GATE II - Attraktive Büroflächen in Flingern - provisionsfrei zur Miete
Außenansicht 1
Das Wichtigste auf einen Blick:
| Objektnummer: | 9363909 |
Preise
| Nebenkosten | keine Angabe |
| Mietpreis pro m² | 13 € |
Flächen
| Gesamtfläche | 566 m² |
| Bürofläche | 566 m² |
Objekt Adresse
Grafenberger Allee 295
40235 Düsseldorf
- Nordrhein-Westfalen
Sonstige Angaben
| Baujahr | 2002 |
| Verfügbar ab | kurzfristig |
| Inserat befindet sich im Stockwerk | 5 |
| Boden | Teppich |
| Fahrstuhl | Ja |
| Energieausweistyp | Verbrauch |
| Gültig bis | 2020-03-15 |
| Baujahr (laut Energieausweis) | 2002 |
| Heizungsart | Zentralheizung |
| Wesentlicher Energieträger | Fern |
| Energieträger/Befeuerung | Fernwärme |
Objektbeschreibung
Der repräsentative 10-geschossige Bürokomplex mit einer Mietfläche von über 33.000 m² setzt am Standort Düsseldorf-Grafenberg architektonische Akzente aus Glas, Stahl und Beton. Die hochmoderne Gesamtanlage besteht aus drei solitären Gebäudekomplexen mit einer zentralen Eingangssituation.
Die Gebäudekonstruktion des GLOBAL GATE stand von Anfang an unter der Prämisse, hohe wirtschaftliche Nutzungsverhältnisse zu sichern. Ob Klein-, Mittel- oder Großunternehmen.
Die Gebäudekonstruktion des GLOBAL GATE stand von Anfang an unter der Prämisse, hohe wirtschaftliche Nutzungsverhältnisse zu sichern. Ob Klein-, Mittel- oder Großunternehmen.
Ausstattung
- Spiegel-Glas-Fassade
- außenliegender Sonnenschutz
- 3 Personenaufzüge
- Teeküche
- Hohlraumboden
- Achsmaß ca. 1,30 m
- Raumtiefe ca. 5,40 m
- Raumhöhe: ca. 3,00 m
- außenliegender Sonnenschutz
- 3 Personenaufzüge
- Teeküche
- Hohlraumboden
- Achsmaß ca. 1,30 m
- Raumtiefe ca. 5,40 m
- Raumhöhe: ca. 3,00 m
Lage des Objektes
Die Grafenberger Allee ist ein abwechslungsreicher und lebendiger Business-Standort. Zahlreiche Büro- und Agentur-Niederlassungen sowie Geschäfte und Dienstleistungsbetriebe an der Grafenberger Allee sind Ausdruck für die Attraktivität des Standortes. In unmittelbarer Nähe befindet sich zudem das Naherholungsgebiet Grafenberger Wald.
Außenansicht 2
Eingangsbereich 1
Eingangsbereich 2
Eingangsbereich 3
Flur 1
Flur 2
kleines Büro 1
kleines Büro 2
Großraumbüro
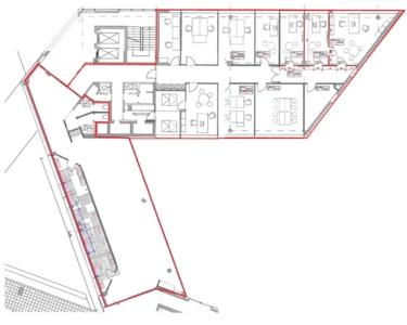
8.Obergeschoss Variante 1
8.Obergeschoss Variante 2
5.OG ca. 370m² rechte Fläche