Exposé
Objektart:
Wohnung
» Etage
» Miete
Standort: Wohnung »
Deutschland » Sachsen » Chemnitz, Stadt (Kreis) » Chemnitz
Nachmieter für 4-Zimmer-Wohnung mit Einbauküche* ab 01.04.26 gesucht
Hausansicht Balkonseite
Das Wichtigste auf einen Blick:
| Objektnummer: | 9363933 |
Preise
| Warmmiete | 990 € |
| Kaltmiete (netto) | 620 € |
| Nebenkosten | 200 € |
| Kaution | 1.240,00 € |
Flächen
| Wohnfläche | 110,93 m² |
| Nutzfläche | 110,93 m² |
Objekt Adresse
Wilhelm-Firl-Straße 10
09122 Chemnitz
Sonstige Angaben
| Baujahr | 1985 |
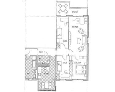
| Zimmer | 4 |
| Verfügbar ab | 01.04.2026 |
| Bad | 2 |
| Anzahl der Etagen im Haus | 10 |
| Inserat befindet sich im Stockwerk | 5 |
| Küche | Einbauküche |
| Bad | 2 |
| Bad | Dusche, Wanne, Fenster |
| Balkone | 1 |
| Fahrstuhl | Ja |
| Energieausweistyp | Verbrauch |
| Energieeffizienzklasse | B |
| Energieverbrauchkennwert | 56.50 kWh/(m²*a) |
| Heizungsart | Zentralheizung |
| Energieträger/Befeuerung | Fernwärme |
Objektbeschreibung
Es handelt sich um ein elfgeschossiges, saniertes Mehrfamilienhaus (Neubau) im Chemnitzer Stadtteil "Markersdorf". Das Objekt ist in einem sehr guten Zustand und befindet sich in einer ruhigen Nebenstraße.
Ausstattung
Gesucht wird ein Nachmieter zum 01.04.2026 für diese schöne 4-Zimmer-Wohnung.
- Raufaser weiß
- Bad mit Fenster + Wanne + Dusche
- geräumiger Flur
- XXL Balkon
- Wohnküche mit Platz für Essbereich
- XXL Wohnzimmer
- ebenerdiger Aufzug
- Lage: 4. Obergeschoss
Bilder sind aus einer grundrissgleichen Wohnung und dienen der ersten Veranschaulichung.
*Der aktuelle Mieter möchte gern seine Einbauküche an einen Nachmieter abgeben. Dies kann zu einer Besichtigung mit ihm besprochen werden. Die Bilder der Einbauküche wurden vom Mieter zur Verfügung gestellt.
- Raufaser weiß
- Bad mit Fenster + Wanne + Dusche
- geräumiger Flur
- XXL Balkon
- Wohnküche mit Platz für Essbereich
- XXL Wohnzimmer
- ebenerdiger Aufzug
- Lage: 4. Obergeschoss
Bilder sind aus einer grundrissgleichen Wohnung und dienen der ersten Veranschaulichung.
*Der aktuelle Mieter möchte gern seine Einbauküche an einen Nachmieter abgeben. Dies kann zu einer Besichtigung mit ihm besprochen werden. Die Bilder der Einbauküche wurden vom Mieter zur Verfügung gestellt.
Lage des Objektes
Das Mehrfamilienhaus liegt in dem ruhigen Randgebiet Markersdorf. Dennoch ist das Zentrum innerhalb weniger Minuten mit dem PkW oder mit den öffentlichen Verkehrsmitteln erreichbar. Der Stadtpark, die grüne Lunge der Stadt grenzt direkt an Markesdorf an. Die Anbindungen an das öffentliche Nahverkehrsnetz sind hervorragend, so dass entsprechende Haltestellen nur wenige Gehminuten entfernt liegen. Einkaufsmöglichkeiten, Schulen, Kindertagesstätten und medizinische Einrichtungen, aber auch ein breit gefächertes Unterhaltungs- und Kulturangebot finden sich in unmittelbarer Nähe. Fußläufig sind auch Parkanlagen und Restaurants zu erreichen.
Sonstige Informationen
Finden Sie Ihr neues Zuhause unter www.tag-wohnen.de und vereinbaren Sie Ihren persönlichen Besichtigungstermin. Wir freuen uns auf Ihre Anfrage.
Profitieren Sie als TAG Wohnen-Mieter von unseren Partnerangeboten und sichern Sie sich viele Sonderrabatte und günstige Konditionen u.a. in den Bereichen Unterhaltung, Umzug, Ernährung und Mobilität.
Strom und Gas von lekker Energie – Sichern Sie sich Ihren exklusiven TAG Wohnen-Bonus unter www.lekker.de/kunden/tag-wohnen
Alle Angaben in diesem Exposé wurden sorgfältig getätigt. Fehlerhafte Angaben können nicht ausgeschlossen werden, daher sind die Angaben ohne Gewähr. Maßgeblich sind die im Mietvertrag geschlossenen Vereinbarungen.
Einbauküche des Mieters
Einbauküche Mieter
Mieter App
Aufzugskabine
Balkonmuster
Musterbild Wohnzimmer
Musterbild Schlafzimmer
Musterbild Kinderzimmer 1
Musterbild Kinderzimmer 2
Flurbild Muster
Musterbild Bad mit Wanne und Dusche
Musterbild Gäste-WC mit Anschluss Waschmaschine
Musterbild Erkerbereich Küche - Sitzecke
Grundrissskizze