Exposé
Objektart:
Grundstück
» Wohnen
» Kauf
Standort: Grundstück »
Deutschland » Bayern » Rosenheim (Kreis) » Ramerberg
Ramerberg - Baugrundstück für ein Doppelhaus
Ruhig gelegen
Das Wichtigste auf einen Blick:
| Objektnummer: | 9362504 |
Preise
| Kaufpreis | 229.000 € |
| Nebenkosten | keine Angabe |
Flächen
| Grundstücksfläche | 405 m² |
| Maklerprovision | 3,57% Käuferprov. aus dem KP. inkl. 19% MwSt. |
Objekt Adresse
83561 Ramerberg
Sonstige Angaben
| Verfügbar ab | sofort |
Objektbeschreibung
Das schöne Baugrundstück mit 405 m² befindet sich in guter nördlicher Ortslage in der Gemeinde Ramerberg im Ortsteil Reitberg.
Das Baurecht für dieses Grundstück richtet sich nach §34 BauGB (Nachbarbebauung). Eine gültige Baugenehmigung liegt vor.
Das Grundstück ist frei und erschlossen..
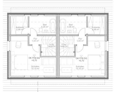
Eine Baugenehmigung für ein Doppelhaus (2 Doppelhaushälften) liegt vor:
- Grundrisse und Pläne liegen zur Einsicht vor.
- Doppelhaus mit ca. 220 m² Wohnfläche (ca. 110m² je Doppelhaushälfte bei Bau auf Bodenplatte)
- Ein Werkvertrag mit einem renomierten Hersteller für Holzständerbauweise kann übernommen werden ( 355t€ pro Doppelhaushälfte für ein KfW 40+- Haus, auf Bodenplatte inkl. Ausbau DG)
Gerne können Sie uns kontaktieren, wenn Sie weitere Informationen benötigen.
Das Baurecht für dieses Grundstück richtet sich nach §34 BauGB (Nachbarbebauung). Eine gültige Baugenehmigung liegt vor.
Das Grundstück ist frei und erschlossen..
Eine Baugenehmigung für ein Doppelhaus (2 Doppelhaushälften) liegt vor:
- Grundrisse und Pläne liegen zur Einsicht vor.
- Doppelhaus mit ca. 220 m² Wohnfläche (ca. 110m² je Doppelhaushälfte bei Bau auf Bodenplatte)
- Ein Werkvertrag mit einem renomierten Hersteller für Holzständerbauweise kann übernommen werden ( 355t€ pro Doppelhaushälfte für ein KfW 40+- Haus, auf Bodenplatte inkl. Ausbau DG)
Gerne können Sie uns kontaktieren, wenn Sie weitere Informationen benötigen.
Lage des Objektes
RAMERBERG – DER GRÜNE ORT
Das wunderschön gelegene Ramerberg befindet sich im malerischen Atteltal, einem Zufluss des Inn. Die Gemeinde liegt zwischen Rott am Inn und Wasserburg am Inn und ist Mitglied der Verwaltungsgemeinschaft Rott am Inn.
Ramerberg ist nicht nur ein ausnehmend schöner, sondern auch ein geschichtsträchtiger Ort. Unweit der Kirche mit ihrem auffallend massiven und weithin sichtbaren Kirchturm liegen in einem Waldstück rund zehn Hügelgräber aus der Hallsteinzeit.
Zum Erholen laden in Ramerberg die Wege durch die Innauen und das dortige Naturschutzgebiet ein. Ebenso beliebt sind bei den Sportbegeisterten die Langlaufloipen des Wintersportvereines Zellerreit.
Mit der Eröffnung der Bahnstrecke Rosenheim–Mühldorf ist Ramerberg an das Bahnnetz durch die Buslinie 9416 an den Regionalverkehr Oberbayern angeschlossen. Die Buslinie verbindet den Ort mit Rosenheim, Rott am Inn, Pfaffing, Edling und Wasserburg am Inn.
Durch den vermehrten Zuzug aus der Metropolregion München wird auch die restliche Infrastruktur ständig weiterentwickelt. Dies betrifft die Betreuung für Kinder, Freizeit- und Sportangebote sowie Einkaufsmöglichkeiten.
Fußläufig ist ein sehr beliebter Gasthof zu erreichen und auch weitere Einrichtungen der Gastronomie sind mit dem Fahrrad erreichbar. Alle Geschäfte des täglichen Bedarfs sowie Schulen, Ärzte sind in der nur fünf Minuten entfernten Stadt Edling verfügbar.
Das wunderschön gelegene Ramerberg befindet sich im malerischen Atteltal, einem Zufluss des Inn. Die Gemeinde liegt zwischen Rott am Inn und Wasserburg am Inn und ist Mitglied der Verwaltungsgemeinschaft Rott am Inn.
Ramerberg ist nicht nur ein ausnehmend schöner, sondern auch ein geschichtsträchtiger Ort. Unweit der Kirche mit ihrem auffallend massiven und weithin sichtbaren Kirchturm liegen in einem Waldstück rund zehn Hügelgräber aus der Hallsteinzeit.
Zum Erholen laden in Ramerberg die Wege durch die Innauen und das dortige Naturschutzgebiet ein. Ebenso beliebt sind bei den Sportbegeisterten die Langlaufloipen des Wintersportvereines Zellerreit.
Mit der Eröffnung der Bahnstrecke Rosenheim–Mühldorf ist Ramerberg an das Bahnnetz durch die Buslinie 9416 an den Regionalverkehr Oberbayern angeschlossen. Die Buslinie verbindet den Ort mit Rosenheim, Rott am Inn, Pfaffing, Edling und Wasserburg am Inn.
Durch den vermehrten Zuzug aus der Metropolregion München wird auch die restliche Infrastruktur ständig weiterentwickelt. Dies betrifft die Betreuung für Kinder, Freizeit- und Sportangebote sowie Einkaufsmöglichkeiten.
Fußläufig ist ein sehr beliebter Gasthof zu erreichen und auch weitere Einrichtungen der Gastronomie sind mit dem Fahrrad erreichbar. Alle Geschäfte des täglichen Bedarfs sowie Schulen, Ärzte sind in der nur fünf Minuten entfernten Stadt Edling verfügbar.
Sonstige Informationen
Wir freuen uns, Ihnen dieses Objekt bei einem Besichtigungstermin ausführlich vorzustellen. Aus rechtlichen Gründen bitten wir Sie, für Ihre erste Kontaktaufnahme mit uns das Kontaktformular des Portals zu nutzen, auf dem Sie diese Immobilie gefunden haben.
Finestep bietet dieses Objekt mit 3,57% Käuferprov. aus dem KP. inkl. 19% MwSt. zum Kauf an.
Für die vom Eigentümer übernommenen Objektdaten übernimmt Finestep keine Gewähr in Bezug auf die Vollständigkeit, Richtigkeit und Aktualität dieser Informationen. Irrtum und Zwischenverkauf ist vorbehalten.
Ist Ihnen das von Finestep nachgewiesene Objekt bereits bekannt, ist dies Finestep schriftlich spätestens innerhalb von fünf Werktagen unter Nennung der Quelle und des Nachweisdatums mitzuteilen. Sämtliche Unterschriften und Mitteilungen haben auch bei Übermittlung per Telefax und E-Mail Ihre Rechtsgültigkeit. Als Gerichtsstand wird München vereinbart sowie die Anwendung Deutschen Rechts.
Der Nachweis dieses Objekts ist ausschließlich für Sie persönlich bestimmt. Eine unberechtigte Weitergabe an Dritte ist daher nicht gestattet. Sollte eine weitere Person aus Ihrem Kreis ebenfalls Interesse an dem Objekt zeigen, teilen Sie uns dies bitte mit. Gerne werden wir ein eigenes, persönliches Angebot zusenden.
Die hier eingestellten Flächenangaben sind mit größter Sorgfalt recherchiert, erheben jedoch nicht den Anspruch auf Alleingültigkeit und werden lediglich unverbindlich zu Informationszwecken zur Verfügung gestellt.
Alle Angaben nach bestem Wissen und nach Angabe des Verkäufers. Irrtum und Zwischenverkauf vorbehalten. Dieses Exposé ist eine Vorabinformation, als Rechtsgrundlage gilt allein der notariell abgeschlossene Kaufvertrag.
Grundstück für 2 DHH
Lageplan
Erdgeschoss
Obergeschoss
Dachgeschoss
Ansicht