Exposé
Objektart:
Haus
» Bungalow
» Kauf
Standort: Haus »
Deutschland » Bayern » Rosenheim (Kreis) » Ramerberg
Familienbungalow Ramerberg – Neubau mit KfW 55 Standard
Finestep Immobilien GmbH
Das Wichtigste auf einen Blick:
| Objektnummer: | 9362508 |
Preise
| Kaufpreis | 503.559 € |
| Nebenkosten | keine Angabe |
Flächen
| Wohnfläche | 100,55 m² |
| Nutzfläche | 2,36 m² |
| Grundstücksfläche | 421 m² |
| Maklerprovision | 3,57 % inkl. 19 % MwSt. |
Objekt Adresse
83561 Ramerberg
Sonstige Angaben
| Baujahr | 2025 |
| Letzte Modernisierung | 2026 |
| Zimmer | 3 |
| Verfügbar ab | Nach Kundenwunsch |
| Bad | 1 |
| Küche | Offene Küche |
| Bad | 1 |
| Bad | Dusche, Wanne, Fenster |
| Garten | Ja |
Objektbeschreibung
Willkommen in Ramerberg – einer Gemeinde, die für ihre naturnahe Umgebung und ein lebendiges Miteinander bekannt ist. Auf einem sonnigen Grundstück von ca. 421 m² entsteht hier Ihr neues Zuhause: ein projektiertes Einfamilienhaus, das modernes Wohnen, durchdachte Architektur und energieeffizientes Bauen vereint.
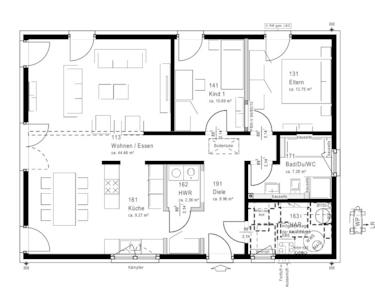
Der kompakte Bungalow-Stil bietet auf rund 103 m² Wohnfläche alles, was Familien oder Paare zum Wohlfühlen benötigen. Der großzügige Wohn- und Essbereich mit direktem Zugang in den Garten, ein Elternschlafzimmer, ein Kinderzimmer sowie Küche, Bad und zwei praktische Nebenräume schaffen ein kompaktes, funktionales Raumkonzept auf einer Ebene. Dank der Holzständerbauweise durch einen renommierten Fertighaushersteller profitieren Sie von Qualität „Made in Germany“ und hoher Flexibilität bei der Gestaltung.
Das Haus wird im Standard bereits als KfW-Effizienzhaus 55 ausgeführt und ist mit einer Luft-Wasser-Wärmepumpe, Fußbodenheizung im Erdgeschoss, dreifach verglasten Fenstern und einer kontrollierten Be- und Entlüftung mit Wärmerückgewinnung ausgestattet. So wohnen Sie nicht nur zukunftssicher, sondern auch besonders energieeffizient und kostensparend.
Entgegen der Bilder ist das Grundstück schon freigelegt worden.
Neben den Wohnflächen besteht auch die Möglichkeit ein komplettes Kellergeschoss mit ca. 111 m² Nutzfläche zusätzlich zu erwerben.
Die Baukosten für das Haus belaufen sich auf rund 304.000 €, hinzu kommen 239.000 € für das Grundstück. Die 3,57 % Maklerprovision gelten nur auf den Grundstücksanteil. Weitere Ausgaben wie Baunebenkosten, Erdarbeiten oder Hausanschlüsse sind separat zu berücksichtigen.
***Sie kaufen den Grundstücksanteil für 239.000 Euro. Außerdem wird ein Werkvertrag mit unserem renommierten Partner „Massa“ geschlossen, der das Haus zum Festpreis in der Ausbaustufe „fast schlüsselfertig plus“ anbietet. Lediglich Parkett, Innentüren und Malerarbeiten sind nicht im Angebot enthalten und können hinzugebucht werden. Übliche Baunebenkosten wie Anschlusskosten und Beiträge für die Gemeinde kommen zum angezeigten Preis noch hinzu. Lassen Sie sich gerne von uns beraten. Es ist außerdem möglich, das Grundstück ohne die Bauleistung von Massa zu erwerben, eine andere Ausbaustufe zu wählen oder alternativ einen anderen Hausbauer zu beauftragen.
Der kompakte Bungalow-Stil bietet auf rund 103 m² Wohnfläche alles, was Familien oder Paare zum Wohlfühlen benötigen. Der großzügige Wohn- und Essbereich mit direktem Zugang in den Garten, ein Elternschlafzimmer, ein Kinderzimmer sowie Küche, Bad und zwei praktische Nebenräume schaffen ein kompaktes, funktionales Raumkonzept auf einer Ebene. Dank der Holzständerbauweise durch einen renommierten Fertighaushersteller profitieren Sie von Qualität „Made in Germany“ und hoher Flexibilität bei der Gestaltung.
Das Haus wird im Standard bereits als KfW-Effizienzhaus 55 ausgeführt und ist mit einer Luft-Wasser-Wärmepumpe, Fußbodenheizung im Erdgeschoss, dreifach verglasten Fenstern und einer kontrollierten Be- und Entlüftung mit Wärmerückgewinnung ausgestattet. So wohnen Sie nicht nur zukunftssicher, sondern auch besonders energieeffizient und kostensparend.
Entgegen der Bilder ist das Grundstück schon freigelegt worden.
Neben den Wohnflächen besteht auch die Möglichkeit ein komplettes Kellergeschoss mit ca. 111 m² Nutzfläche zusätzlich zu erwerben.
Die Baukosten für das Haus belaufen sich auf rund 304.000 €, hinzu kommen 239.000 € für das Grundstück. Die 3,57 % Maklerprovision gelten nur auf den Grundstücksanteil. Weitere Ausgaben wie Baunebenkosten, Erdarbeiten oder Hausanschlüsse sind separat zu berücksichtigen.
***Sie kaufen den Grundstücksanteil für 239.000 Euro. Außerdem wird ein Werkvertrag mit unserem renommierten Partner „Massa“ geschlossen, der das Haus zum Festpreis in der Ausbaustufe „fast schlüsselfertig plus“ anbietet. Lediglich Parkett, Innentüren und Malerarbeiten sind nicht im Angebot enthalten und können hinzugebucht werden. Übliche Baunebenkosten wie Anschlusskosten und Beiträge für die Gemeinde kommen zum angezeigten Preis noch hinzu. Lassen Sie sich gerne von uns beraten. Es ist außerdem möglich, das Grundstück ohne die Bauleistung von Massa zu erwerben, eine andere Ausbaustufe zu wählen oder alternativ einen anderen Hausbauer zu beauftragen.
Ausstattung
IHRE AUSSTATTUNG IM ÜBERBLICK:
- Projektiertes Einfamilienhaus in Holzständerbauweise (renommierter Fertighaushersteller)
- KfW-55-Effizienzhaus-Standard
- Errichtung auf Bodenplatte
- Luft-Wasser-Wärmepumpe mit Fußbodenheizung im Erdgeschoss
- Kontrollierte Be- und Entlüftung mit Wärmerückgewinnung
- Dreifach verglaste Markenfenster
- Massa-Klima-Plus-Wand mit hoher Wärme- und Schalldämmung
- Großzügiger Wohn-/Essbereich mit bodentiefen Fenstern und Gartenzugang
- Serienmäßig erhöhte Wände für großzügiges Raumgefühl
- Modernes Bad mit Dusche/WC + separates Gäste-WC
- Separater Hauswirtschaftsraum im Erdgeschoss
- Flexible Grundrissgestaltung möglich
- TÜV-geprüfte Markenqualität, 5 Jahre Gewährleistung
- Bauzeit mit Festpreisgarantie (ca. 15–21 Monate)
- Persönliche Bauleitung und individuelle Kundenbetreuung
- uvm.
- Projektiertes Einfamilienhaus in Holzständerbauweise (renommierter Fertighaushersteller)
- KfW-55-Effizienzhaus-Standard
- Errichtung auf Bodenplatte
- Luft-Wasser-Wärmepumpe mit Fußbodenheizung im Erdgeschoss
- Kontrollierte Be- und Entlüftung mit Wärmerückgewinnung
- Dreifach verglaste Markenfenster
- Massa-Klima-Plus-Wand mit hoher Wärme- und Schalldämmung
- Großzügiger Wohn-/Essbereich mit bodentiefen Fenstern und Gartenzugang
- Serienmäßig erhöhte Wände für großzügiges Raumgefühl
- Modernes Bad mit Dusche/WC + separates Gäste-WC
- Separater Hauswirtschaftsraum im Erdgeschoss
- Flexible Grundrissgestaltung möglich
- TÜV-geprüfte Markenqualität, 5 Jahre Gewährleistung
- Bauzeit mit Festpreisgarantie (ca. 15–21 Monate)
- Persönliche Bauleitung und individuelle Kundenbetreuung
- uvm.
Lage des Objektes
RAMERBERG – DER GRÜNE ORT
Das wunderschön gelegene Ramerberg befindet sich im malerischen Atteltal, einem Zufluss des Inn. Die Gemeinde liegt zwischen Rott am Inn und Wasserburg am Inn und ist Mitglied der Verwaltungsgemeinschaft Rott am Inn.
Ramerberg ist nicht nur ein ausnehmend schöner, sondern auch ein geschichtsträchtiger Ort. Unweit der Kirche mit ihrem auffallend massiven und weithin sichtbaren Kirchturm liegen in einem Waldstück rund zehn Hügelgräber aus der Hallsteinzeit.
Zum Erholen laden in Ramerberg die Wege durch die Innauen und das dortige Naturschutzgebiet ein. Ebenso beliebt sind bei den Sportbegeisterten die Langlaufloipen des Wintersportvereines Zellerreit.
Mit der Eröffnung der Bahnstrecke Rosenheim–Mühldorf ist Ramerberg an das Bahnnetz durch die Buslinie 9416 an den Regionalverkehr Oberbayern angeschlossen. Die Buslinie verbindet den Ort mit Rosenheim, Rott am Inn, Pfaffing, Edling und Wasserburg am Inn.
Durch den vermehrten Zuzug aus der Metropolregion München wird auch die restliche Infrastruktur ständig weiterentwickelt. Dies betrifft die Betreuung für Kinder, Freizeit- und Sportangebote sowie Einkaufsmöglichkeiten.
Fußläufig ist ein sehr beliebter Gasthof zu erreichen und auch weitere Einrichtungen der Gastronomie sind mit dem Fahrrad erreichbar. Alle Geschäfte des täglichen Bedarfs sowie Schulen, Ärzte sind in der nur fünf Minuten entfernten Stadt Edling verfügbar.
Das wunderschön gelegene Ramerberg befindet sich im malerischen Atteltal, einem Zufluss des Inn. Die Gemeinde liegt zwischen Rott am Inn und Wasserburg am Inn und ist Mitglied der Verwaltungsgemeinschaft Rott am Inn.
Ramerberg ist nicht nur ein ausnehmend schöner, sondern auch ein geschichtsträchtiger Ort. Unweit der Kirche mit ihrem auffallend massiven und weithin sichtbaren Kirchturm liegen in einem Waldstück rund zehn Hügelgräber aus der Hallsteinzeit.
Zum Erholen laden in Ramerberg die Wege durch die Innauen und das dortige Naturschutzgebiet ein. Ebenso beliebt sind bei den Sportbegeisterten die Langlaufloipen des Wintersportvereines Zellerreit.
Mit der Eröffnung der Bahnstrecke Rosenheim–Mühldorf ist Ramerberg an das Bahnnetz durch die Buslinie 9416 an den Regionalverkehr Oberbayern angeschlossen. Die Buslinie verbindet den Ort mit Rosenheim, Rott am Inn, Pfaffing, Edling und Wasserburg am Inn.
Durch den vermehrten Zuzug aus der Metropolregion München wird auch die restliche Infrastruktur ständig weiterentwickelt. Dies betrifft die Betreuung für Kinder, Freizeit- und Sportangebote sowie Einkaufsmöglichkeiten.
Fußläufig ist ein sehr beliebter Gasthof zu erreichen und auch weitere Einrichtungen der Gastronomie sind mit dem Fahrrad erreichbar. Alle Geschäfte des täglichen Bedarfs sowie Schulen, Ärzte sind in der nur fünf Minuten entfernten Stadt Edling verfügbar.
Sonstige Informationen
Wir freuen uns, Ihnen dieses Objekt bei einem Besichtigungstermin ausführlich vorzustellen. Aus rechtlichen Gründen bitten wir Sie, für Ihre erste Kontaktaufnahme mit uns das Kontaktformular des Portals zu nutzen, auf dem Sie diese Immobilie gefunden haben. Finestep bietet dieses Objekt provisionspflichtig zum Kauf an. Für die vom Eigentümer übernommenen Objektdaten übernimmt Finestep keine Gewähr in Bezug auf die Vollständigkeit, Richtigkeit und Aktualität dieser Informationen. Irrtum und Zwischenverkauf ist vorbehalten. Ist Ihnen das von Finestep nachgewiesene Objekt bereits bekannt, ist dies Finestep schriftlich spätestens innerhalb von fünf Werktagen unter Nennung der Quelle und des Nachweisdatums mitzuteilen. Sämtliche Unterschriften und Mitteilungen haben auch bei Übermittlung per Telefax und E-Mail Ihre Rechtsgültigkeit. Als Gerichtsstand wird München vereinbart sowie die Anwendung Deutschen Rechts. Alle Angaben nach bestem Wissen und nach Angabe des Verkäufers. Irrtum und Zwischenverkauf vorbehalten. Dieses Exposé ist eine Vorabinformation, als Rechtsgrundlage gilt allein der notariell abgeschlossene Kaufvertrag Finestep Immobilien GmbH Humboldtstr. 8 81543 München www.finestep.de
Komfortables Wohnen
Eigens Dach, aber verkleinern?
Südseite
Gestalten Sie mit!
Lageplan Nah
Lageplan Fern
Panorama
ERDGESCHOSS
MIKROLAGE
MAKROLAGE