Exposé
Objektart:
Haus
» Zweifamilienhaus
» Kauf
Standort: Haus »
Deutschland » Baden-Württemberg » Calw (Kreis) » Wildberg
Mit Fördergelder zu mehr Wohnkomfort! Zweifamilienhaus mit Mietwohnung in Wildberg-Effringen
Schönes Fachwerkhaus mit Anbau in Effringen
Das Wichtigste auf einen Blick:
| Objektnummer: | 9362089 |
Preise
| Kaufpreis | 295.000 € |
| Nebenkosten | keine Angabe |
Flächen
| Wohnfläche | 180 m² |
Objekt Adresse
72218 Wildberg
- Baden-Württemberg
Sonstige Angaben
| Baujahr | 1910 |
| Zimmer | 10 |
| Verfügbar ab | 01.01.2026 |
| Bad | 3 |
| Küche | Einbauküche |
| Bad | 3 |
| Bad | Dusche, Wanne, Fenster |
| Keller | Ja |
| Energieausweistyp | Bedarfsausweis |
| Ausstellungsdatum | 20. 02. 2024 |
| Gültig bis | 20.02.2034 |
| Energieeffizienzklasse | H |
| Endenergiebedarf | 286 kWh/(m²*a) |
| Heizungsart | Zentralheizung |
| Wesentlicher Energieträger | Öl |
| Energieträger/Befeuerung | Öl |
Objektbeschreibung
***Nach dem Stellen einer Anfrage erhalten Sie automatisiert unser ausführliches Exposé mit Adresse, allen Bildern und dem Zugang zum 360°-Rundgang der Immobilie. Die Fotos zeigen zum Teil Visualisierungen und Einrichtungsideen.***
Eigene Idee verwirklichen: Ideal für eine oder zwei Familien sowie für Personen, die Wohnen und Vermieten miteinander verbinden möchten.
Jetzt bis zu 3x 150.000 Euro staatliche Fördermöglichkeiten geltend machen und mit top Finanzierung ins Eigenheim.
Ein Gebäude, drei Möglichkeiten:
- Umbau zu einem Einfamilienhaus mit zusätzlicher Mietwohnung
- Einziehen in einen Hausteil und die andere Haushälfte vollständig vermieten
- Für Anleger: Das Haus in drei Wohnungen aufteilen und alle vermieten
Dieses charmante Zweifamilienhaus vereint den Charakter eines historischen Fachwerkhauses mit den Vorteilen eines soliden Anbaus aus den 1980er Jahren. Das Anwesen wurde 2024 bereits teilweise renoviert und bietet eine hervorragende Grundlage für individuelle Gestaltungsideen. Besonders attraktiv ist die Möglichkeit, Wohnen und Vermieten miteinander zu kombinieren – ideal für Familien oder Paare, die gleichzeitig Einnahmen durch Vermietung erzielen möchten.
Im Jahr 2024 wurde das Dach teilweise erneuert, zudem wurden zwei Bäder vollständig modernisiert. Ein großzügiger Dachboden eröffnet zusätzliches Ausbaupotenzial für weiteren Wohn- oder Nutzraum. Für Fahrzeuge und Hobbys stehen eine geräumige Doppelgarage sowie zusätzliche Zimmer zur Verfügung. Im Erdgeschoss entstand 2024 ein neues Badezimmer; dieser Bereich eignet sich hervorragend als separate Mietwohnung. Zwar verfügt das Haus über keinen Garten, jedoch besteht die Möglichkeit, einen Balkon oder eine Veranda anzubauen, um zusätzlichen Freiraum im Außenbereich zu schaffen. Ein großer Hof bietet Kindern vielfältige Möglichkeiten zum Spielen und Toben.
Aufteilung – Anbau der 1980er Jahre:
Rechter Hausteil (Anbau, Baujahr 1980): Der Anbau überzeugt mit einem hellen und freundlichen Wohn-Essbereich, der viel Platz für das Familienleben bietet. Eine Küche ergänzt das Raumangebot. Im Obergeschoss befinden sich ein Elternschlafzimmer sowie ein Kinderzimmer – alternativ nutzbar als Büro. Das Badezimmer in diesem Hausteil wurde bislang nicht renoviert und bietet die Chance, eigene Vorstellungen umzusetzen.
Historischer Altbau:
Der Altbau strahlt besonderen Charme aus und eröffnet vielseitige Nutzungsmöglichkeiten. Im Erdgeschoss finden Sie ein gemütliches Wohn-Esszimmer, das auch als Schlafzimmer genutzt werden kann, eine Kaminstube sowie ein Gäste- oder Hobbyzimmer. Ein neu errichtetes Badezimmer (2024) mit Hobbyküche rundet das Erdgeschoss ab und kann mit wenigen Umbauten als Miet- oder Ferienwohnung genutzt werden. Im Obergeschoss liegt der Hauptwohnbereich mit einem großzügigen Wohn-Esszimmer, zwei hellen Schlafzimmern, einem Büro oder Gästezimmer, einer Küche sowie einem ebenfalls 2024 renovierten Badezimmer.
Besonders interessant für Käufer*:
Da es sich um ein Haus mit Baujahr vor 1950 handelt, profitieren Sie von attraktiven Förderprogrammen für die energetische Sanierung. Zuschüsse und zinsgünstige Kredite unterstützen Maßnahmen wie Dämmung, Heizungstausch oder die Modernisierung von Bädern und Fenstern. So können Sie nicht nur den historischen Charme bewahren, sondern gleichzeitig die Energiekosten deutlich senken – eine Investition, die sich doppelt lohnt.
Hinweis: Die Bilder enthalten teilweise Visualisierungen und Einrichtungsideen der Räume. Mit Ihrer Anfrage erhalten Sie unser umfangreiches Exposé sowie einen 360-Grad-Rundgang, der Ihnen einen detaillierten Eindruck der Räumlichkeiten vermittelt.
*Irrtümer vorbehalten, bitte informieren Sie sich hinsichtlich aktueller Förderprogramme von Bund und Länder.
Eigene Idee verwirklichen: Ideal für eine oder zwei Familien sowie für Personen, die Wohnen und Vermieten miteinander verbinden möchten.
Jetzt bis zu 3x 150.000 Euro staatliche Fördermöglichkeiten geltend machen und mit top Finanzierung ins Eigenheim.
Ein Gebäude, drei Möglichkeiten:
- Umbau zu einem Einfamilienhaus mit zusätzlicher Mietwohnung
- Einziehen in einen Hausteil und die andere Haushälfte vollständig vermieten
- Für Anleger: Das Haus in drei Wohnungen aufteilen und alle vermieten
Dieses charmante Zweifamilienhaus vereint den Charakter eines historischen Fachwerkhauses mit den Vorteilen eines soliden Anbaus aus den 1980er Jahren. Das Anwesen wurde 2024 bereits teilweise renoviert und bietet eine hervorragende Grundlage für individuelle Gestaltungsideen. Besonders attraktiv ist die Möglichkeit, Wohnen und Vermieten miteinander zu kombinieren – ideal für Familien oder Paare, die gleichzeitig Einnahmen durch Vermietung erzielen möchten.
Im Jahr 2024 wurde das Dach teilweise erneuert, zudem wurden zwei Bäder vollständig modernisiert. Ein großzügiger Dachboden eröffnet zusätzliches Ausbaupotenzial für weiteren Wohn- oder Nutzraum. Für Fahrzeuge und Hobbys stehen eine geräumige Doppelgarage sowie zusätzliche Zimmer zur Verfügung. Im Erdgeschoss entstand 2024 ein neues Badezimmer; dieser Bereich eignet sich hervorragend als separate Mietwohnung. Zwar verfügt das Haus über keinen Garten, jedoch besteht die Möglichkeit, einen Balkon oder eine Veranda anzubauen, um zusätzlichen Freiraum im Außenbereich zu schaffen. Ein großer Hof bietet Kindern vielfältige Möglichkeiten zum Spielen und Toben.
Aufteilung – Anbau der 1980er Jahre:
Rechter Hausteil (Anbau, Baujahr 1980): Der Anbau überzeugt mit einem hellen und freundlichen Wohn-Essbereich, der viel Platz für das Familienleben bietet. Eine Küche ergänzt das Raumangebot. Im Obergeschoss befinden sich ein Elternschlafzimmer sowie ein Kinderzimmer – alternativ nutzbar als Büro. Das Badezimmer in diesem Hausteil wurde bislang nicht renoviert und bietet die Chance, eigene Vorstellungen umzusetzen.
Historischer Altbau:
Der Altbau strahlt besonderen Charme aus und eröffnet vielseitige Nutzungsmöglichkeiten. Im Erdgeschoss finden Sie ein gemütliches Wohn-Esszimmer, das auch als Schlafzimmer genutzt werden kann, eine Kaminstube sowie ein Gäste- oder Hobbyzimmer. Ein neu errichtetes Badezimmer (2024) mit Hobbyküche rundet das Erdgeschoss ab und kann mit wenigen Umbauten als Miet- oder Ferienwohnung genutzt werden. Im Obergeschoss liegt der Hauptwohnbereich mit einem großzügigen Wohn-Esszimmer, zwei hellen Schlafzimmern, einem Büro oder Gästezimmer, einer Küche sowie einem ebenfalls 2024 renovierten Badezimmer.
Besonders interessant für Käufer*:
Da es sich um ein Haus mit Baujahr vor 1950 handelt, profitieren Sie von attraktiven Förderprogrammen für die energetische Sanierung. Zuschüsse und zinsgünstige Kredite unterstützen Maßnahmen wie Dämmung, Heizungstausch oder die Modernisierung von Bädern und Fenstern. So können Sie nicht nur den historischen Charme bewahren, sondern gleichzeitig die Energiekosten deutlich senken – eine Investition, die sich doppelt lohnt.
Hinweis: Die Bilder enthalten teilweise Visualisierungen und Einrichtungsideen der Räume. Mit Ihrer Anfrage erhalten Sie unser umfangreiches Exposé sowie einen 360-Grad-Rundgang, der Ihnen einen detaillierten Eindruck der Räumlichkeiten vermittelt.
*Irrtümer vorbehalten, bitte informieren Sie sich hinsichtlich aktueller Förderprogramme von Bund und Länder.
Lage des Objektes
Das Haus befindet sich im idyllischen Wildberger Teilort Effringen, mitten im Schwarzwald. Hier genießen Sie die Ruhe und Nähe zur Natur, ohne auf eine gute Infrastruktur verzichten zu müssen. Schulen, Kindergärten und Einkaufsmöglichkeiten sind in Wildberg und den umliegenden Orten schnell erreichbar.
Gute Verkehrsanbindung: Nagold, Calw und Stuttgart sind gut erreichbar, und die Städte Böblingen sowie Sindelfingen liegen nur etwa 30–40 Minuten entfernt. Damit ist das Objekt besonders interessant für Berufspendler oder Familien.
Die Lage bietet Ihnen die perfekte Balance zwischen ländlicher Idylle und urbaner Nähe – ein Ort, an dem Sie sich sofort zuhause fühlen werden.
Gute Verkehrsanbindung: Nagold, Calw und Stuttgart sind gut erreichbar, und die Städte Böblingen sowie Sindelfingen liegen nur etwa 30–40 Minuten entfernt. Damit ist das Objekt besonders interessant für Berufspendler oder Familien.
Die Lage bietet Ihnen die perfekte Balance zwischen ländlicher Idylle und urbaner Nähe – ein Ort, an dem Sie sich sofort zuhause fühlen werden.
Sonstige Informationen
Derzeit wird durch einen Architekten eine genaue Wohnflächenberechnung erstellt. Die hier ausgeschriebene Wohnfläche kann von der Realität abweichen und basiert auf den aktuellen Angaben der Bauakte.
Um Ihre Anfrage/Ihren Besichtigungswunsch bearbeiten zu können, benötigen wir zuerst IMMER eine schriftliche Anfrage über den Button „Anbieter kontaktieren“ im Immobilienportal!
Bei vollständiger Angabe Ihrer Kontaktdaten (ADRESSE und RUFNUMMER) erhalten Sie umgehend unser Exposé.
Die Objektbeschreibung beruht ganz oder zum Teil auf Angaben des Eigentümers. Für die Richtigkeit oder Vollständigkeit übernehmen wir keine Gewähr. Dieses Exposé wurde teilweise mithilfe eines KI-Tools erstellt.
Sie wollen Ihre Immobilie ebenfalls professionell vermarkten, rufen Sie uns an, wir stehen Ihnen von Mo. bis Sa. von 9.00 - 19.00 Uhr persönlich zur Seite, über 40.000 aktive Interessenten warten bereits auf Sie. Wir sind die deutschlandweiten Immobilienprofis mit vielen tausend Interessenten und hunderten an Objekten.
Rufen Sie uns an, wir beraten Sie gerne!
Ihr Ansprechpartner
Christian Mühleisen
Tel.: +49 162 986 9040
Schönes Fachwerkhaus mit Anbau in Effringen (KI)
Außenansicht mit Garage (KI)
Blick vom Hof (KI)
Flur Eingangsbereich (Anbau) (KI)
Wohnesszimmer im Altbau (KI)
Wohnesszimmer im Altbau mit Kamin (KI)
Elternschlafzimmer im Altbau (KI)
Büro/Gästezimmer im Altbau (KI)
Kinderzimmer im Altbau (KI)
Küche im Altbau (KI)
Schlafzimmer EG (Einliegerwohnung, KI)
Badezimmer 1. OG Altbau
Kaminzimmer Altbau EG Einliegerwohnung (KI)
Wohnesszimmer Altbau EG Einliegerwohnung (KI)
Küche Altbau EG Einliegerwohnung (KI)
Badezimmer Altbau EG Einliegerwohnung
Wohnzimmer Anbau 1. OG (KI)
Küche Anbau 1. OG (KI)
Küche Anbau 1. OG (KI)
Büro/Kinderzimmer Anbau 2. OG (KI)
Elternschlafzimmer Anbau 2. OG (KI)
Badezimmer Anbau 2. OG (KI)
Anbau 2. Stock
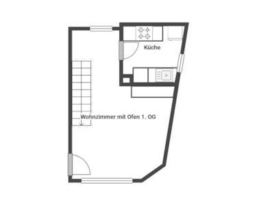
Anbau 1. Stock
Altbau 1. OG
Anbau EG mit Garage
Mietswohnung EG Altbau