Exposé
Objektart:
Wohnung
» Dachgeschoss
» Miete
Standort: Wohnung »
Deutschland » Niedersachsen » Hildesheim (Kreis) » Hildesheim
Sonnige Atelierwohnung - mit kleinem Büro möglich
Wohnbereich
Das Wichtigste auf einen Blick:
| Objektnummer: | 9361528 |
Preise
| Kaltmiete (netto) | 750 € |
| Nebenkosten | 70 € |
| Kaution | 2.250 € |
Flächen
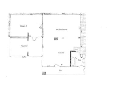
| Wohnfläche | 95 m² |
Objekt Adresse
31134 Hildesheim
- Niedersachsen
Sonstige Angaben
| Baujahr | 1960 |
| Zimmer | 3 |
| Verfügbar ab | sofort |
| Bad | 1 |
| Inserat befindet sich im Stockwerk | 4 |
| Küche | Einbauküche |
| Bad | 1 |
| Bad | Wanne |
| Boden | Fliesen, Laminat |
| Keller | Ja |
| Energieausweistyp | Verbrauch |
| Energieeffizienzklasse | C |
| Energieverbrauchkennwert | 97 kWh/(m²*a) |
| Heizungsart | Zentralheizung |
| Energieträger/Befeuerung | Gas |
Objektbeschreibung
Helle sonnige Dachgeschosswohnung in zentraler Lage von Hildesheim. Durch die strassenabgewandte Seite mit einem wunderschönen Ausblick über die Dächer von Hildesheim bietet die Wohnung absolute Ruhe. Der Wohnbereich besitzt große Atelierfenster zur Südseite und ist deshalb besonders hell gestaltet.
Die Wohnung besteht aus drei großen Räumen und einem hübschen Wannenbad mit Fenster.
Die Wohnung besteht aus drei großen Räumen und einem hübschen Wannenbad mit Fenster.
Ausstattung
Keller, Vollbad, Einbauküche, Laminat, Fliesen
Bemerkungen:
- Laminat in allen Wohnbereichen
- Einbauküche mit Herd, Backofen und Spülmaschine
- Wannenbad mit Fenster, Fliesen in italienisch-toskanischem Stil mit Muschelfries
- Waschmaschine
- Laminat in allen Wohnräumen
- Gegensprechanlage
Bemerkungen:
- Laminat in allen Wohnbereichen
- Einbauküche mit Herd, Backofen und Spülmaschine
- Wannenbad mit Fenster, Fliesen in italienisch-toskanischem Stil mit Muschelfries
- Waschmaschine
- Laminat in allen Wohnräumen
- Gegensprechanlage
Lage des Objektes
Die Wohnung liegt in einer ruhigen Nebenstrasse im Zentrum von Hildesheim.
Sämtliche Verkehrsmittel, Schulen und Einkaufsmöglichkeiten liegen in unmittelbarer Nähe. In der Umgebung sind mehrere Parkmöglichkeiten gegeben.
Infrastruktur (im Umkreis von 5 km):
Apotheke, Lebensmittel-Discount, Allgemeinmediziner, Grundschule, Gymnasium, Öffentliche Verkehrsmittel
Sämtliche Verkehrsmittel, Schulen und Einkaufsmöglichkeiten liegen in unmittelbarer Nähe. In der Umgebung sind mehrere Parkmöglichkeiten gegeben.
Infrastruktur (im Umkreis von 5 km):
Apotheke, Lebensmittel-Discount, Allgemeinmediziner, Grundschule, Gymnasium, Öffentliche Verkehrsmittel
Sonstige Informationen
Heizungsart: Zentralheizung
Energieträger: Gas
Erstkontakt bitte per E-Mail mit Angabe Ihere Telefon-Nr.
Machen Sie bitte Angaben über Ihre private und berufliche Situation einschließlich Nettoverdienst und Anzahl Personen.
Makleranfragen nicht erwünscht. Nach § 7 UWG sind unaufgeforderte Kontaktaufnahmen durch Makler ohne ausdrückliche Einwilligung des Empfängers verboten!
ohne-makler (OM) ist weder Anbieter noch Vermittler der Immobilie. OM betreibt eine Plattform für Immobilieneigentümer, die unter anderem die gleichzeitige Veröffentlichung einzelner Inserate auf mehreren Immobilienportalen ermöglicht. Die Inhalte dieser Inserate werden ausschließlich von Dritten verantwortet. Für die Richtigkeit, Vollständigkeit oder Rechtmäßigkeit der Angaben übernimmt OM keine Haftung. Hinweise auf mögliche Rechtsverstöße können jederzeit gemeldet werden und werden nach Prüfung umgehend bearbeitet.
Einbauküche u. Wohnbereich
Schlafzimmer
Badezimmer
Badezimmer
Grundriss