Exposé
Objektart:
Büro / Praxen
» Bueroflaeche
» Miete
Standort: Büro / Praxen »
Deutschland » Berlin » Berlin, Stadt (Kreis) » Berlin
Gewerbeeinheit Büro/Lager Buckower Damm
Aussenansicht
Das Wichtigste auf einen Blick:
| Objektnummer: | 9361137 |
Preise
| Kaltmiete (netto) | 1.250 € |
| Nebenkosten | 180 € |
| Kaution | 5.000 € |
Flächen
| Gesamtfläche | 120 m² |
| Bürofläche | 120 m² |
| Maklerprovision | keine Provision, courtagefrei |
Objekt Adresse
Buckower Damm 235
12349 Berlin
- Berlin
Sonstige Angaben
| Verfügbar ab | 01.01.2026 |
| Anzahl der Etagen im Haus | 1 |
| Inserat befindet sich im Stockwerk | 0 |
| Heizungsart | Zentralheizung |
| Energieträger/Befeuerung | Öl |
Objektbeschreibung
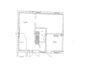
Vermietet wird auf dem Hof des Grundstücks Buckower Damm 235 eine Gewerbeeinheit mit Büro, Aufenthaltsraum und Lagerfläche im Erdgeschoss mit ca. 120 m². Auf dem Gelände ist noch eine Tischlerei/Küchenstudio angesiedelt.
Ausstattung
Bemerkungen:
Büro und Raum dahinter ist mit Laminat ausgestattet. Zum Lager gibt es einen 2. größeren Eingang.
Lage des Objektes
Die Gewerbeeinheit befindet sich nahe der Kreuzung Buckower Damm/ Johannisthaler Chaussee und ist durch mehrere Buslinien verkehrstechnisch gut angebunden. Nächste AB Auffahrten (Gradestr. sowie Johannisthaler Chaussee) ca. 4 Km entfernt.
Sonstige Informationen
Heizungsart: Zentralheizung
Energieträger: Öl
Energieausweis nicht vorhanden
Energieausweis ist beantragt.
Makleranfragen nicht erwünscht. Nach § 7 UWG sind unaufgeforderte Kontaktaufnahmen durch Makler ohne ausdrückliche Einwilligung des Empfängers verboten!
ohne-makler (OM) ist weder Anbieter noch Vermittler der Immobilie. OM betreibt eine Plattform für Immobilieneigentümer, die unter anderem die gleichzeitige Veröffentlichung einzelner Inserate auf mehreren Immobilienportalen ermöglicht. Die Inhalte dieser Inserate werden ausschließlich von Dritten verantwortet. Für die Richtigkeit, Vollständigkeit oder Rechtmäßigkeit der Angaben übernimmt OM keine Haftung. Hinweise auf mögliche Rechtsverstöße können jederzeit gemeldet werden und werden nach Prüfung umgehend bearbeitet.
Hinterer Teil Lager
Aufenthaltsraum o.ä.
Büro Fenster zum Hof
Büro
Raum hinter Büro
Raum hinter Büro