Exposé
Objektart:
Hallen / Lager / Produktion
» Produktion
» Kauf
Standort: Hallen / Lager / Produktion »
Deutschland » Bayern » Regensburg (Kreis) » Regenstauf
IB3871VB Modernes Gewerbeanwesen / Regenstauf
Bild/Grundriss 1
Das Wichtigste auf einen Blick:
| Objektnummer: | 9360320 |
Preise
| Kaufpreis | 1.200.000 € |
| Nebenkosten | keine Angabe |
Flächen
| Nutzfläche | 1.016 m² |
| Gesamtfläche | 2.685 m² |
| Grundstücksfläche | 2.685 m² |
| Maklerprovision | Ortsübliche Provision vom Käufer/Mieter nur im Erfolgsfalle |
Objekt Adresse
93128 Regenstauf
- Bayern
Sonstige Angaben
| Baujahr | 2014 |
| Letzte Modernisierung | 2024 |
| Zimmer | 13 |
| Verfügbar ab | sofort |
| Küche | Einbauküche |
| Boden | Estrich |
| Energieträger/Befeuerung | Gas |
Objektbeschreibung
In Regenstauf bieten wir ein modernes und verkehrsgünstig gelegenes Gewerbeanwesen zum Verkauf und Vermietung an. Über die nahe Autobahn A 93 und Bundesstraße B 15 ist eine hervorragende Anbindung gegeben. Eine Bushaltestelle befindet sich in der Nähe.
Der Zugang zu den Flächen erfolgt über RFID-Chips. Eine Internetverbindung mit bis zu 250 MBits/s ist möglich.
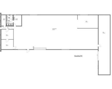
Die Halle mit Betonboden ist sowohl über ein elektrisches ca. 4 x 5 m großes Rolltor und nebenliegender Türe sowie vom Bürobereich im Erdgeschoss zu erreichen. Die Beheizung erfolgt über eine Gas-Dunkelstrahlerheizung. Die Glaselemente im Sektionaltor, viele Fenster sowie ein Oberlicht sorgen für viel Tageslicht. Mehrere Leuchten sind zusätzlich vorhanden. Auf einer Höhe von ca. 4 m befindet sich der Kran mit einer Traglast von 3,2 t. Die Traufhöhe beträgt ca. 5 m. Das abgetrennte Meisterbüro verfügt über ein großes Fenster zur Halle hin und einen Zugang zum nebenliegenden Büro. Gegenüber befinden sich die Umkleide mit Zugang zum gefliesten Waschraum mit drei Duschen, WCs und Waschbecken sowie der Technikraum mit Staufläche. Über dem Meisterbüro ist über eine Stahltreppe eine Mezzaninefläche mit einem Bürocontainer und Kleinlagerfläche vorhanden. Das von der Halle abgetrennte Lager ist offen gestaltet.
Die anschließende Kaltlagerhalle ist über eine Tür von der Warmhalle und von außen über ein großes Schiebetor erreichbar.
Über einen separaten Eingang ist das Treppenhaus, von dem aus die Büros im Erd- und Obergeschoss erreichbar sind, begehbar. Die Beheizung erfolgt über eine Gaszentralheizung. Im mit überwiegend Teppichboden ausgelegten Erdgeschoss befindet sich der großzügige Empfangsbereich. Es besteht Zugang zu zwei großen Büroräumen, von denen aus das geflieste Besprechungszimmer erreichbar ist. Dieses ist mit einem Smart-Glaselement zum Empfang hin abgetrennt, indirekter Beleuchtung, Bodentank und einem Beameranschluss ausgestattet. Der Serverraum ist klimatisiert. Vom Pausenraum sind die modern gefliesten WCs abgetrennt und es besteht Zugang zur mit Glas überdachten Terrasse mit eingebautem Sonnenschutz. Die Büroräume sind mit Beleuchtungskörpern und vielen Netzwerkanschlüssen ausgestattet.
Im über das Treppenhaus erreichbare Obergeschoss befinden sich die fünf mit Teppichboden ausgelegten Büros. Im Sozialraum ist eine Küchenzeile mit Geschirrspüler vorhanden. Das Duschbad mit Waschbecken, Urinal und WC ist hell gefliest. Neben dem Serverraum befindet sich ein Archivraum. Aufgrund der vielen Fenster und teilweisen französischen Balkonen ist die Fläche sehr hell und freundlich. Beleuchtungskörper und Netzwerkanschlüsse sind ebenfalls vorhanden.
Vor dem Gebäude befinden sich viele Stellplätze.
Der Zugang zu den Flächen erfolgt über RFID-Chips. Eine Internetverbindung mit bis zu 250 MBits/s ist möglich.
Die Halle mit Betonboden ist sowohl über ein elektrisches ca. 4 x 5 m großes Rolltor und nebenliegender Türe sowie vom Bürobereich im Erdgeschoss zu erreichen. Die Beheizung erfolgt über eine Gas-Dunkelstrahlerheizung. Die Glaselemente im Sektionaltor, viele Fenster sowie ein Oberlicht sorgen für viel Tageslicht. Mehrere Leuchten sind zusätzlich vorhanden. Auf einer Höhe von ca. 4 m befindet sich der Kran mit einer Traglast von 3,2 t. Die Traufhöhe beträgt ca. 5 m. Das abgetrennte Meisterbüro verfügt über ein großes Fenster zur Halle hin und einen Zugang zum nebenliegenden Büro. Gegenüber befinden sich die Umkleide mit Zugang zum gefliesten Waschraum mit drei Duschen, WCs und Waschbecken sowie der Technikraum mit Staufläche. Über dem Meisterbüro ist über eine Stahltreppe eine Mezzaninefläche mit einem Bürocontainer und Kleinlagerfläche vorhanden. Das von der Halle abgetrennte Lager ist offen gestaltet.
Die anschließende Kaltlagerhalle ist über eine Tür von der Warmhalle und von außen über ein großes Schiebetor erreichbar.
Über einen separaten Eingang ist das Treppenhaus, von dem aus die Büros im Erd- und Obergeschoss erreichbar sind, begehbar. Die Beheizung erfolgt über eine Gaszentralheizung. Im mit überwiegend Teppichboden ausgelegten Erdgeschoss befindet sich der großzügige Empfangsbereich. Es besteht Zugang zu zwei großen Büroräumen, von denen aus das geflieste Besprechungszimmer erreichbar ist. Dieses ist mit einem Smart-Glaselement zum Empfang hin abgetrennt, indirekter Beleuchtung, Bodentank und einem Beameranschluss ausgestattet. Der Serverraum ist klimatisiert. Vom Pausenraum sind die modern gefliesten WCs abgetrennt und es besteht Zugang zur mit Glas überdachten Terrasse mit eingebautem Sonnenschutz. Die Büroräume sind mit Beleuchtungskörpern und vielen Netzwerkanschlüssen ausgestattet.
Im über das Treppenhaus erreichbare Obergeschoss befinden sich die fünf mit Teppichboden ausgelegten Büros. Im Sozialraum ist eine Küchenzeile mit Geschirrspüler vorhanden. Das Duschbad mit Waschbecken, Urinal und WC ist hell gefliest. Neben dem Serverraum befindet sich ein Archivraum. Aufgrund der vielen Fenster und teilweisen französischen Balkonen ist die Fläche sehr hell und freundlich. Beleuchtungskörper und Netzwerkanschlüsse sind ebenfalls vorhanden.
Vor dem Gebäude befinden sich viele Stellplätze.
Ausstattung
Lage: Regenstauf
Kaufpreis: EUR 1.200.000,-
Fläche: ca. 1.016 m²
Grundstück: ca. 2.685 m²
Zimmeranzahl: 13
Baujahr: 2014
letzte Modernisierung: 2024
Geschoss(e): EG + OG
Bezug: sofort
Stellplatzanzahl: 20
Stellplatzpreis: EUR 0,-
Kranbahn: ja
Kran Traglast: 3.200 kg
Fußweg zum RVV: 4 min.
Fahrtzeit Bahnhof: 10 min.
Fahrtzeit Autobahn: 3 min.
Fahrtzeit Flughafen: 80 min.
Objekttyp: Industriehalle mit Freifläche
Zustand: renoviert
Ausstattung: gehoben
Bodenbelag: Beton
Heizung: Gas-Heizung
Energieausweis Art: keine Angabe
Energieträger: Gas
Einbauküche: ja
Kaufpreis: EUR 1.200.000,-
Fläche: ca. 1.016 m²
Grundstück: ca. 2.685 m²
Zimmeranzahl: 13
Baujahr: 2014
letzte Modernisierung: 2024
Geschoss(e): EG + OG
Bezug: sofort
Stellplatzanzahl: 20
Stellplatzpreis: EUR 0,-
Kranbahn: ja
Kran Traglast: 3.200 kg
Fußweg zum RVV: 4 min.
Fahrtzeit Bahnhof: 10 min.
Fahrtzeit Autobahn: 3 min.
Fahrtzeit Flughafen: 80 min.
Objekttyp: Industriehalle mit Freifläche
Zustand: renoviert
Ausstattung: gehoben
Bodenbelag: Beton
Heizung: Gas-Heizung
Energieausweis Art: keine Angabe
Energieträger: Gas
Einbauküche: ja
Lage des Objektes
Regenstauf
Sonstige Informationen
Um eine schnelle Bearbeitung zu gewähren benötigen wir Ihre Telefonnummer sowie Ihre komplette Adresse.
Bild/Grundriss 2
Bild/Grundriss 3
Bild/Grundriss 4
Bild/Grundriss 5
Bild/Grundriss 6
Bild/Grundriss 7
Bild/Grundriss 8
Bild/Grundriss 9
Bild/Grundriss 10
Bild/Grundriss 11
Bild/Grundriss 12
Bild/Grundriss 13
Bild/Grundriss 14
Bild/Grundriss 15
Logo