Exposé
Objektart:
Haus
» Reihenhaus
» Miete
Standort: Haus »
Deutschland » Bayern » Fürth, Stadt (Kreis) » Fürth
Reihenmittelhaus mit Garten
Das Wichtigste auf einen Blick:
| Objektnummer: | 9356473 |
Preise
| Kaltmiete (netto) | 1.290 € |
| Nebenkosten | 150 € |
| Kaution | 3.870 € |
Flächen
| Wohnfläche | 120 m² |
| Grundstücksfläche | 265 m² |
Objekt Adresse
90768 Fürth
- Bayern
Sonstige Angaben
| Baujahr | 1962 |
| Zimmer | 4 |
| Verfügbar ab | sofort |
| Bad | 1 |
| Anzahl der Etagen im Haus | 3 |
| Bad | 1 |
| Boden | Fliesen, Laminat |
| Balkone | 1 |
| Garten | Ja |
| Terrassen | 1 |
| Keller | Ja |
| Heizungsart | Zentralheizung |
| Energieträger/Befeuerung | Gas |
Objektbeschreibung
Das Reihen-Mittelhaus wurde 1962 gebaut. Der Garten ist "kinderfreundlich", da er keinen direkten Zugang zur Straße hat. Renoviert wurde das Haus 2023/2024 und steht jetzt, nachdem der Vormieter mehr Platzbedarf hat, wieder zur Vermietung an.
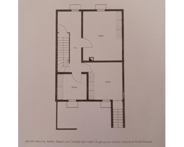
Im EG und OG stehen jeweils rd. 60 m² zum wohnen zur Verfügung. Die Räume sind hell und freundlich, Bad und WC haben Tageslicht. Im Dachgeschoss ist ein Raum ausgebaut. Das Objekt ist voll unterkellert.
Im EG und OG stehen jeweils rd. 60 m² zum wohnen zur Verfügung. Die Räume sind hell und freundlich, Bad und WC haben Tageslicht. Im Dachgeschoss ist ein Raum ausgebaut. Das Objekt ist voll unterkellert.
Ausstattung
Balkon, Terrasse, Garten, Keller, Gäste-WC, Laminat, Fliesen
Bemerkungen:
In dem Haus befindet sich eine Einbauküche, die vom Vormieter käuflich erworben werden kann.
Bemerkungen:
In dem Haus befindet sich eine Einbauküche, die vom Vormieter käuflich erworben werden kann.
Lage des Objektes
Fürth-Dambach ist ein Gemeindeteil der kreisfreien Stadt Fürth. Die Stadt verbindet Dambach mit der Südwesttangente, die östlich zur BAB 73 und westlich zur Bundesstraße 8 anschließt. Die Rangaubahn (Bahn Linie RB 11) fährt im Halbstunden- bis Stundentakt vom Haltepunkt Fürth Dambach zum Fürther Hauptbahnhof sowie nach Zirndorf und Cadolzburg. Tagsüber ist man auch mit dem Bus an die Fürther Süd- und Innenstadt angebunden.
Infrastruktur (im Umkreis von 5 km):
Apotheke, Lebensmittel-Discount, Grundschule, Öffentliche Verkehrsmittel
Infrastruktur (im Umkreis von 5 km):
Apotheke, Lebensmittel-Discount, Grundschule, Öffentliche Verkehrsmittel
Sonstige Informationen
Heizungsart: Zentralheizung
Energieträger: Gas
Energieausweis nicht vorhanden
Makleranfragen nicht erwünscht. Nach § 7 UWG sind unaufgeforderte Kontaktaufnahmen durch Makler ohne ausdrückliche Einwilligung des Empfängers verboten!
ohne-makler (OM) ist weder Anbieter noch Vermittler der Immobilie. OM betreibt eine Plattform für Immobilieneigentümer, die unter anderem die gleichzeitige Veröffentlichung einzelner Inserate auf mehreren Immobilienportalen ermöglicht. Die Inhalte dieser Inserate werden ausschließlich von Dritten verantwortet. Für die Richtigkeit, Vollständigkeit oder Rechtmäßigkeit der Angaben übernimmt OM keine Haftung. Hinweise auf mögliche Rechtsverstöße können jederzeit gemeldet werden und werden nach Prüfung umgehend bearbeitet.
Treppe EG/OG
WC EG
Küche
Wohnzimmer
Kinderzimmer
Bad