Exposé
Objektart:
Wohnung
» Etage
» Miete
Standort: Wohnung »
Deutschland » Hamburg » Hamburg, Freie und Hansestadt (Kreis) » Hamburg
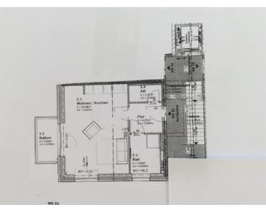
1-Zimmer-Wohnung am Zollenspieker
Das Wichtigste auf einen Blick:
| Objektnummer: | 9355154 |
Preise
| Kaltmiete (netto) | 550 € |
| Nebenkosten | 75 € |
| Kaution | 1.650 € |
Flächen
| Wohnfläche | 39,2 m² |
Objekt Adresse
Kirchwerder Elbdeich 16
21037 Hamburg
- Hamburg
Sonstige Angaben
| Baujahr | 2021 |
| Zimmer | 1 |
| Verfügbar ab | 01.01.2026 |
| Bad | 1 |
| Anzahl der Etagen im Haus | 3 |
| Inserat befindet sich im Stockwerk | 1 |
| Küche | Einbauküche |
| Bad | 1 |
| Bad | Dusche |
| Balkone | 1 |
| Terrassen | 0 |
| Fahrstuhl | Ja |
| Energieausweistyp | Bedarfsausweis |
| Energieeffizienzklasse | B |
| Endenergiebedarf | 52 kWh/(m²*a) |
| Heizungsart | Zentralheizung |
| Energieträger/Befeuerung | Pellet |
Objektbeschreibung
Neubau (2021/2022) nach KfW-55-Standard, heller, großer Wohnraum mit Einbauküche, Vinyl-Design-Böden, bodentiefe Fenster, Duschbad, Balkon, kleiner Abstellraum, Waschmaschinenanschluss, Beheizung und Warmwasserbereitung mit zentraler Pelletheizung, Aufzug, barrierefrei, Erstbezug
Ausstattung
Balkon, Fahrstuhl, Duschbad, Einbauküche
Bemerkungen:
Lagetypisches Rotklinkerhaus mit insgesamt 10 Wohneinheiten, Fertigstellung Dezember 2021. Stellplatzanmietung optional, keine Haustiere, geeignet für einen Ein-Personen-Haushalt
Bemerkungen:
Lagetypisches Rotklinkerhaus mit insgesamt 10 Wohneinheiten, Fertigstellung Dezember 2021. Stellplatzanmietung optional, keine Haustiere, geeignet für einen Ein-Personen-Haushalt
Lage des Objektes
bevorzugte vierländer Lage in Kirchwerder, unmittelbar am Zollenspieker Fährhaus und der Elbfähre, Bäcker 'um die Ecke', Spiekermarkt Kirchwerder mit allen Einkausmöglichkeiten für den täglichen Bedarf sowie Ärztehaus, Apotheke und Bank ca. 1,5 km entfernt.
Ruhige, ländliche Lage ca. 15 km bis zum Zentrum von Bergedorf, Buslinien nach Bergedorf und zum Hauptbahnhof.
Infrastruktur (im Umkreis von 5 km):
Apotheke, Lebensmittel-Discount, Allgemeinmediziner, Kindergarten, Grundschule, Öffentliche Verkehrsmittel
Ruhige, ländliche Lage ca. 15 km bis zum Zentrum von Bergedorf, Buslinien nach Bergedorf und zum Hauptbahnhof.
Infrastruktur (im Umkreis von 5 km):
Apotheke, Lebensmittel-Discount, Allgemeinmediziner, Kindergarten, Grundschule, Öffentliche Verkehrsmittel
Sonstige Informationen
Heizungsart: Zentralheizung
Energieträger: Holzpellets
Elke & Harald von Dörnberg eGbR
Makleranfragen nicht erwünscht. Nach § 7 UWG sind unaufgeforderte Kontaktaufnahmen durch Makler ohne ausdrückliche Einwilligung des Empfängers verboten!
ohne-makler (OM) ist weder Anbieter noch Vermittler der Immobilie. OM betreibt eine Plattform für Immobilieneigentümer, die unter anderem die gleichzeitige Veröffentlichung einzelner Inserate auf mehreren Immobilienportalen ermöglicht. Die Inhalte dieser Inserate werden ausschließlich von Dritten verantwortet. Für die Richtigkeit, Vollständigkeit oder Rechtmäßigkeit der Angaben übernimmt OM keine Haftung. Hinweise auf mögliche Rechtsverstöße können jederzeit gemeldet werden und werden nach Prüfung umgehend bearbeitet.