Exposé
Objektart:
Grundstück
» Wohnen
» Kauf
Standort: Grundstück »
Deutschland » Sachsen-Anhalt » Burgenlandkreis (Kreis) » Lützen
Platz für Ihr Traumhaus auf idyllischem Grundstück | Naturschutzgebiet
01 Idyllisches Grundstück
Das Wichtigste auf einen Blick:
| Objektnummer: | 9355062 |
Preise
| Kaufpreis | 90.000 € |
| Nebenkosten | keine Angabe |
Flächen
| Grundstücksfläche | 3.153 m² |
Objekt Adresse
06679 Lützen
- Sachsen
Sonstige Angaben
| Verfügbar ab | sofort |
Objektbeschreibung
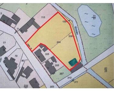
Dieses idyllische Traumgrundstück befindet sich in einer ruhigen Straße in der charmanten Ortschaft Kreischau. Das Grundstück erstreckt sich über ca. 3.153 m². Hinter dem Grundstück fließt ein kleiner Bach, gefolgt von einem malerischen Wiesenhügel. Der hintere Teil des Grundstücks gehört zu einem Landschaftsschutzgebiet, das für seine Artenvielfalt und den Naturschutz bekannt ist. Innerhalb der rot schraffierten Fläche (378 m²) darf gebaut und überbaut werden (Siehe auch Bebauungsvorschlag). Ohne Abstimmung ist eine Magerwiese erlaubt und die alten Obstbäume dürfen gefällt werden. Eine biologische, landwirtschaftliche Nutzung ist möglich.
Lage des Objektes
Lützen, OT Kreischau, liegt malerisch in der ländlichen Region von Sachsen-Anhalt, umgeben von einer idyllischen Landschaft aus Feldern und Wäldern. Lützen ist durch seine historische Bedeutung und ländliche Umgebung geprägt ist.
Lage und Erreichbarkeit:
Lützen liegt etwa 20 Kilometer südwestlich von Leipzig und ist über die Bundesstraßen B87 und B186 gut erreichbar. Die Autobahn A9 ist in unmittelbarer Nähe, was eine gute Anbindung an das regionale und überregionale Straßennetz gewährleistet. Der öffentliche Nahverkehr ist vorhanden. Es gibt Busverbindungen (Buslinien 782, 784 und 806) in die umliegenden Orte und nach Leipzig.
Infrastruktur:
Lützen verfügt über Grundschulen, eine Sekundarschule, Kindergärten und grundlegende Einkaufsmöglichkeiten für den täglichen Bedarf. Es gibt Ärzte, eine Apotheke und weitere notwendige Dienstleistungen vor Ort. Weitere umfassendere Versorgungsmöglichkeiten und Dienstleistungen finden sich im nahegelegenen Leipzig und Weißenfels.
Natur und Freizeit:
Die Umgebung von Lützen ist ländlich geprägt, mit vielen Feldern, Wäldern und Wanderwegen, die zu Spaziergängen und Radtouren einladen.
Es gibt mehrere kleine Seen und Teiche in der Umgebung, die Möglichkeiten zum Angeln und Entspannen bieten.
Historisch Interessierte können das Gustav-Adolf-Denkmal und das Schloss Lützen besichtigen.
Wohnen und Lebensqualität:
Die Wohnqualität in Lützen ist durch eine ruhige, ländliche Atmosphäre und eine enge Gemeinschaft geprägt. Es gibt eine Mischung aus historischen Gebäuden, Einfamilienhäusern und neueren Wohnbauten. Die ländliche Umgebung und die Nähe zu Leipzig machen Lützen zu einem attraktiven Wohnort für Pendler und Familien, die eine ruhige Wohnlage bevorzugen.
Kulturelle und soziale Angebote:
Lützen hat ein reges Vereinsleben, mit verschiedenen Sport- und Kulturvereinen, die das Gemeinschaftsleben fördern. Es gibt regelmäßig lokale Veranstaltungen und Feste, die das soziale Miteinander stärken. Die historische Bedeutung von Lützen als Schauplatz der Schlacht bei Lützen (1632) zieht auch geschichtsinteressierte Besucher an.
Lage und Erreichbarkeit:
Lützen liegt etwa 20 Kilometer südwestlich von Leipzig und ist über die Bundesstraßen B87 und B186 gut erreichbar. Die Autobahn A9 ist in unmittelbarer Nähe, was eine gute Anbindung an das regionale und überregionale Straßennetz gewährleistet. Der öffentliche Nahverkehr ist vorhanden. Es gibt Busverbindungen (Buslinien 782, 784 und 806) in die umliegenden Orte und nach Leipzig.
Infrastruktur:
Lützen verfügt über Grundschulen, eine Sekundarschule, Kindergärten und grundlegende Einkaufsmöglichkeiten für den täglichen Bedarf. Es gibt Ärzte, eine Apotheke und weitere notwendige Dienstleistungen vor Ort. Weitere umfassendere Versorgungsmöglichkeiten und Dienstleistungen finden sich im nahegelegenen Leipzig und Weißenfels.
Natur und Freizeit:
Die Umgebung von Lützen ist ländlich geprägt, mit vielen Feldern, Wäldern und Wanderwegen, die zu Spaziergängen und Radtouren einladen.
Es gibt mehrere kleine Seen und Teiche in der Umgebung, die Möglichkeiten zum Angeln und Entspannen bieten.
Historisch Interessierte können das Gustav-Adolf-Denkmal und das Schloss Lützen besichtigen.
Wohnen und Lebensqualität:
Die Wohnqualität in Lützen ist durch eine ruhige, ländliche Atmosphäre und eine enge Gemeinschaft geprägt. Es gibt eine Mischung aus historischen Gebäuden, Einfamilienhäusern und neueren Wohnbauten. Die ländliche Umgebung und die Nähe zu Leipzig machen Lützen zu einem attraktiven Wohnort für Pendler und Familien, die eine ruhige Wohnlage bevorzugen.
Kulturelle und soziale Angebote:
Lützen hat ein reges Vereinsleben, mit verschiedenen Sport- und Kulturvereinen, die das Gemeinschaftsleben fördern. Es gibt regelmäßig lokale Veranstaltungen und Feste, die das soziale Miteinander stärken. Die historische Bedeutung von Lützen als Schauplatz der Schlacht bei Lützen (1632) zieht auch geschichtsinteressierte Besucher an.
Sonstige Informationen
Hinweis zur Richtigkeit und Vollständigkeit der Angaben:
Der Makler weist darauf hin, dass die von ihm weitergegebenen Objektinformationen vom Verkäufer bzw. von einem vom Verkäufer beauftragten Dritten stammen und von ihm, dem Makler, auf ihre Richtigkeit nicht überprüft worden sind. Es ist Sache des Kunden, diese Angaben auf ihre Richtigkeit hin zu überprüfen. Der Makler, der diese Informationen nur weitergibt, übernimmt für die Richtigkeit keinerlei Haftung.
Hier könnte Ihr Zuhause sein
Baumreiches Grundstück mit Bach
Idyllisches Grundstück
Tolles Grundstück in ruhiger Lage
Große Naturschutzfläche
Baufläche auf dem Grundstück
Makler gesucht? Willuhn gefunden!
Kontaktdaten
Leistungsübersicht
Flurkarte mit umrandeten GST