Exposé
Objektart:
Büro / Praxen
» Bueroflaeche
» Miete
Standort: Büro / Praxen »
Deutschland » Nordrhein-Westfalen » Düsseldorf, Stadt (Kreis) » Düsseldorf
Düsseldorf - Attraktive Büroflächen in bester Lage
Außenansicht
Das Wichtigste auf einen Blick:
| Objektnummer: | 9354650 |
Preise
| Nebenkosten | keine Angabe |
| Mietpreis pro m² | 17,5 € |
Flächen
| Gesamtfläche | 769 m² |
| Bürofläche | 769 m² |
| Fläche teilbar ab | 246 m² |
Objekt Adresse
40210 Düsseldorf
- Nordrhein-Westfalen
Sonstige Angaben
| Baujahr | 1904 |
| Verfügbar ab | kurzfristig |
| Anzahl der Etagen im Haus | 4 |
| Inserat befindet sich im Stockwerk | 1 |
| Energieausweistyp | Bedarfsausweis |
| Gültig bis | 2023-11-28 |
| Baujahr (laut Energieausweis) | 1904 |
| Energieeffizienzklasse | E |
| Heizungsart | Zentralheizung |
| Wesentlicher Energieträger | Gas |
| Energieträger/Befeuerung | Gas |
Objektbeschreibung
Bei dem Objekt handelt es sich um ein repräsentatives Gebäude, das um die Jahrhundertwende als Hotel geplant und gebaut wurde. Die Fassade wurde unter Denkmalschutz gestellt und unter Anwendung alter Handwerkskunst völlig restauriert. Das gesamte Gebäude ist von innen und draußen im Laufe des Jahres 1984 komplett renoviert und restauriert worden.
Ausstattung
- Aufzug
- Böden: Textilbelag/Mieterwunsch
- Verkabelung (Büro) : Fußboden-Kabelkanäle
- Foyer: Natursteinboden
- Sonnenschutz: innenliegend, Mietersache
- Kühlung: optional möglich
- Beleuchtung: BAP-gerecht
- Wände (Büro) : Gipskartonwände
- Böden: Textilbelag/Mieterwunsch
- Verkabelung (Büro) : Fußboden-Kabelkanäle
- Foyer: Natursteinboden
- Sonnenschutz: innenliegend, Mietersache
- Kühlung: optional möglich
- Beleuchtung: BAP-gerecht
- Wände (Büro) : Gipskartonwände
Lage des Objektes
Das Objekt befindet sich in zentraler City-Lage und exponierter Ecklage zur Oststraße. Der Hauptbahnhof ist in wenigen Gehminuten zu erreichen.
Bus- sowie Straßenbahnhaltestellen sind in wenigen Gehminuten zu erreichen.
Bus- sowie Straßenbahnhaltestellen sind in wenigen Gehminuten zu erreichen.
Außenansicht
Außenansicht
Innenansicht
Innenansicht
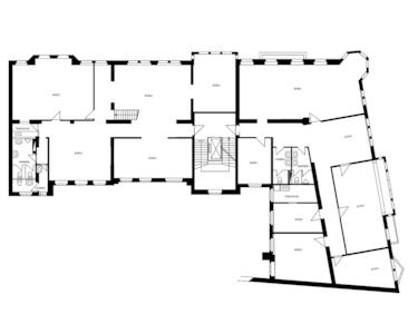
Grundriss 1-2.OG
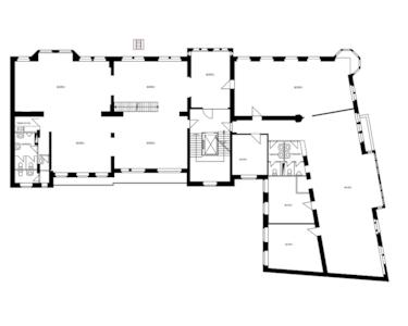
Grundriss 2.OG
Grundriss 5.OG