Exposé
Objektart:
Büro / Praxen
» Bueroflaeche
» Miete
Standort: Büro / Praxen »
Deutschland » Nordrhein-Westfalen » Düsseldorf, Stadt (Kreis) » Düsseldorf
Top-Büroflächen im Düsseldorfer Süden
Außenansicht
Das Wichtigste auf einen Blick:
| Objektnummer: | 9354613 |
Preise
| Nebenkosten | keine Angabe |
| Mietpreis pro m² | 11 € |
Flächen
| Gesamtfläche | 908 m² |
| Bürofläche | 908 m² |
Objekt Adresse
40599 Düsseldorf
- Nordrhein-Westfalen
Sonstige Angaben
| Verfügbar ab | kurzfristig |
| Inserat befindet sich im Stockwerk | 1 |
| Boden | Teppich |
| Fahrstuhl | Ja |
| Heizungsart | Zentralheizung |
| Energieträger/Befeuerung | Gas |
Objektbeschreibung
Das 4-geschossige Objekt bindet sich im Düsseldorfer Süden und ist verkehrstechnisch hervorragend an das Autobahnetz angebunden. Zur Ausstattung der Büroflächen gehören unter anderem Teppich als Bodenbelag, CAT-5 Verkabelung und außenliegender elektrischer Sonnenschutz. Der Eingagngsbereich des Objektes ist 2-geschossige und besitzt eine repräsentative Glasfassade.
Lage des Objektes
Äußerst verkehrsgünstige Lage im Süden von Düsseldorf, im Stadtteil "Hassels"; über das in unmittelbarer Nähe gelegene Autobahnkreuz Düsseldorf-Süd (BAB A 46 und BAB A 59) direkte Anbindung zum Innenstadtgebiet von Düsseldorf bzw. Richtung Neuss-Dormagen/Wuppertal und Leverkusen-Köln; Bushaltestellen nur wenige Gehminuten vom Objekt entfernt, die Linien fahren auch den nahegelegenen S-Bahnhof Düsseldorf-Reisholz an.seldorfer Süden
Außenansicht
Eingangsbereich
Großraumbüro
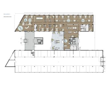
EG
1.OG
2.OG
3.OG