Exposé
Objektart:
Haus
» Einfamilienhaus
» Kauf
Standort: Haus »
Deutschland » Baden-Württemberg » Heilbronn (Kreis) » Brackenheim
Modernisiertes Wohnjuwel in Brackenheim – Freistehendes Einfamilienhaus mit Charme und Raumvielfalt
Hausansicht (West)
Das Wichtigste auf einen Blick:
| Objektnummer: | 9353803 |
Preise
| Kaufpreis | 560.000 € |
| Nebenkosten | keine Angabe |
Flächen
| Wohnfläche | 150 m² |
| Grundstücksfläche | 412 m² |
| Maklerprovision | 2,95 % (brutto) |
Objekt Adresse
74336 Brackenheim
- Baden-Württemberg
Sonstige Angaben
| Baujahr | 1950 |
| Letzte Modernisierung | 2025 |
| Zimmer | 6 |
| Verfügbar ab | keine Angabe |
| Bad | 2 |
| Garage/Stellplätze | 3 |
| Anzahl der Etagen im Haus | 3 |
| Küche | Einbauküche |
| Bad | 2 |
| Bad | Dusche, Fenster |
| Boden | Fliesen, Laminat |
| Balkone | 1 |
| Garten | Ja |
| Terrassen | 1 |
| Garage/Stellplätze | 3 |
| Keller | Ja |
| Energieausweistyp | Bedarfsausweis |
| Energieeffizienzklasse | E |
| Heizungsart | Zentralheizung |
| Wesentlicher Energieträger | Gas |
| Energieträger/Befeuerung | Gas |
Objektbeschreibung
Willkommen in Brackenheim – ein Zuhause, das Herz und Raum öffnet
In begehrter Lage von Brackenheim erwartet Sie dieses freistehende Einfamilienhaus – ein Schmuckstück, das Tradition, Stil und modernen Wohnkomfort auf harmonische Weise vereint. Das Haus wurde 2012 umfassend und mit viel Liebe zum Detail kernsaniert und präsentiert sich heute in zeitloser Eleganz. Mit rund 150 m² Wohnfläche auf drei Ebenen bietet es ein außergewöhnlich vielseitiges Raumkonzept, das sowohl Familien als auch Paare oder Selbstständige begeistert, die Wohnen und Arbeiten perfekt miteinander verbinden möchten.
Wohnen mit Wohlfühlcharakter – das Erdgeschoss:
Schon beim Betreten empfängt Sie ein heller, freundlicher Eingangsbereich mit einer praktischen Garderobenlösung. Von hier aus öffnet sich der Weg in das großzügige Wohn- und Esszimmer – das Herzstück des Hauses. Große Fensterflächen schaffen ein lichtdurchflutetes Ambiente und verbinden Innen- und Außenbereich zu einer einladenden Einheit. Der stilvolle Schwedenofen sorgt an kühlen Tagen für eine behagliche Atmosphäre.
Die angrenzende sonnige Terrasse mit moderner Überdachung wird im Sommer zum erweiterten Wohnraum. Ob entspannte Nachmittage im Grünen oder gesellige Abende mit Freunden – hier entstehen Lieblingsmomente.
Die Küche überzeugt mit viel Arbeitsfläche und bietet ideale Voraussetzungen für kulinarische Kreativität. Ein modernes Tageslichtbad ergänzt das Erdgeschoss und ermöglicht kurze Wege im Alltag.
Ein zusätzlicher Raum mit separatem Zugang zum Innenhof erweitert die Flexibilität des Hauses – perfekt als Homeoffice, Gästezimmer oder privater Rückzugsbereich.
Viel Licht, viel Platz – das Obergeschoss:
Im Obergeschoss erwarten Sie drei großzügig geschnittene, helle Schlafzimmer, die vielfältige Gestaltungsmöglichkeiten bieten – ob Kinderzimmer, Elternschlafzimmer oder stilvolles Ankleide- bzw. Arbeitszimmer. Ein weiteres elegantes Tageslichtbad rundet das Wohlfühlangebot ab.
Ein besonderes Highlight ist der nach Süden ausgerichtete Balkon, auf dem Sie den Blick ins Grüne genießen und den Tag mit Sonnenauf- oder -untergang ausklingen lassen können.
Charmantes Untergeschoss mit Gewölbekeller:
Auch das Untergeschoss zeigt sich von seiner besten Seite: Ein liebevoll restaurierter Gewölbekeller verleiht dem Haus ein einzigartiges Ambiente – ideal als Weinlager oder stilvolle Besonderheit für Gäste. Ergänzt wird dieser Bereich durch einen großen Abstellraum, einen funktionalen Waschkeller sowie einen vielseitigen Hobbyraum mit direktem Zugang zur Garage.
Außenbereich mit vielen Möglichkeiten:
Das Grundstück beeindruckt durch seine Vielseitigkeit. Ein idyllisches Gartenhaus mit zusätzlicher Garage, Werkstatt und großzügigem Dachboden schafft wertvolle Nutzfläche für Handwerk, Lager oder Hobby. Der weitläufige, gepflasterte Innenhof bietet Platz zum Spielen, für Feierlichkeiten oder zusätzliche Fahrzeuge.
Ein begehbarer Dachboden im Haupthaus sorgt zudem für weiteren praktischen Stauraum.
Fazit: Ein Wohnjuwel voller Potenzial
Dieses Einfamilienhaus vereint Raum, Komfort und Charakter zu einem außergewöhnlichen Gesamtpaket. Es bietet ideale Bedingungen für Familien, kreative Köpfe oder Menschen, die Wohnen und Arbeiten unter einem Dach perfekt verbinden möchten. Hier leben Sie nicht nur – hier genießen Sie jeden Tag ein Stück Lebensqualität.
Vereinbaren Sie Ihren persönlichen Besichtigungstermin und lassen Sie sich von diesem besonderen Zuhause in Brackenheim begeistern.
In begehrter Lage von Brackenheim erwartet Sie dieses freistehende Einfamilienhaus – ein Schmuckstück, das Tradition, Stil und modernen Wohnkomfort auf harmonische Weise vereint. Das Haus wurde 2012 umfassend und mit viel Liebe zum Detail kernsaniert und präsentiert sich heute in zeitloser Eleganz. Mit rund 150 m² Wohnfläche auf drei Ebenen bietet es ein außergewöhnlich vielseitiges Raumkonzept, das sowohl Familien als auch Paare oder Selbstständige begeistert, die Wohnen und Arbeiten perfekt miteinander verbinden möchten.
Wohnen mit Wohlfühlcharakter – das Erdgeschoss:
Schon beim Betreten empfängt Sie ein heller, freundlicher Eingangsbereich mit einer praktischen Garderobenlösung. Von hier aus öffnet sich der Weg in das großzügige Wohn- und Esszimmer – das Herzstück des Hauses. Große Fensterflächen schaffen ein lichtdurchflutetes Ambiente und verbinden Innen- und Außenbereich zu einer einladenden Einheit. Der stilvolle Schwedenofen sorgt an kühlen Tagen für eine behagliche Atmosphäre.
Die angrenzende sonnige Terrasse mit moderner Überdachung wird im Sommer zum erweiterten Wohnraum. Ob entspannte Nachmittage im Grünen oder gesellige Abende mit Freunden – hier entstehen Lieblingsmomente.
Die Küche überzeugt mit viel Arbeitsfläche und bietet ideale Voraussetzungen für kulinarische Kreativität. Ein modernes Tageslichtbad ergänzt das Erdgeschoss und ermöglicht kurze Wege im Alltag.
Ein zusätzlicher Raum mit separatem Zugang zum Innenhof erweitert die Flexibilität des Hauses – perfekt als Homeoffice, Gästezimmer oder privater Rückzugsbereich.
Viel Licht, viel Platz – das Obergeschoss:
Im Obergeschoss erwarten Sie drei großzügig geschnittene, helle Schlafzimmer, die vielfältige Gestaltungsmöglichkeiten bieten – ob Kinderzimmer, Elternschlafzimmer oder stilvolles Ankleide- bzw. Arbeitszimmer. Ein weiteres elegantes Tageslichtbad rundet das Wohlfühlangebot ab.
Ein besonderes Highlight ist der nach Süden ausgerichtete Balkon, auf dem Sie den Blick ins Grüne genießen und den Tag mit Sonnenauf- oder -untergang ausklingen lassen können.
Charmantes Untergeschoss mit Gewölbekeller:
Auch das Untergeschoss zeigt sich von seiner besten Seite: Ein liebevoll restaurierter Gewölbekeller verleiht dem Haus ein einzigartiges Ambiente – ideal als Weinlager oder stilvolle Besonderheit für Gäste. Ergänzt wird dieser Bereich durch einen großen Abstellraum, einen funktionalen Waschkeller sowie einen vielseitigen Hobbyraum mit direktem Zugang zur Garage.
Außenbereich mit vielen Möglichkeiten:
Das Grundstück beeindruckt durch seine Vielseitigkeit. Ein idyllisches Gartenhaus mit zusätzlicher Garage, Werkstatt und großzügigem Dachboden schafft wertvolle Nutzfläche für Handwerk, Lager oder Hobby. Der weitläufige, gepflasterte Innenhof bietet Platz zum Spielen, für Feierlichkeiten oder zusätzliche Fahrzeuge.
Ein begehbarer Dachboden im Haupthaus sorgt zudem für weiteren praktischen Stauraum.
Fazit: Ein Wohnjuwel voller Potenzial
Dieses Einfamilienhaus vereint Raum, Komfort und Charakter zu einem außergewöhnlichen Gesamtpaket. Es bietet ideale Bedingungen für Familien, kreative Köpfe oder Menschen, die Wohnen und Arbeiten unter einem Dach perfekt verbinden möchten. Hier leben Sie nicht nur – hier genießen Sie jeden Tag ein Stück Lebensqualität.
Vereinbaren Sie Ihren persönlichen Besichtigungstermin und lassen Sie sich von diesem besonderen Zuhause in Brackenheim begeistern.
Ausstattung
🔧 Kernsanierung 2012
• Komplette Erneuerung der Gebäudetechnik (Elektro, Heizung, Sanitär)
• Innenräume modernisiert mit modernen Materialien
🔥 Wohnen mit Wohlfühlatmosphäre
• Großzügiges Wohn-Esszimmer mit gemütlichem Schwedenofen
• Helle, gut geschnittene Räume mit flexibler Nutzung
🌞 Tageslichtbäder auf beiden Etagen
• Zeitlos moderne Ausstattung
• Tageslicht sorgt für ein angenehmes Raumgefühl
🛏️ 6 vielseitig nutzbare Zimmer
• Aktuelles Büro im EG auch als Schlafzimmer nutzbar
• Drei Schlafzimmer im OG
🚪 Praktischer Eingangsbereich mit Garderobe
• Direkter Zugang vom Wohnzimmer zur Terrasse
🌿 Terrasse, Balkon & liebevoll angelegter Garten
• Süd-Balkon mit Ausblick
• Sonnige Terrasse für entspannte Stunden im Freien
🏚️ Viel Stauraum im Haus und Garten
• Dachboden im Haupthaus als Abstellfläche
• Gartenhaus mit Dachboden als Lagerraum
🏡 Nutzkeller mit Mehrwert
• Renovierter Gewölbekeller mit besonderem Flair
• Großer Abstellraum, Waschkeller und Hobbyraum
• Direkter Zugang zur Einzelgarage
🚗 Zwei Garagen & großer Innenhof
• Einzelgarage im Haus mit Innenzugang
• Zweite Garage im Gartenhaus
• Innenhof mit vielseitigen Nutzungsmöglichkeiten
🔨 Werkstatt & Hobbyflächen
• Werkstattraum im Gartenhaus – ideal für Handwerker oder Bastler
• Hobbykeller für Freizeitgestaltung
👨👩👧👦 Familienfreundliche Lage
• Ruhige Wohnsiedlung mit Nähe zu Schulen & Kindergärten
• Gute Anbindung ans Zentrum und den öffentlichen Nahverkehr
• Komplette Erneuerung der Gebäudetechnik (Elektro, Heizung, Sanitär)
• Innenräume modernisiert mit modernen Materialien
🔥 Wohnen mit Wohlfühlatmosphäre
• Großzügiges Wohn-Esszimmer mit gemütlichem Schwedenofen
• Helle, gut geschnittene Räume mit flexibler Nutzung
🌞 Tageslichtbäder auf beiden Etagen
• Zeitlos moderne Ausstattung
• Tageslicht sorgt für ein angenehmes Raumgefühl
🛏️ 6 vielseitig nutzbare Zimmer
• Aktuelles Büro im EG auch als Schlafzimmer nutzbar
• Drei Schlafzimmer im OG
🚪 Praktischer Eingangsbereich mit Garderobe
• Direkter Zugang vom Wohnzimmer zur Terrasse
🌿 Terrasse, Balkon & liebevoll angelegter Garten
• Süd-Balkon mit Ausblick
• Sonnige Terrasse für entspannte Stunden im Freien
🏚️ Viel Stauraum im Haus und Garten
• Dachboden im Haupthaus als Abstellfläche
• Gartenhaus mit Dachboden als Lagerraum
🏡 Nutzkeller mit Mehrwert
• Renovierter Gewölbekeller mit besonderem Flair
• Großer Abstellraum, Waschkeller und Hobbyraum
• Direkter Zugang zur Einzelgarage
🚗 Zwei Garagen & großer Innenhof
• Einzelgarage im Haus mit Innenzugang
• Zweite Garage im Gartenhaus
• Innenhof mit vielseitigen Nutzungsmöglichkeiten
🔨 Werkstatt & Hobbyflächen
• Werkstattraum im Gartenhaus – ideal für Handwerker oder Bastler
• Hobbykeller für Freizeitgestaltung
👨👩👧👦 Familienfreundliche Lage
• Ruhige Wohnsiedlung mit Nähe zu Schulen & Kindergärten
• Gute Anbindung ans Zentrum und den öffentlichen Nahverkehr
Lage des Objektes
Ruhig, familienfreundlich und zentrumsnah – Wohnen in der Theodor-Heuss-Siedlung in Brackenheim
Dieses Einfamilienhaus befindet sich in der begehrten Theodor-Heuss-Siedlung – einer ruhigen, gewachsenen Wohngegend mit hoher Lebensqualität. Die Siedlung besticht durch ihre angenehme Nachbarschaft, viel Grün und eine entspannte Atmosphäre – ideal für Familien, Paare oder alle, die ein naturnahes Zuhause mit bester Anbindung suchen.
Ein besonderer Pluspunkt: Ein Kindergarten befindet sich nur wenige Schritte entfernt, was jungen Familien den Alltag deutlich erleichtert. Auch Schulen, Spielplätze und Einkaufsmöglichkeiten sind bequem erreichbar.
Die Innenstadt von Brackenheim ist nur etwa 3 Gehminuten entfernt. Dort finden Sie alles für den täglichen Bedarf: Supermärkte, Bäcker, Ärzte, Apotheken sowie charmante Cafés und Restaurants. Ebenso lädt das Zentrum mit seinem historischen Flair, dem Theodor-Heuss-Museum und kulturellen Veranstaltungen zum Verweilen ein.
Für Berufspendler bietet die Lage eine hervorragende Anbindung: Über die B293 erreichen Sie Heilbronn, Ludwigsburg oder Stuttgart in kurzer Zeit. Öffentliche Verkehrsmittel sind ebenfalls gut zu erreichen und sorgen für eine flexible Mobilität.
Die Umgebung punktet zudem mit hohem Freizeitwert: Die nahen Weinberge, Rad- und Spazierwege sowie das Brackenheimer Umland bieten zahlreiche Möglichkeiten für Erholung, Bewegung und Naturgenuss – direkt vor Ihrer Haustür.
Fazit:
Die Theodor-Heuss-Siedlung verbindet familienfreundliches, ruhiges Wohnen mit der Nähe zur Innenstadt – eine Lage, die Lebensqualität, Komfort und Alltagstauglichkeit perfekt vereint.
Dieses Einfamilienhaus befindet sich in der begehrten Theodor-Heuss-Siedlung – einer ruhigen, gewachsenen Wohngegend mit hoher Lebensqualität. Die Siedlung besticht durch ihre angenehme Nachbarschaft, viel Grün und eine entspannte Atmosphäre – ideal für Familien, Paare oder alle, die ein naturnahes Zuhause mit bester Anbindung suchen.
Ein besonderer Pluspunkt: Ein Kindergarten befindet sich nur wenige Schritte entfernt, was jungen Familien den Alltag deutlich erleichtert. Auch Schulen, Spielplätze und Einkaufsmöglichkeiten sind bequem erreichbar.
Die Innenstadt von Brackenheim ist nur etwa 3 Gehminuten entfernt. Dort finden Sie alles für den täglichen Bedarf: Supermärkte, Bäcker, Ärzte, Apotheken sowie charmante Cafés und Restaurants. Ebenso lädt das Zentrum mit seinem historischen Flair, dem Theodor-Heuss-Museum und kulturellen Veranstaltungen zum Verweilen ein.
Für Berufspendler bietet die Lage eine hervorragende Anbindung: Über die B293 erreichen Sie Heilbronn, Ludwigsburg oder Stuttgart in kurzer Zeit. Öffentliche Verkehrsmittel sind ebenfalls gut zu erreichen und sorgen für eine flexible Mobilität.
Die Umgebung punktet zudem mit hohem Freizeitwert: Die nahen Weinberge, Rad- und Spazierwege sowie das Brackenheimer Umland bieten zahlreiche Möglichkeiten für Erholung, Bewegung und Naturgenuss – direkt vor Ihrer Haustür.
Fazit:
Die Theodor-Heuss-Siedlung verbindet familienfreundliches, ruhiges Wohnen mit der Nähe zur Innenstadt – eine Lage, die Lebensqualität, Komfort und Alltagstauglichkeit perfekt vereint.
Sonstige Informationen
Sämtliche Angaben in diesem Exposé sind nach bestem Wissen zusammengestellt und bilden den Stand der Immobilie bei Erstellung des Exposés ab. Änderungen bleiben ausdrücklich vorbehalten. Als Rechtsgrundlage dient allein der notarielle Kaufvertrag. Angaben ohne Gewähr. Die Maklerprovision wird beim Notartermin fällig. Bitte beachten Sie bei Besichtigungswunsch unsere AGBs. Die Zustimmung hierzu ist Voraussetzung für einen Besichtigungstermin. Das Vereinbaren eines Besichtigungstermins gilt als Zustimmung zu unseren AGBs und wird mit einer Termineinladung unsererseits bestätigt. Die AGBs erhalten Sie zusammen mit dem Online-Exposé.
Unsere AGBs können Sie auch jederzeit unter www.exzellent-leben.com nachlesen.
Wohnzimmer (EG)
Wohnzimmer (EG)
Wohnzimmer (EG)
Wohnzimmer (EG)
Esszimmer (EG)
Esszimmer (EG)
Terrasse
Terrasse
Terrasse
Küche (EG)
Küche (EG)
Küche (EG)
Büro/Schlafzimmer (EG)
Büro/Schlafzimmer (EG)
Bad (EG)
Bad (EG)
Flur (OG)
Schlafzimmer (OG)
Schlafzimmer (OG)
Schlafzimmer (OG)
Schlafzimmer (OG)
Schlafzimmer (OG)
Bad (OG)
Bad (OG)
Schlafzimmer (OG)
Schlafzimmer (OG)
Schlafzimmer (OG)
Schlafzimmer (OG)
Balkon
Balkon
Hobbykeller
Hobbykeller
Hausansicht (Ost)
Hausansicht (Ost)
Hausansicht (West)
Drohnenansicht
Drohnenansicht
Drohnenansicht
Lageplan
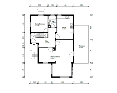
Erdgeschoss
Obergeschoss