Exposé
Objektart:
Büro / Praxen
» Bueroflaeche
» Miete
Standort: Büro / Praxen »
Deutschland » Niedersachsen » Harburg (Kreis) » Seevetal
Ihr neuer Gewerbestandort in Maschen!
WEB
Das Wichtigste auf einen Blick:
| Objektnummer: | 9353384 |
Preise
| Kaltmiete | 3.600 € |
| Warmmiete | 4.485 € |
| Kaltmiete (netto) | 3.600 € |
| Nebenkosten | 885 € |
| Heizkosten enthalten | Ja |
| Kaution | 3 Kaltmieten |
Flächen
| Gesamtfläche | 522 m² |
| Bürofläche | 99 m² |
| Maklerprovision | Courtage 2,38 Kaltmieten inkl. 19 % MwSt. zu zahlen vom Mieter. Verdient und fällig nach Mietvertrag-Unterzeichnung. Es gelten die AGB des Exposés. |
Objekt Adresse
21220 Seevetal
Sonstige Angaben
| Baujahr | 2014 |
| Zimmer | 3 |
| Verfügbar ab | keine Angabe |
Objektbeschreibung
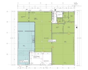
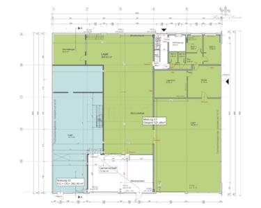
Ihre neue Büro- und Lagerfläche in Maschen! Circa 522m² Gesamtfläche aufgeteilt in ca. 423m² Lagerfläche und ca. 99m² Bürofläche im EG.
In einer der begehrtesten Lagen in Seevetal steht dieses Gewerbegebäude mit weiteren Gewerbeeinheiten und Lagerhallen.
Die Halle wurde 2014 gebaut und präsentiert sich in einem gepflegten Zustand. Im umliegenden Gewerbegebiet sind namenhafte Unternehmen angesiedelt, welche alle samt von der idealen Verkehrsanbindung (circa 2min bis zur Autobahnauffahrt A39-Maschen) profitieren.
Derzeit steht folgende Fläche zur Vermietung an:
- ca. 430 m² Hallenfläche im Erdgeschoss
- Hallenhöhe: 6,50 bis 8 Meter
- Zugang über ein Rolltor: ca. 5 x 4 Meter B/H
- Zugang zur Lagerhalle über ein innenliegendes Tor: ca. 3 x 3 Meter
- ca. 99m² Bürofläche mit 3 Räumen, 1 Entree und 2 WC´s
- beheizbar über Gasheizung
Sowohl die Grundmiete als auch die Nebenkosten verstehen sich zzgl. MwSt. (Nettomiete inkl. Nebenkosten 4.485,00 € + 19% MwSt. 852,15 € = 5.337,15 € Bruttomiete).
Die Stromkosten werden über die Nebenkosten mit abgerechnet. Des Weiteren ist die Beheizung des Büros und Lagerhalle in den Nebenkosten enthalten.
Alle weiteren Details besprechen wir gerne persönlich mit Ihnen. Bitte beachten Sie, dass die zu mietende Fläche in den Grundrissen grün (Mietung 01) markiert ist.
Wir konnten Ihr Interesse wecken? Dann melden Sie sich gerne bei uns. Wir freuen uns auf Ihre Anfrage.
Ihr Karen Ulrich Immobilien Team
In einer der begehrtesten Lagen in Seevetal steht dieses Gewerbegebäude mit weiteren Gewerbeeinheiten und Lagerhallen.
Die Halle wurde 2014 gebaut und präsentiert sich in einem gepflegten Zustand. Im umliegenden Gewerbegebiet sind namenhafte Unternehmen angesiedelt, welche alle samt von der idealen Verkehrsanbindung (circa 2min bis zur Autobahnauffahrt A39-Maschen) profitieren.
Derzeit steht folgende Fläche zur Vermietung an:
- ca. 430 m² Hallenfläche im Erdgeschoss
- Hallenhöhe: 6,50 bis 8 Meter
- Zugang über ein Rolltor: ca. 5 x 4 Meter B/H
- Zugang zur Lagerhalle über ein innenliegendes Tor: ca. 3 x 3 Meter
- ca. 99m² Bürofläche mit 3 Räumen, 1 Entree und 2 WC´s
- beheizbar über Gasheizung
Sowohl die Grundmiete als auch die Nebenkosten verstehen sich zzgl. MwSt. (Nettomiete inkl. Nebenkosten 4.485,00 € + 19% MwSt. 852,15 € = 5.337,15 € Bruttomiete).
Die Stromkosten werden über die Nebenkosten mit abgerechnet. Des Weiteren ist die Beheizung des Büros und Lagerhalle in den Nebenkosten enthalten.
Alle weiteren Details besprechen wir gerne persönlich mit Ihnen. Bitte beachten Sie, dass die zu mietende Fläche in den Grundrissen grün (Mietung 01) markiert ist.
Wir konnten Ihr Interesse wecken? Dann melden Sie sich gerne bei uns. Wir freuen uns auf Ihre Anfrage.
Ihr Karen Ulrich Immobilien Team
Ausstattung
- Lagerhalle und Bürofläche in begehrter Lage von Maschen
- ca. 430 m² Hallenfläche im Erdgeschoss
- Hallenhöhe: 6,50 bis 8 Meter
- Zugang über ein Rolltor: ca. 5 x 4 Meter B/H
- Zugang zur Lagerhalle über ein innenliegendes Tor: ca. 3 x 3 Meter
- ca. 99m² Bürofläche mit 3 Räumen, 1 Entree und 3 WC´s
- beheizbar über Gasheizung
- ca. 430 m² Hallenfläche im Erdgeschoss
- Hallenhöhe: 6,50 bis 8 Meter
- Zugang über ein Rolltor: ca. 5 x 4 Meter B/H
- Zugang zur Lagerhalle über ein innenliegendes Tor: ca. 3 x 3 Meter
- ca. 99m² Bürofläche mit 3 Räumen, 1 Entree und 3 WC´s
- beheizbar über Gasheizung
Lage des Objektes
Die Gemeinde Seevetal im südlichen Hamburger Speckgürtel mit direkter HVV-Anbindung gelegen, besticht durch die optimale Infrastruktur und die Nähe zu Hamburg. Der Ort Maschen gehört zu den beliebtesten Wohnlagen. Direkt an der Autobahnausfahrt nach Maschen erreichbar über die Hauptverkehrsstraße befindet sich dieses Gebäude. Die Hamburger Innenstadt ist mit dem PKW bequem in ca. 20 Minuten zu erreichen Lüneburg in ca. 25 Minuten. Die Autobahnanschlüsse BAB 1, BAB 7 und BAB 39 liegen quasi direkt vor der Tür. Sämtliche Einkaufsmöglichkeiten, Schulen/KIGAs, Ärzte, Restaurants, Vereine und diverse Sport- und Freizeitmöglichkeiten sind direkt im Ort vorhanden. In Maschen leben heißt, eine hohe Lebensqualität vor den Toren Hamburgs in schöner Umgebung zu genießen. Weitläufige Wald- und Naturschutzgebiete befinden sich direkt vor der Tür.
Sonstige Informationen
Wir möchten, dass Sie zufrieden sind! Wir sind ein erfahrener Makler und seit 1987 tätig. Wir stehen Ihnen für alle Fragen rund um die Immobilie zur Verfügung. Sie möchten eine Bewertung ihrer Immobilie- wir kommen selbstverständlich unverbindlich zu Ihnen. Der Makler-Vertrag mit uns kommt durch schriftliche Vereinbarung oder durch die Inanspruchnahme unserer Maklertätigkeit auf der Basis des Objekt-Exposés und seiner Bedingungen zustande. Die Käufercourtage ist mit dem Zustandekommen des Kaufvertrages (notarieller Vertragsabschluss) verdient und fällig und wird prozentual auf den Kaufpreis angerechnet.
Die Höhe der Bruttocourtage unterliegt einer Anpassung bei Steuersatzänderung. Die Vermittelnden und/oder Nachweisenden der Karen Ulrich Immobilien, erhalten einen unmittelbaren Zahlungsanspruch gegenüber dem Käufer (Vertrag zugunsten Dritter, § 328 BGB).
Grunderwerbsteuer, Notar-, Gerichts- und Grundbuchkosten trägt der Käufer. Alle Angaben sind ohne Gewähr und basieren ausschließlich auf Informationen, die uns von unserem Auftraggeber zur Verfügung gestellt wurden. Wir übernehmen keine Gewähr für die Vollständigkeit, Richtigkeit und Aktualität dieser Angaben. Sollte das von uns nachgewiesene Objekt bereits bekannt sein, teilen Sie uns dieses bitte unverzüglich mit. Die Weitergabe dieses Exposés an Dritte ohne unsere Zustimmung löst gegebenenfalls Courtage- bzw. Schadenersatzansprüche aus. Irrtum und Zwischenverkauf vorbehalten.
Halle ohne Logos
Lager 1
Lager 2
Lager 3
Lager 4
WC 1
WC 2
Erdgeschoss
Obergeschoss
Erdgeschoss
Obergeschoss
Max