Exposé
Objektart:
Wohnung
» Etage
» Kauf
Standort: Wohnung »
Deutschland » Nordrhein-Westfalen » Dortmund, Stadt (Kreis) » Dortmund
Eigentumswohnung in bester Lage des Gerichtsviertel
Wohnzimmer Bild 1
Das Wichtigste auf einen Blick:
| Objektnummer: | 9351405 |
Preise
| Kaufpreis | 249.000 € |
| Nebenkosten | 250 € |
| Hausgeld | 300 € |
Flächen
| Wohnfläche | 82 m² |
| Maklerprovision | 3,57% |
Objekt Adresse
Moltkestr. 19
44135 Dortmund
Sonstige Angaben
| Baujahr | 1900 |
| Zimmer | 3,5 |
| Verfügbar ab | frei |
| Inserat befindet sich im Stockwerk | 0 |
| Keller | Ja |
| Heizungsart | Zentralheizung |
| Energieträger/Befeuerung | Gas |
Objektbeschreibung
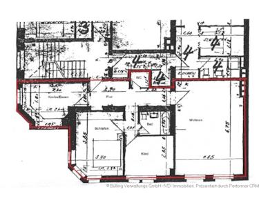
TOP Wohnung im Gerichts&Kaiserstraßenviertel von Dortmund. Wunderschöne 3,5 Zimmerwohnung im Erdgeschoss/Hochpaterre eines sehr gepflegten 8 Familienhaus der Moltkestr.19, in 44135 Dortmund.
Ausstattung
Die Wohnung ist mit einem offenen Kamin im Wohnzimmer, 2 weitern Zimmern, einer Wohnküche, einem G-WC und einem Bad mit Badewanne ohne Fenster ausgestattet.
Lage des Objektes
Dortmund-City Ost, sehr gute Verkehrsanbindung, auch an den öPNV. Einkaufsmöglichkeiten sind in ca. 200 m zu erreichen.
Sonstige Informationen
Baujahr: 1900
Energie mit Warmwasser: Nein
Energiekennwert: 83,6 kWh/(m²*a)
Befeuerung/Energieträger: Gas
Energieausweistyp: Verbrauchsausweis
Heizungsart: Zentralheizung
Badezimmer
Grundriss
Flur (2)
Kamin
KinderArbeitszimmer