Exposé
Objektart:
Grundstück
» Wohnen
» Kauf
Standort: Grundstück »
Deutschland » Hessen » Kassel, documtena-Stadt (Kreis) » Kassel
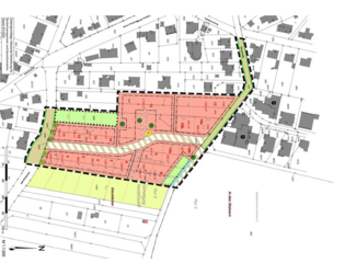
Baugrundstücke am Brasselsberg in Kassel
Grundstücksaufteilung
Das Wichtigste auf einen Blick:
| Objektnummer: | 9351163 |
Preise
| Kaufpreis | 427.350 € |
| Nebenkosten | keine Angabe |
Flächen
| Grundstücksfläche | 1.295 m² |
| Maklerprovision | keine Provision, courtagefrei |
Objekt Adresse
34132 Kassel
- Hessen
Sonstige Angaben
| Verfügbar ab | sofort |
Objektbeschreibung
Bauen in einer der schönsten Lagen Kassels!
Der angegebene Preis bezieht sich beispielhaft auf Grundstück Nummer 7.
Verkauft werden Grundstücke in verschiedenen Größen (Von 505qm bis 1833qm) für den Bau von Ein- und Mehrfamilienhäusern. Die Preise orientieren sich an dem Bodenrichtwert i.H.v. ca. 420€/qm mit leichten Ausreißern nach oben und unten.
Beispielsweise Grundstück 8 (1625 qm) zum Preis von 487.500,00€ oder Grundstück 4 (968 qm) zum Preis von 435.600,00€.
Das Baugebiet in attraktiver Hanglage bietet die Möglichkeit zur Errichtung von Ein- und Mehrfamilienhäusern.
Die Grundstücke werden voll erschlossen und liegen zwischen der Hohefeldstraße und der Gänseweide. Im Bebauungsplan ist auf nachhaltiges Bauen ein besonderer Wert gelegt worden.
Die noch verfügbaren Grundstücksgrößen teilen wir Ihnen gerne im persönlichen Gespräch mit. Ein großer Teil der Grundstücke ist bereits verkauft, kontaktieren Sie uns für weitere Informationen.
Der angegebene Preis bezieht sich beispielhaft auf Grundstück Nummer 7.
Verkauft werden Grundstücke in verschiedenen Größen (Von 505qm bis 1833qm) für den Bau von Ein- und Mehrfamilienhäusern. Die Preise orientieren sich an dem Bodenrichtwert i.H.v. ca. 420€/qm mit leichten Ausreißern nach oben und unten.
Beispielsweise Grundstück 8 (1625 qm) zum Preis von 487.500,00€ oder Grundstück 4 (968 qm) zum Preis von 435.600,00€.
Das Baugebiet in attraktiver Hanglage bietet die Möglichkeit zur Errichtung von Ein- und Mehrfamilienhäusern.
Die Grundstücke werden voll erschlossen und liegen zwischen der Hohefeldstraße und der Gänseweide. Im Bebauungsplan ist auf nachhaltiges Bauen ein besonderer Wert gelegt worden.
Die noch verfügbaren Grundstücksgrößen teilen wir Ihnen gerne im persönlichen Gespräch mit. Ein großer Teil der Grundstücke ist bereits verkauft, kontaktieren Sie uns für weitere Informationen.
Lage des Objektes
Der Stadtteil Brasselsberg liegt im Süd-Westen der Stadt Kassel und ist geprägt durch seine weitläufige Bebauung mit vielen Grün- und Gartenflächen.
Der Brasselsberg ist bekannt für seine glückliche Lage zwischen dem Habichtswald und dem innerstädtischen Naturschutzgebiet Dönche - zwei geschätzte
Naherholungsgebiete der Einwohner des Stadtteils.
Neben seiner grünen Lage überzeugt der Stadtteil durch seine vielfältige Architektur: von gemütlichen Einfamilienhäusern über mittlere bis große Villenanlagen
bis hin zur modernen Bauhaus-Architektur. Heimelig wird der Brasselsberg durch seine kleine Ortsmitte bestehend aus der Emmauskirche, dem Italienischen Restaurant um die Ecke und einem kleinen,aber gut sortierten Supermarkt.
Der Brasselsberg liegt verkehrstechnisch gut gelegen. Die direkte Anbindung an die Bundesautobahn 44 und an den bekannten Nachbarstadtteil Bad Wilhelmshöhe ermöglichen gute Erreichbarkeiten auf Kurz- oder Fernstrecke.
Schul- und Kinderbetreuungsangebote befinden sich in den gut erreichbaren Nachbarstadtteilen Bad Wilhelmshöhe und Nordshausen. Eine evangelische Kirchengemeinde und ein niedergelassener Allgemeinmediziner sowie zwei Zahnarztpraxen sind auch im Stadtteil zu finden.
Infrastruktur (im Umkreis von 5 km):
Apotheke, Kindergarten, Grundschule, Gymnasium, Öffentliche Verkehrsmittel
Der Brasselsberg ist bekannt für seine glückliche Lage zwischen dem Habichtswald und dem innerstädtischen Naturschutzgebiet Dönche - zwei geschätzte
Naherholungsgebiete der Einwohner des Stadtteils.
Neben seiner grünen Lage überzeugt der Stadtteil durch seine vielfältige Architektur: von gemütlichen Einfamilienhäusern über mittlere bis große Villenanlagen
bis hin zur modernen Bauhaus-Architektur. Heimelig wird der Brasselsberg durch seine kleine Ortsmitte bestehend aus der Emmauskirche, dem Italienischen Restaurant um die Ecke und einem kleinen,aber gut sortierten Supermarkt.
Der Brasselsberg liegt verkehrstechnisch gut gelegen. Die direkte Anbindung an die Bundesautobahn 44 und an den bekannten Nachbarstadtteil Bad Wilhelmshöhe ermöglichen gute Erreichbarkeiten auf Kurz- oder Fernstrecke.
Schul- und Kinderbetreuungsangebote befinden sich in den gut erreichbaren Nachbarstadtteilen Bad Wilhelmshöhe und Nordshausen. Eine evangelische Kirchengemeinde und ein niedergelassener Allgemeinmediziner sowie zwei Zahnarztpraxen sind auch im Stadtteil zu finden.
Infrastruktur (im Umkreis von 5 km):
Apotheke, Kindergarten, Grundschule, Gymnasium, Öffentliche Verkehrsmittel
Sonstige Informationen
Weitblick Immobilien GmbH & Co. KG
Weidenbuschweg 8c
34132 Kassel
Deutschland
Tel.: +491739041638
E-Mail: s.itter@weitblickimmobilien.com
Registergericht: Amtsgericht Kassel
Registernummer: HRA 18303
Vertretungsberechtigte Gesellschafterin (Komplementärin): Weitblick Verwaltungs GmbH, Registergericht: Amtsgericht Kassel, Registernummer: HRB 19671, ihrerseits vertreten durch den Geschäftsführer: Norbert Itter
Plattform der EU-Kommission zur Online-Streitbeilegung: https://ec.europa.eu/odr
Wir sind zur Teilnahme an einem Streitbeilegungsverfahren vor einer Verbraucherschlichtungsstelle weder verpflichtet noch bereit.
Makleranfragen nicht erwünscht. Nach § 7 UWG sind unaufgeforderte Kontaktaufnahmen durch Makler ohne ausdrückliche Einwilligung des Empfängers verboten!
ohne-makler (OM) ist weder Anbieter noch Vermittler der Immobilie. OM betreibt eine Plattform für Immobilieneigentümer, die unter anderem die gleichzeitige Veröffentlichung einzelner Inserate auf mehreren Immobilienportalen ermöglicht. Die Inhalte dieser Inserate werden ausschließlich von Dritten verantwortet. Für die Richtigkeit, Vollständigkeit oder Rechtmäßigkeit der Angaben übernimmt OM keine Haftung. Hinweise auf mögliche Rechtsverstöße können jederzeit gemeldet werden und werden nach Prüfung umgehend bearbeitet.
VisualisierungKonzeptOst
Ausblick über Kassel