Exposé
Objektart:
Wohnung
» Etage
» Kauf
Standort: Wohnung »
Deutschland » Bayern » Neustadt a.d.Waldnaab (Kreis) » Neustadt
Helle 3-Zi.-Eigentumswohnung mit praktischem Grundriss und Blick ins Grüne in Neustadt a.d. Waldnaab
Kinderzimmer
Das Wichtigste auf einen Blick:
| Objektnummer: | 9350816 |
Preise
| Kaufpreis | 205.000 € |
| Nebenkosten | keine Angabe |
Flächen
| Wohnfläche | 79,62 m² |
| Maklerprovision | 3,57 % inkl. gesetzl. MwSt. |
Objekt Adresse
92660 Neustadt
Sonstige Angaben
| Baujahr | 1997 |
| Zimmer | 3 |
| Verfügbar ab | sofort |
| Anzahl der Etagen im Haus | 2 |
| Inserat befindet sich im Stockwerk | 2 |
| Balkone | 1 |
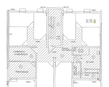
| Keller | Ja |
| Energieausweistyp | Verbrauch |
| Gültig bis | 2028-04-17 |
| Baujahr (laut Energieausweis) | 1997 |
| Energieeffizienzklasse | D |
| Energieverbrauchkennwert | 104.44 kWh/(m²*a) |
| Heizungsart | Zentralheizung |
| Wesentlicher Energieträger | Gas |
| Energieträger/Befeuerung | Gas |
Objektbeschreibung
Helle 3-Zimmer-Eigentumswohnung mit praktischem Grundriss und Blick ins Grüne in Neustadt an der Waldnaab!
Diese praktisch geschnittene 3-Zimmer-Wohnung im 2. Obergeschoss einer gepflegten und ruhigen Wohnanlage überzeugt durch ihre durchdachte Raumaufteilung, die hellen, freundlichen Räume und den herrlichen Ausblick ins Grüne vom Balkon.
Auch ein separater Tiefgaragenstellplatz ist im Preis mit enthalten.
Auf ca. 79 m² Wohnfläche erwarten Sie eine abgetrennte Küche, ein gemütliches Schlafzimmer, ein großzügiges Wohnzimmer sowie ein helles Kinder- oder Arbeitszimmer mit direktem Zugang zum Balkon.
Das Badezimmer ist mit Badewanne und Dusche ausgestattet, zusätzlich steht ein separates Gäste-WC zur Verfügung.
Ein praktischer Grundriss, die gute Lage und der gepflegte Zustand machen diese Wohnung sowohl für Eigennutzer als auch für Vermieter interessant.
Die Wohnung ist derzeit nicht vermietet und sofort bezugsbereit - sogar die Einbauküche ist bereits vorhanden.
Diese praktisch geschnittene 3-Zimmer-Wohnung im 2. Obergeschoss einer gepflegten und ruhigen Wohnanlage überzeugt durch ihre durchdachte Raumaufteilung, die hellen, freundlichen Räume und den herrlichen Ausblick ins Grüne vom Balkon.
Auch ein separater Tiefgaragenstellplatz ist im Preis mit enthalten.
Auf ca. 79 m² Wohnfläche erwarten Sie eine abgetrennte Küche, ein gemütliches Schlafzimmer, ein großzügiges Wohnzimmer sowie ein helles Kinder- oder Arbeitszimmer mit direktem Zugang zum Balkon.
Das Badezimmer ist mit Badewanne und Dusche ausgestattet, zusätzlich steht ein separates Gäste-WC zur Verfügung.
Ein praktischer Grundriss, die gute Lage und der gepflegte Zustand machen diese Wohnung sowohl für Eigennutzer als auch für Vermieter interessant.
Die Wohnung ist derzeit nicht vermietet und sofort bezugsbereit - sogar die Einbauküche ist bereits vorhanden.
Ausstattung
- Wohnfläche: ca. 79,62 m²
- Anzahl der Zimmer: 3
- Baujahr: 1997
- Energieeffizienzklasse: D
- Wohnungstyp: Etagenwohnung
- Balkon vorhanden
- Keller vorhanden
- Anzahl der Zimmer: 3
- Baujahr: 1997
- Energieeffizienzklasse: D
- Wohnungstyp: Etagenwohnung
- Balkon vorhanden
- Keller vorhanden
Lage des Objektes
Neustadt an der Waldnaab, mit der Postleitzahl 92660, ist eine Kleinstadt im Nordosten Bayerns. Die Stadt hat eine Einwohnerzahl von etwa 6.000 Menschen und bietet eine gut ausgebaute Infrastruktur, die sowohl für Familien als auch für Berufspendler attraktiv ist.
Die Verkehrsanbindung ist durch die Nähe zur Autobahn A93 und zur Bundesstraße B22 gewährleistet. Diese ermöglichen eine schnelle Erreichbarkeit der umliegenden Städte und Regionen. Die Entfernung zur nächstgrößeren Stadt, Regensburg, beträgt etwa 90 Kilometer, was einer Fahrzeit von ungefähr einer Stunde entspricht. München, die Landeshauptstadt Bayerns, liegt etwa 180 Kilometer südlich von Neustadt an der Waldnaab und ist in etwa zwei Stunden mit dem Auto erreichbar.
Der Bahnhof Neustadt (Waldnaab) bietet regelmäßige Zugverbindungen, die eine gute Anbindung an das regionale und überregionale Schienennetz sicherstellen. Dies ist besonders vorteilhaft für Pendler, die in die umliegenden Städte reisen müssen.
In Bezug auf die Bildungseinrichtungen verfügt Neustadt über mehrere Kindergärten und Schulen, die eine umfassende Betreuung und Bildung für Kinder und Jugendliche gewährleisten. Dies umfasst sowohl Grundschulen als auch weiterführende Schulen, die gut erreichbar sind.
Für die gesundheitliche Versorgung stehen in Neustadt mehrere Arztpraxen und Apotheken zur Verfügung. Das nächstgelegene Krankenhaus befindet sich in der benachbarten Stadt Weiden in der Oberpfalz, die etwa 10 Kilometer entfernt liegt und in wenigen Minuten mit dem Auto erreichbar ist.
Insgesamt bietet Neustadt an der Waldnaab eine solide Infrastruktur mit allen notwendigen Einrichtungen des täglichen Lebens, während gleichzeitig die Nähe zur Natur und die ruhige Umgebung den Wohnort besonders für Familien attraktiv machen.
Die Verkehrsanbindung ist durch die Nähe zur Autobahn A93 und zur Bundesstraße B22 gewährleistet. Diese ermöglichen eine schnelle Erreichbarkeit der umliegenden Städte und Regionen. Die Entfernung zur nächstgrößeren Stadt, Regensburg, beträgt etwa 90 Kilometer, was einer Fahrzeit von ungefähr einer Stunde entspricht. München, die Landeshauptstadt Bayerns, liegt etwa 180 Kilometer südlich von Neustadt an der Waldnaab und ist in etwa zwei Stunden mit dem Auto erreichbar.
Der Bahnhof Neustadt (Waldnaab) bietet regelmäßige Zugverbindungen, die eine gute Anbindung an das regionale und überregionale Schienennetz sicherstellen. Dies ist besonders vorteilhaft für Pendler, die in die umliegenden Städte reisen müssen.
In Bezug auf die Bildungseinrichtungen verfügt Neustadt über mehrere Kindergärten und Schulen, die eine umfassende Betreuung und Bildung für Kinder und Jugendliche gewährleisten. Dies umfasst sowohl Grundschulen als auch weiterführende Schulen, die gut erreichbar sind.
Für die gesundheitliche Versorgung stehen in Neustadt mehrere Arztpraxen und Apotheken zur Verfügung. Das nächstgelegene Krankenhaus befindet sich in der benachbarten Stadt Weiden in der Oberpfalz, die etwa 10 Kilometer entfernt liegt und in wenigen Minuten mit dem Auto erreichbar ist.
Insgesamt bietet Neustadt an der Waldnaab eine solide Infrastruktur mit allen notwendigen Einrichtungen des täglichen Lebens, während gleichzeitig die Nähe zur Natur und die ruhige Umgebung den Wohnort besonders für Familien attraktiv machen.
Aussicht vom Balkon
Hausansicht
Wohnzimmer
Einbauküche
Schlafzimmer
Diele
Bad
Gäste-WC
Treppenhaus
Keller
TG-Stellplatz
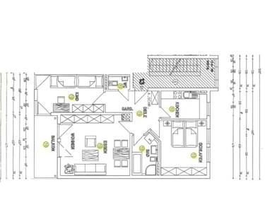
Grundriss Wohnung
Grundriss Kellergeschoss