Exposé
Objektart:
Hallen / Lager / Produktion
» Halle
» Miete
Standort: Hallen / Lager / Produktion »
Deutschland » Baden-Württemberg » Tübingen (Kreis) » Ofterdingen
vielseitig nutzbare Gewerbe-Halle in Ofterdingen zu vermieten
Vorderansicht gr. Halle+ Büro
Das Wichtigste auf einen Blick:
| Objektnummer: | 9350433 |
Preise
| Kaltmiete (netto) | 3.200 € |
| Nebenkosten | 300 € |
| Heizkosten enthalten | Ja |
| Kaution | 6.400 € |
Flächen
| Gesamtfläche | 862 m² |
| Maklerprovision | keine Provision, courtagefrei |
Objekt Adresse
72131 Ofterdingen
- Baden-Württemberg
Sonstige Angaben
| Baujahr | 1971 |
| Verfügbar ab | nach Absprache |
| Anzahl der Etagen im Haus | 1 |
| Inserat befindet sich im Stockwerk | 0 |
| Energieträger/Befeuerung | Elektro |
Objektbeschreibung
Bei diesem Objekt handelt es sich um zwei vielseitig nutzbare Hallen. Ideal für Produktion, Lagerung und Ausstellung oder Verkauf.
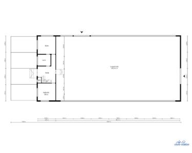
Die größere Halle beinhaltet eine Lagerfläche von ca. 630 m² und Räume für Büro und Aufenthalt mit einer Fläche von ca. 40 m²
Die kleinere Halle an der Rückseite des Grundstücks besteht aus einer Nutzfläche von ca. 162 m².
Die Hallenteile können zusammen oder getrennt gemietet werden.
Die Freiflächen sind teilweise vermietet.
Die größere Halle beinhaltet eine Lagerfläche von ca. 630 m² und Räume für Büro und Aufenthalt mit einer Fläche von ca. 40 m²
Die kleinere Halle an der Rückseite des Grundstücks besteht aus einer Nutzfläche von ca. 162 m².
Die Hallenteile können zusammen oder getrennt gemietet werden.
Die Freiflächen sind teilweise vermietet.
Ausstattung
Gäste-WC, Sonstiges (s. Text)
Bemerkungen:
Es handelt sich um zwei Kalthallen. Die Büroräume können bei Bedarf mit elektrischem Strom beheizt werden.
Energieausweis ist in Arbeit und wird bei der Besichtigung vorgelegt!
Bemerkungen:
Es handelt sich um zwei Kalthallen. Die Büroräume können bei Bedarf mit elektrischem Strom beheizt werden.
Energieausweis ist in Arbeit und wird bei der Besichtigung vorgelegt!
Lage des Objektes
Das Mietobjeket liegt in der Gemeinde Ofterdingen in einem Mischgebiet. Ofterdingen ist eine Gemeinde im Landkreis Tübingen in Baden-Württemberg.
Umgebung: Die Straße verläuft durch ein gemischtes Wohn- und Gewerbegebiet. In der Nähe befinden sich kleine Betriebe wie eine Karosserieinstandsetzung, eine Druckerei, ein Brennholzhandel und eine Pizzeria unmittelbar in der Nachbarschaft zum Objekt.
Verkehrsanbindung: Die Straße ist gut erreichbar und bietet eine ruhige Zufahrt. Die Höchstgeschwindigkeit ist begrenzt, was zur Sicherheit und Standortqualität beiträgt.
Geografische Lage: Ofterdingen liegt südlich von Tübingen und ist eingebettet in die reizvolle Landschaft des Steinlachtals, mit guter Anbindung an die B27 Richtung Tübingen und Balingen.
Umgebung: Die Straße verläuft durch ein gemischtes Wohn- und Gewerbegebiet. In der Nähe befinden sich kleine Betriebe wie eine Karosserieinstandsetzung, eine Druckerei, ein Brennholzhandel und eine Pizzeria unmittelbar in der Nachbarschaft zum Objekt.
Verkehrsanbindung: Die Straße ist gut erreichbar und bietet eine ruhige Zufahrt. Die Höchstgeschwindigkeit ist begrenzt, was zur Sicherheit und Standortqualität beiträgt.
Geografische Lage: Ofterdingen liegt südlich von Tübingen und ist eingebettet in die reizvolle Landschaft des Steinlachtals, mit guter Anbindung an die B27 Richtung Tübingen und Balingen.
Sonstige Informationen
Heizungsart: Sonstiges (s. Text)
Energieträger: Strom
Energieausweis nicht vorhanden
Räume im Obergeschoß des Bürogebäudes können bei Bedarf zusätzlich angemietet werden, diese sind z.B. als Betriebsleiterwohnung nutzbar.
Der angegeben Mietpreis versteht sich zzgl. Nebenkosten sowie zzgl. 19 % MwSt aus dem Gesamtmietpreis (Kaltmiete + Nebenkosten).
ohne-makler (OM) ist weder Anbieter noch Vermittler der Immobilie. OM betreibt eine Plattform für Immobilieneigentümer, die unter anderem die gleichzeitige Veröffentlichung einzelner Inserate auf mehreren Immobilienportalen ermöglicht. Die Inhalte dieser Inserate werden ausschließlich von Dritten verantwortet. Für die Richtigkeit, Vollständigkeit oder Rechtmäßigkeit der Angaben übernimmt OM keine Haftung. Hinweise auf mögliche Rechtsverstöße können jederzeit gemeldet werden und werden nach Prüfung umgehend bearbeitet.
Gewerbe-Halle mit Bürotrakt
Seitenansicht gr. Halle
Große Halle Rückansicht rechts
Große Halle Seitentor
Große Halle Rückansicht links
Große Halle - Innenraum 1
Große Halle- Innenraum 2
Freifläche bei kl. Halle
Kleine Halle mit Hofraum
Lageplan Grundstück
Große Halle Grundfläche
Große Halle Schnitt
Kleine Halle Grundfläche
Kleine Halle Schnitt