Exposé
Objektart:
Wohnung
» Etage
» Miete
Standort: Wohnung »
Deutschland » Thüringen » Altenburger Land (Kreis) » Altenburg
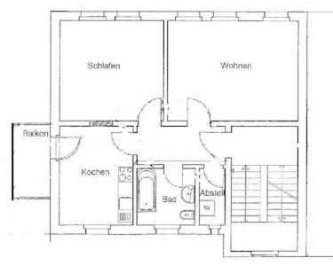
2-Zimmer-Wohnung mit BALKON, große Küche, Badewanne - frisch renoviert
Hausansicht
Angeboten von:
Marko Künne Immobilien
Käthe-Kollwitz-Str. 58c
04109 Leipzig
Deutschland
Telefon:+49(0)341-4429566
Fax:+49(0)341-2253930
www.kuenne-immobilien.de
Ansprechpartner/in
Marko Künne Immobilien
Katrin Glöckner
| Telefon: | 0176-60745729 |
| Fax: | 0341 2253930 |
Das Wichtigste auf einen Blick:
| Objektnummer: | 9350254 |
Preise
| Kaltmiete | 384 € |
| Warmmiete | 576 € |
| Nebenkosten | 192 € |
| Heizkosten enthalten | Ja |
| Mietpreis pro m² | 6 € |
| Kaution | 768,00 |
Flächen
| Wohnfläche | 64 m² |
Objekt Adresse
Neue Sorge 45
04600 Altenburg
- Thüringen
Sonstige Angaben
| Baujahr | 1950 |
| Zimmer | 2 |
| Verfügbar ab | keine Angabe |
| Anzahl der Etagen im Haus | 3 |
| Inserat befindet sich im Stockwerk | 2 |
| Boden | Fliesen, Laminat |
| Balkone | 1 |
| Energieausweistyp | Verbrauch |
| Ausstellungsdatum | 12. 07. 2019 |
| Gültig bis | 11.07.2025 |
| Energieeffizienzklasse | D |
| Energieverbrauchkennwert | 125 kWh/(m²*a) |
| Heizungsart | Zentralheizung |
| Wesentlicher Energieträger | Gas |
| Energieträger/Befeuerung | Gas |
Lage des Objektes
Altenburg
Sonstige Informationen
Alle Angaben sind ohne Gewähr und basieren ausschließlich auf Informationen, die uns von unserem Auftraggeber zur Verfügung gestellt wurden. Wir übernehmen keine Gewähr für die Vollständigkeit, Richtigkeit und Aktualität dieser Angaben.
Küche
Balkon
Küche
Wohnzimmer
Schlafzimmer
Badezimmer
Abstellraum
Flur
Treppenhäuser
Grundriss