Exposé
Objektart:
Haus
» Doppelhaushaelfte
» Kauf
Standort: Haus »
Deutschland » Nordrhein-Westfalen » Münster, Stadt (Kreis) » Münster
Frischsanierte DHH, 145 m² Wohnfläche, 392 m² Grundstück, Münster
Hausansicht
Das Wichtigste auf einen Blick:
| Objektnummer: | 9349483 |
Preise
| Kaufpreis | 650.000 € |
| Nebenkosten | keine Angabe |
Flächen
| Wohnfläche | 145 m² |
| Grundstücksfläche | 392 m² |
| Maklerprovision | keine Provision, courtagefrei |
Objekt Adresse
48167 Münster
- Nordrhein-Westfalen
Sonstige Angaben
| Baujahr | 1961 |
| Zimmer | 6 |
| Verfügbar ab | sofort |
| Bad | 3 |
| Anzahl der Etagen im Haus | 2 |
| Bad | 3 |
| Bad | Dusche |
| Boden | Fliesen, Teppich, Parkett |
| Balkone | 1 |
| Garten | Ja |
| Terrassen | 1 |
| Keller | Ja |
| Energieausweistyp | Verbrauch |
| Energieeffizienzklasse | D |
| Energieverbrauchkennwert | 101 kWh/(m²*a) |
| Heizungsart | Zentralheizung |
| Energieträger/Befeuerung | Gas |
Objektbeschreibung
Achtung: Bilder vor Sanierung!!!
In naturnaher und zentraler Wohnlage von Münster-Angelmodde befindet sich diese Doppelhaushälfte, welche mit viel Platz, einer Waldansicht und einer ruhigen und kinderfreundliche Lage überzeugt. Das Haus wurde im Jahr 1961 auf einem ca. 392 m² großem Grundstück errichtet und bietet mit rund 145 m² Wohnfläche vielfältige Möglichkeiten für Familien und Paare sowie für das Wohnen und Arbeiten unter einem Dach.
Bereits beim Betreten des Hauses fällt die angenehme Atmosphäre auf: Der große Eingangsbereich bietet viel Platz und ist durch seine Helligkeit sehr einladend.
Der rund 50 m² große Wohn- und Essbereich überzeugt mit einer großzügigen Fensterfront zum Garten und einer Glastür, die ein direkten Ausgang in den Garten ermöglicht.
Die Küche grenzt unmittelbar an den Essbereich an. Ein Durchreiche-Fenster verbindet Küche und Essbereich. Je nach Wunsch kann hier ein kompletter Durchbruch zur Öffnung der Küche vorgenommen werden.
Das Haus wird gerade saniert und bietet Raum für individuelle Modernisierungs- oder Gestaltungsideen.
Im Obergeschoss stehen Ihnen drei gut geschnittene Räume zur Verfügung, die sich flexibel als Schlaf-, Kinder- oder Arbeitszimmer nutzen lassen. Aus zwei der drei Zimmer im Obergeschoss schaut man direkt ins Grüne. Aus eins dieser Zimmer hat man sogar direkten Zugang zu einem westlich ausgerichteten Balkon, auf dem man die Abendsonne in vollen Zügen genießen kann. Zusätzlich befinden sich im Obergeschoss ein geräumiges Badezimmer mit Dusche und eine separate Toilette.
Das Highlight für alle, die noch mehr Raum benötigen, ist das bereits ausgebaute und mit einer Gaube ausgestatte Dachgeschoss - wie geschaffen für ein zusätzliches Arbeitszimmer, einen Hobbyraum oder ein separates Kinder-/Elternzimmer.
Mit einem voll ausgebauten Keller verfügt das Haus über reichlich Platz für Stauraum und individuelle Hobbynutzung – ob für Vorräte, Hobbys oder einen kleinen Werkstattbereich.
Das Herzstück dieses Hauses ist eine Sauna im Keller! Mit der eigenen Sauna schafft man sich in den eigenen vier Wänden sein ganz persönliches Wellnessbereich. Dadurch kann man sich, nach einem anstrengenden Tag, einen wohltuenden Aufguss gönnen, lässt den Alltagsstress hinter sich und tankt neue Energie.
In den Sommertagen lädt der mittelgroße Garten mit Gartenhütte zu entspannten Stunden im Freien ein. Ob Spielen, Gärtnern, gemeinsames Grillen oder einfach nur Genießen – hier findet man genügend Platz für alle Aktivitäten an der frischen Luft. Für noch mehr Naturerlebnis gelangt man vom Garten aus über einen kleinen Bach hinweg direkt zum benachbarten Wald.
Ein weiterer Pluspunkt: Das Haus steht aktuell leer, wird gerade saniert, sodass evtl. persönliche Ideen des neuen Besitzers perfekt miteingearbeitet werden können. Zudem wird es privat angeboten, wodurch Maklerkosten gespart werden.
Unser Fazit: Diese Doppelhaushälfte in Angelmodde besticht durch ihre großzügige Aufteilung, viel Potenzial zur individuellen Gestaltung und eine familienfreundliche Lage mit hervorragender Infrastruktur. Lassen Sie sich bei einer persönlichen Besichtigung von den Möglichkeiten dieses Hauses begeistern – wir freuen uns auf Ihre Anfrage!
In naturnaher und zentraler Wohnlage von Münster-Angelmodde befindet sich diese Doppelhaushälfte, welche mit viel Platz, einer Waldansicht und einer ruhigen und kinderfreundliche Lage überzeugt. Das Haus wurde im Jahr 1961 auf einem ca. 392 m² großem Grundstück errichtet und bietet mit rund 145 m² Wohnfläche vielfältige Möglichkeiten für Familien und Paare sowie für das Wohnen und Arbeiten unter einem Dach.
Bereits beim Betreten des Hauses fällt die angenehme Atmosphäre auf: Der große Eingangsbereich bietet viel Platz und ist durch seine Helligkeit sehr einladend.
Der rund 50 m² große Wohn- und Essbereich überzeugt mit einer großzügigen Fensterfront zum Garten und einer Glastür, die ein direkten Ausgang in den Garten ermöglicht.
Die Küche grenzt unmittelbar an den Essbereich an. Ein Durchreiche-Fenster verbindet Küche und Essbereich. Je nach Wunsch kann hier ein kompletter Durchbruch zur Öffnung der Küche vorgenommen werden.
Das Haus wird gerade saniert und bietet Raum für individuelle Modernisierungs- oder Gestaltungsideen.
Im Obergeschoss stehen Ihnen drei gut geschnittene Räume zur Verfügung, die sich flexibel als Schlaf-, Kinder- oder Arbeitszimmer nutzen lassen. Aus zwei der drei Zimmer im Obergeschoss schaut man direkt ins Grüne. Aus eins dieser Zimmer hat man sogar direkten Zugang zu einem westlich ausgerichteten Balkon, auf dem man die Abendsonne in vollen Zügen genießen kann. Zusätzlich befinden sich im Obergeschoss ein geräumiges Badezimmer mit Dusche und eine separate Toilette.
Das Highlight für alle, die noch mehr Raum benötigen, ist das bereits ausgebaute und mit einer Gaube ausgestatte Dachgeschoss - wie geschaffen für ein zusätzliches Arbeitszimmer, einen Hobbyraum oder ein separates Kinder-/Elternzimmer.
Mit einem voll ausgebauten Keller verfügt das Haus über reichlich Platz für Stauraum und individuelle Hobbynutzung – ob für Vorräte, Hobbys oder einen kleinen Werkstattbereich.
Das Herzstück dieses Hauses ist eine Sauna im Keller! Mit der eigenen Sauna schafft man sich in den eigenen vier Wänden sein ganz persönliches Wellnessbereich. Dadurch kann man sich, nach einem anstrengenden Tag, einen wohltuenden Aufguss gönnen, lässt den Alltagsstress hinter sich und tankt neue Energie.
In den Sommertagen lädt der mittelgroße Garten mit Gartenhütte zu entspannten Stunden im Freien ein. Ob Spielen, Gärtnern, gemeinsames Grillen oder einfach nur Genießen – hier findet man genügend Platz für alle Aktivitäten an der frischen Luft. Für noch mehr Naturerlebnis gelangt man vom Garten aus über einen kleinen Bach hinweg direkt zum benachbarten Wald.
Ein weiterer Pluspunkt: Das Haus steht aktuell leer, wird gerade saniert, sodass evtl. persönliche Ideen des neuen Besitzers perfekt miteingearbeitet werden können. Zudem wird es privat angeboten, wodurch Maklerkosten gespart werden.
Unser Fazit: Diese Doppelhaushälfte in Angelmodde besticht durch ihre großzügige Aufteilung, viel Potenzial zur individuellen Gestaltung und eine familienfreundliche Lage mit hervorragender Infrastruktur. Lassen Sie sich bei einer persönlichen Besichtigung von den Möglichkeiten dieses Hauses begeistern – wir freuen uns auf Ihre Anfrage!
Ausstattung
Balkon, Terrasse, Garten, Keller, Duschbad, Sauna, Gäste-WC, Parkett, Teppichboden, Fliesen
Bemerkungen:
Kurzbeschreibung
- saniert mit neuen Böden
- super Lage: direkte Waldlage, ruhig und nur von Anlieger befahrte Straße, trozdem gute Anbindung zur Stadt
- Spielplatz direkt gegenüber
- Sauna im Keller
- Dach ausgebaut
- Dach höher gestellt und neu ausgelegt im Jahr 2023 mit Dachpfannen aus der Marke Jacobi
- Haus wird neu Saniert und ist laut Sanierungsplan spätestens Ende Januar 2026 bezugsfertig.
- evtl. Umbaumaßnahmen/Gestaltungsideen sind möglich, aber evtl. mit zeitlicher Verzögerung
- Energiefahrplan liegt für die Förderung von evtl. energieeffizienten Maßnahmen bereits vor
Ausstattungs-Beschreibung
Das Haus wird gerade frisch saniert, sodass die neuen Besitzer ihre Ideen freiem Lauf lassen und in dem Objekt noch verwirklichen können. Ob es der Durchbruch zwischen Küche und Esszimmer sein soll, aus dem Gäste-WC ein kleines Bad entstehen soll oder ob ein Anbau in Frage kommt, all das ist sofort umsetzbar. Hinzu kommt, dass ein Energiefahrplan bereits erstellt wurde. Somit können Fördermaßnahmen direkt beantragt werden. Ein weiterer Pluspunkt des Hauses ist, dass die Bauarbeiter zurzeit vor Ort am Werk sind und somit evtl. Änderungswünsche direkt umgesetzt werden können. Bei jetzigem Sanierungsplan ist das Haus Ende Januar 2026 bezugsfertig.
Erdgeschoss:
•Vom Foyer gelangt man sowohl ins Wohn- als auch ins Esszimmer. Ebenfalls ist der Zugang in die Küche, ins Obergeschoss als auch in den Keller gewährleistet. Das Gäste-WC schließt direkt an die Garderobe.
•Das Wohnzimmer verfügt über ein großes bodenlanges Fenster und einen Zugang zur Terrasse, die an den Garten anschließt. Der Garten liegt an einem kleinen Bach, der an den Wald grenzt.
Obergeschoss:
•Hier befinden sich drei Schlaf-/Arbeitsräume, ein Bad und eine separate Toilette.
•Zwei der drei Zimmer bieten eine sehr schöne Aussicht ins Grüne. Einer davon lädt mit einem kleinen Balkon zur Erholung ein.
•Das mittlere Zimmer bietet sich hervorragend als Arbeitszimmer und ist besonders mit vielen Steckdosen bereits ausgestattet.
Dachgeschoss:
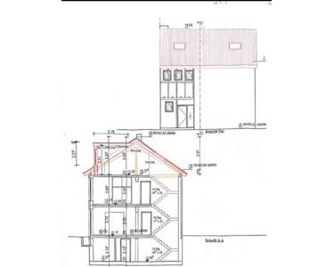
•Das Dach wurde im Jahr 2023/2024 komplett erneuert, höher gestellt und mit neuen Iton-Pfannen ausgelegt. Dazu wurde das Dachgeschoss ausgebaut, neu gedämmt und mit einer Gaube ausgestattet. Dort ist ein wunderschönes großes und helles Eltern-/Arbeitszimmer entstanden, das sich aber auch gut in zwei kleine Kinder-/Arbeitszimmer aufteilen lässt. Die Eröffnung eines zusätzlichen Fensters zur östlichen Seite sorgt für mehr Helligkeit im Raum und wird zurzeit vorgenommen.
Garten:
•Der Hintergarten ist mittelgroß, schließt an einen kleinen Bach und einen Wald an, bietet der Familie Entspannung und Erholung im Freien. Hier befinden sich eine kleine Gartenhütte und ein Carport, sodass sowohl für Fahrräder als auch für das Auto genug Platz ist.
•Der Vordergarten ist zurzeit mit Rasen belegt und wartet auf neue Ideen.
Keller:
•Das Haus ist voll unterkellert. Zur dieser Doppelhaushälfte gehören insgesamt drei Kellerräume. Ein Waschkeller, ein Vorratsraum und ein großer Hobby-/Werk-/Stauraum. Im mittleren Raum befindet sich eine Sauna.
Bemerkungen:
Kurzbeschreibung
- saniert mit neuen Böden
- super Lage: direkte Waldlage, ruhig und nur von Anlieger befahrte Straße, trozdem gute Anbindung zur Stadt
- Spielplatz direkt gegenüber
- Sauna im Keller
- Dach ausgebaut
- Dach höher gestellt und neu ausgelegt im Jahr 2023 mit Dachpfannen aus der Marke Jacobi
- Haus wird neu Saniert und ist laut Sanierungsplan spätestens Ende Januar 2026 bezugsfertig.
- evtl. Umbaumaßnahmen/Gestaltungsideen sind möglich, aber evtl. mit zeitlicher Verzögerung
- Energiefahrplan liegt für die Förderung von evtl. energieeffizienten Maßnahmen bereits vor
Ausstattungs-Beschreibung
Das Haus wird gerade frisch saniert, sodass die neuen Besitzer ihre Ideen freiem Lauf lassen und in dem Objekt noch verwirklichen können. Ob es der Durchbruch zwischen Küche und Esszimmer sein soll, aus dem Gäste-WC ein kleines Bad entstehen soll oder ob ein Anbau in Frage kommt, all das ist sofort umsetzbar. Hinzu kommt, dass ein Energiefahrplan bereits erstellt wurde. Somit können Fördermaßnahmen direkt beantragt werden. Ein weiterer Pluspunkt des Hauses ist, dass die Bauarbeiter zurzeit vor Ort am Werk sind und somit evtl. Änderungswünsche direkt umgesetzt werden können. Bei jetzigem Sanierungsplan ist das Haus Ende Januar 2026 bezugsfertig.
Erdgeschoss:
•Vom Foyer gelangt man sowohl ins Wohn- als auch ins Esszimmer. Ebenfalls ist der Zugang in die Küche, ins Obergeschoss als auch in den Keller gewährleistet. Das Gäste-WC schließt direkt an die Garderobe.
•Das Wohnzimmer verfügt über ein großes bodenlanges Fenster und einen Zugang zur Terrasse, die an den Garten anschließt. Der Garten liegt an einem kleinen Bach, der an den Wald grenzt.
Obergeschoss:
•Hier befinden sich drei Schlaf-/Arbeitsräume, ein Bad und eine separate Toilette.
•Zwei der drei Zimmer bieten eine sehr schöne Aussicht ins Grüne. Einer davon lädt mit einem kleinen Balkon zur Erholung ein.
•Das mittlere Zimmer bietet sich hervorragend als Arbeitszimmer und ist besonders mit vielen Steckdosen bereits ausgestattet.
Dachgeschoss:
•Das Dach wurde im Jahr 2023/2024 komplett erneuert, höher gestellt und mit neuen Iton-Pfannen ausgelegt. Dazu wurde das Dachgeschoss ausgebaut, neu gedämmt und mit einer Gaube ausgestattet. Dort ist ein wunderschönes großes und helles Eltern-/Arbeitszimmer entstanden, das sich aber auch gut in zwei kleine Kinder-/Arbeitszimmer aufteilen lässt. Die Eröffnung eines zusätzlichen Fensters zur östlichen Seite sorgt für mehr Helligkeit im Raum und wird zurzeit vorgenommen.
Garten:
•Der Hintergarten ist mittelgroß, schließt an einen kleinen Bach und einen Wald an, bietet der Familie Entspannung und Erholung im Freien. Hier befinden sich eine kleine Gartenhütte und ein Carport, sodass sowohl für Fahrräder als auch für das Auto genug Platz ist.
•Der Vordergarten ist zurzeit mit Rasen belegt und wartet auf neue Ideen.
Keller:
•Das Haus ist voll unterkellert. Zur dieser Doppelhaushälfte gehören insgesamt drei Kellerräume. Ein Waschkeller, ein Vorratsraum und ein großer Hobby-/Werk-/Stauraum. Im mittleren Raum befindet sich eine Sauna.
Lage des Objektes
Münster-Angelmodde befindet sich im südöstlichen Stadtgebiet und überzeugt durch die Verbindung von ländlichem Charakter und städtischer Lebensqualität. Der Stadtteil ist eingebettet in eine grüne Umgebung mit weitläufigen Landschaftsgebieten in Richtung Albersloh. Ein Beispiel hierfür ist der direkt angrenzende Wald, der das Stadtgebiet Angelmodde mit Hiltrup verbindet. Ferner gelangt man über eine sehr schöne naturfreundliche Fahrradstrecke zum Kanal und von dort aus in die Stadt. Die umliegenden Wälder laden zur Wanderung oder Ausflügen ins Grüne ein. Dadurch bieten sich zahlreiche Möglichkeiten der Naherholung.
Auch die Anbindung an das Stadtgebiet von Münster ist gut ausgebaut. Die Buslinien 6, 68 und ab Gremmendorfer Weg die 8 verbinden Angelmodde regelmäßig mit dem Hauptbahnhof, der Innenstadt sowie Stadtteilen wie Hiltrup, Gievenbeck und Wolbeck. Der Hiltruper Bahnhof verbessert die Anbindung durch das Schienennetz. In einer Entfernung von weniger als einem Kilometer finden sich Supermärkte, Fachgeschäfte und Bäckereien, die den täglichen Bedarf decken.
Für Familien bietet Angelmodde ein vielseitiges Bildungs- und Freizeitangebot. Mehrere Kitas sowie ein Nachhilfezentrum am Albersloher Weg, stehen für die frühkindliche Betreuung und schulische Unterstützung bereit. Die schulische Versorgung ist mit einer nahmen Grundschule und guter Anbindung zu weiterführenden Schulen ebenfalls gegeben. Freizeitmöglichkeiten reichen von einem direkt benachbarten Spielplatz, Sportverein, einem Jugendtreff, bis hin zu Reitanlagen, Bowlinghalle und Wanderwegen. Die Mischung aus naturnahem Wohnen, guter Infrastruktur und aktiver Nachbarschaft macht Angelmodde besonders für Familien und Berufspendler attraktiv.
Infrastruktur (im Umkreis von 5 km):
Apotheke, Lebensmittel-Discount, Allgemeinmediziner, Kindergarten, Grundschule, Realschule, Öffentliche Verkehrsmittel
Auch die Anbindung an das Stadtgebiet von Münster ist gut ausgebaut. Die Buslinien 6, 68 und ab Gremmendorfer Weg die 8 verbinden Angelmodde regelmäßig mit dem Hauptbahnhof, der Innenstadt sowie Stadtteilen wie Hiltrup, Gievenbeck und Wolbeck. Der Hiltruper Bahnhof verbessert die Anbindung durch das Schienennetz. In einer Entfernung von weniger als einem Kilometer finden sich Supermärkte, Fachgeschäfte und Bäckereien, die den täglichen Bedarf decken.
Für Familien bietet Angelmodde ein vielseitiges Bildungs- und Freizeitangebot. Mehrere Kitas sowie ein Nachhilfezentrum am Albersloher Weg, stehen für die frühkindliche Betreuung und schulische Unterstützung bereit. Die schulische Versorgung ist mit einer nahmen Grundschule und guter Anbindung zu weiterführenden Schulen ebenfalls gegeben. Freizeitmöglichkeiten reichen von einem direkt benachbarten Spielplatz, Sportverein, einem Jugendtreff, bis hin zu Reitanlagen, Bowlinghalle und Wanderwegen. Die Mischung aus naturnahem Wohnen, guter Infrastruktur und aktiver Nachbarschaft macht Angelmodde besonders für Familien und Berufspendler attraktiv.
Infrastruktur (im Umkreis von 5 km):
Apotheke, Lebensmittel-Discount, Allgemeinmediziner, Kindergarten, Grundschule, Realschule, Öffentliche Verkehrsmittel
Sonstige Informationen
Heizungsart: Zentralheizung
Energieträger: Gas
Makleranfragen nicht erwünscht. Nach § 7 UWG sind unaufgeforderte Kontaktaufnahmen durch Makler ohne ausdrückliche Einwilligung des Empfängers verboten!
ohne-makler (OM) ist weder Anbieter noch Vermittler der Immobilie. OM betreibt eine Plattform für Immobilieneigentümer, die unter anderem die gleichzeitige Veröffentlichung einzelner Inserate auf mehreren Immobilienportalen ermöglicht. Die Inhalte dieser Inserate werden ausschließlich von Dritten verantwortet. Für die Richtigkeit, Vollständigkeit oder Rechtmäßigkeit der Angaben übernimmt OM keine Haftung. Hinweise auf mögliche Rechtsverstöße können jederzeit gemeldet werden und werden nach Prüfung umgehend bearbeitet.
Wohnzimmer mit Gartenausblick
Ess-/Wohnzimmer
Wohn-/Esszimmer
Esszimmer
Ess-/Wohnzimmer
Gäse-WC im EG
WC im 1. OG
Badezimmer mit Dusche
Schlafzimmer mit Balkon, 1. OG
Schlafzimmer mit Balkon, 1. OG
Kinder-/Arbeitszimmer
Kinderzimmer 2
Kinderzimmer 2
Erdgeschoss
1. OG
DG
Keller
Seiten-/Gartenansicht
Vorder-/Schnittansicht