Exposé
Objektart:
Haus
» Doppelhaushaelfte
» Kauf
Standort: Haus »
Deutschland » Brandenburg » Märkisch-Oderland (Kreis) » Müncheberg
Ihre DHH für mehr Freiraum - inkl. Grundstück
Doppelhaushälfte Streif
Das Wichtigste auf einen Blick:
| Objektnummer: | 9344510 |
Preise
| Kaufpreis | 418.998 € |
| Nebenkosten | keine Angabe |
Flächen
| Wohnfläche | 118 m² |
| Grundstücksfläche | 798 m² |
Objekt Adresse
15374 Müncheberg
Sonstige Angaben
| Zimmer | 4 |
| Verfügbar ab | keine Angabe |
| Bad | 1 |
| Anzahl der Etagen im Haus | 2 |
| Bad | 1 |
Objektbeschreibung
Hier entstehen individuell geplante Doppelhaushälften, die moderne Architektur mit durchdachten Grundrissen verbinden. Jede Einheit verfügt über eine sonnige Terrasse, die zum Entspannen im Freien einlädt, sowie über einen praktischen Carport direkt am Haus. So genießen Sie Wohnkomfort auf hohem Niveau in Ihrem eigenen Zuhause."
Ausstattung
Das Streif City Haus wird im Standard KFW 40 PLUS ausgeführt. Grundstück inkl. Innenausstattung aus dem STREIF-Programm in der Ausbaustufe FF+ inklusive Fundamentplatte.
■ Rohbau (geschlossene Gebäudehülle) mit Fenstern, Haustür1 inkl. Dacheindeckung
■ Außenfassade inkl. Außenputz, vor Ort komplett fertiggestellt
■ Komplette Blechner-/Spenglerarbeiten
■ lnnen-/Außenwände wärme- und schallgedämmt und mit Gipsfaserplatten geschlossen
■ Geschosstreppe (außer Bungalow)
■ Decken wärme- und schallgedämmt und mit Gipskartonbau platten geschlossen
■ Elektroinstallation, einschließlich erforderlichem Zählerschrank und Inbetriebnahme
■ Heizungsanlage inkl. Inbetriebnahme
■ Innenfensterbänke Kunststeinbänke (Gussmarmorbänke) inkl. Einbau
■ Estrich
■ Sanitärräume mit Wand- und Bodenfliesen
■ Sanitärräume mit Sanitärobjekten
■ 6,23 kWP Photovoltaikanlage und 7,7 kWh Speicher
Die Innentüren sowie Wand-, Decken- und Bodenbeläge der übrigen Räume sind Eigenleistungen des Bauherren.
STREIF Frischluft-Wärmepumpen-Technologie - inklusive
- Heizen mit frischer Außenluft
- Kein Gasanschluss, kein Öl- oder Pelletlagerraum
- Keine Heizkörper
- Wärmetauscher mit bis zu 85% Wärmerückgewinnung
Die dargestellten Bilder können Sonderausstattungen beinhalten, die nicht im Preis enthalten sind!
zzgl. Ortüblicher Baunebenkosten
Selbstverständlich können wir Ihr Haus auch schlüsselfertig / bezugsfertig errichten.
■ Bodenbeläge, Sockel leisten verlegt
■ Maler- und Tapezierarbeiten
■ Innentüren inkl. Einbau
■ Rohbau (geschlossene Gebäudehülle) mit Fenstern, Haustür1 inkl. Dacheindeckung
■ Außenfassade inkl. Außenputz, vor Ort komplett fertiggestellt
■ Komplette Blechner-/Spenglerarbeiten
■ lnnen-/Außenwände wärme- und schallgedämmt und mit Gipsfaserplatten geschlossen
■ Geschosstreppe (außer Bungalow)
■ Decken wärme- und schallgedämmt und mit Gipskartonbau platten geschlossen
■ Elektroinstallation, einschließlich erforderlichem Zählerschrank und Inbetriebnahme
■ Heizungsanlage inkl. Inbetriebnahme
■ Innenfensterbänke Kunststeinbänke (Gussmarmorbänke) inkl. Einbau
■ Estrich
■ Sanitärräume mit Wand- und Bodenfliesen
■ Sanitärräume mit Sanitärobjekten
■ 6,23 kWP Photovoltaikanlage und 7,7 kWh Speicher
Die Innentüren sowie Wand-, Decken- und Bodenbeläge der übrigen Räume sind Eigenleistungen des Bauherren.
STREIF Frischluft-Wärmepumpen-Technologie - inklusive
- Heizen mit frischer Außenluft
- Kein Gasanschluss, kein Öl- oder Pelletlagerraum
- Keine Heizkörper
- Wärmetauscher mit bis zu 85% Wärmerückgewinnung
Die dargestellten Bilder können Sonderausstattungen beinhalten, die nicht im Preis enthalten sind!
zzgl. Ortüblicher Baunebenkosten
Selbstverständlich können wir Ihr Haus auch schlüsselfertig / bezugsfertig errichten.
■ Bodenbeläge, Sockel leisten verlegt
■ Maler- und Tapezierarbeiten
■ Innentüren inkl. Einbau
Lage des Objektes
Sie haben bereits ein Grundstück?
Perfekt! Gemeinsam mit Ihnen plane ich gerne die Bebauung. Egal ob Einfamilienhaus, Mehrgenerationenhaus, Bungalow oder Cityvilla: Wir finden genau Ihr Traumhaus. Mit STREIF können Sie natürlich auch komplett individuell bauen.
Sie haben kein Grundstück?
Auch kein Problem! Ich bin Ihr Ansprechpartner in der Region und unterstütze Sie gerne bei der Suche nach der passenden Immobilie. Alle meine Angebote basieren auf einem real existierendem Grundstück.
Perfekt! Gemeinsam mit Ihnen plane ich gerne die Bebauung. Egal ob Einfamilienhaus, Mehrgenerationenhaus, Bungalow oder Cityvilla: Wir finden genau Ihr Traumhaus. Mit STREIF können Sie natürlich auch komplett individuell bauen.
Sie haben kein Grundstück?
Auch kein Problem! Ich bin Ihr Ansprechpartner in der Region und unterstütze Sie gerne bei der Suche nach der passenden Immobilie. Alle meine Angebote basieren auf einem real existierendem Grundstück.
Sonstige Informationen
Mit STREIF haben Sie einen Baupartner mit Bau-Know-how, der seit 1929 auf fast 100 Jahre und 100.000 realisierte Wohnträume zurückblicken kann.
Jedes Haus von STREIF wird individuell als Energiesparhaus geplant und gebaut. Eine nachhaltige, ökologische und wohngesunde Bauweise, eine zertifizierte Ausführungsqualität und eine kurze Bauzeit, dafür stehen wir.
Im Anschluss der gemeinsamen Bedarfsermittlung erstellen wir Ihnen Ihren individuellen Planungsvorschlag mit einer detaillierten & realistisch ermittelten Aufstellung der Gesamt-Investition.
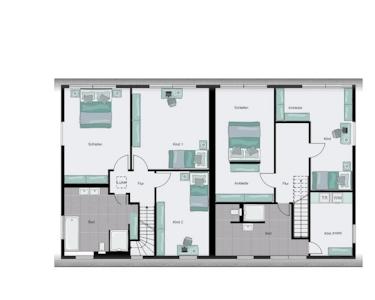
Grundriss EG
Grundriss DG
Ihr Berater Andreas Ott
Streif Innendesign
Bauherren kommen zu Wort
Streif Bauherren
Unsere Bauherren
BIRN Bau Institut
Bonitätszertifikat
Fairster Fertighaushersteller