Exposé
Objektart:
Wohnung
» Etage
» Kauf
Standort: Wohnung »
Deutschland » Bayern » Nürnberg, Stadt (Kreis) » Nürnberg
3,5-Zimmer-Wohnung im 3. OG in Nürnberg-Schoppershof
Wohnzimmer
Das Wichtigste auf einen Blick:
| Objektnummer: | 9343863 |
Preise
| Kaufpreis | 420.000 € |
| Nebenkosten | keine Angabe |
| Hausgeld | 180 € |
Flächen
| Wohnfläche | 98 m² |
| Maklerprovision | keine Provision, courtagefrei |
Objekt Adresse
Ludwig-Feuerbach-Straße 43
90489 Nürnberg
- Bayern
Sonstige Angaben
| Baujahr | 1955 |
| Zimmer | 3,5 |
| Verfügbar ab | 01.03.2026 |
| Bad | 2 |
| Anzahl der Etagen im Haus | 4 |
| Inserat befindet sich im Stockwerk | 3 |
| Bad | 2 |
| Boden | Fliesen, Parkett |
| Heizungsart | Etagenheizung |
| Energieträger/Befeuerung | Gas |
Objektbeschreibung
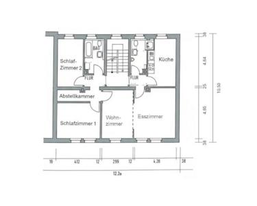
Diese helle und gut geschnittene 3,5-Zimmer-Wohnung mit ca. 98 m² Wohnfläche befindet sich im 3. Obergeschoss eines gepflegten Mehrfamilienhauses im beliebten Nürnberger Stadtteil Schoppershof. Die Wohnung überzeugt durch einen großzügigen Grundriss, zwei Badezimmer und einen Wohn-/Essbereich mit viel Tageslicht – ideal für Paare, Familien oder Anleger. Es handelt sich um einen Privatverkauf ohne Maklerprovision.
Ausstattung & Aufteilung
- Großzügiges Wohn- und Esszimmer
- Zwei Schlafzimmer
- Küche mit angrenzendem, 2018 saniertem Badezimmer
- Zweites Badezimmer
- Holzdielenboden
- Neuer Gas-Etagenheizkessel aus 11/2018
- Fenster der Südseite 2015 erneuert, alle mit Rollläden
- Kellerabteil zur Wohnung zugehörig
- Einbauküche mit Elektrogeräten
- Planungen für Balkonanbau liegen vor
Die Wohnung wurde seit 2016 vom Eigentümer selbst genutzt und steht ab dem 1. März 2026 zur Verfügung.
Ausstattung & Aufteilung
- Großzügiges Wohn- und Esszimmer
- Zwei Schlafzimmer
- Küche mit angrenzendem, 2018 saniertem Badezimmer
- Zweites Badezimmer
- Holzdielenboden
- Neuer Gas-Etagenheizkessel aus 11/2018
- Fenster der Südseite 2015 erneuert, alle mit Rollläden
- Kellerabteil zur Wohnung zugehörig
- Einbauküche mit Elektrogeräten
- Planungen für Balkonanbau liegen vor
Die Wohnung wurde seit 2016 vom Eigentümer selbst genutzt und steht ab dem 1. März 2026 zur Verfügung.
Ausstattung
Parkett, Fliesen
Lage des Objektes
Nürnberg-Schoppershof: ruhig, zentral und hervorragend angebunden
Der Stadtteil Schoppershof gehört zu den begehrten Wohnlagen östlich der Nürnberger Altstadt. Er verbindet eine ruhige, grüne Umgebung mit einer hervorragenden Infrastruktur und idealer Anbindung.
Vorteile der Lage:
Zentrumsnah: ca. 10 Minuten mit dem Fahrrad oder ÖPNV in die Nürnberger Innenstadt
Sehr gute ÖPNV-Anbindung: Straßenbahn (Deichslerstraße) und U-Bahn (Rennweg) in wenigen Minuten erreichbar
Nähe zur Natur: Der Wöhrder See und weitläufige Grünflächen wie der Stadtpark und der Rechenbergpark liegen praktisch vor der Haustüre – perfekt für Spaziergänge, Jogging oder Erholung am Wasser
Einkaufsmöglichkeiten: Supermärkte, Bäckereien, Apotheken und Cafés befinden sich in direkter Umgebung
Familienfreundlich: Schulen, Kitas und Spielplätze befinden sich im nahen Umfeld. Der Fenitzerplatz und der Mammutspielplatz sowie AKI sind nur einen Katzensprung entfernt.
Ärztepraxis im Haus schräg gegenüber gut erreichbar.
Beliebte Wohngegend: Ruhige Seitenstraßen, grünes Umfeld und eine angenehme Nachbarschaft prägen den Charakter von Schoppershof.
Die Kombination aus zentraler Lage, hoher Lebensqualität und guter Infrastruktur macht diese Wohnung sowohl für Eigennutzer als auch für Kapitalanleger äußerst attraktiv.
Infrastruktur (im Umkreis von 5 km):
Apotheke, Lebensmittel-Discount, Allgemeinmediziner, Kindergarten, Grundschule, Hauptschule, Realschule, Gymnasium, Gesamtschule, Öffentliche Verkehrsmittel
Der Stadtteil Schoppershof gehört zu den begehrten Wohnlagen östlich der Nürnberger Altstadt. Er verbindet eine ruhige, grüne Umgebung mit einer hervorragenden Infrastruktur und idealer Anbindung.
Vorteile der Lage:
Zentrumsnah: ca. 10 Minuten mit dem Fahrrad oder ÖPNV in die Nürnberger Innenstadt
Sehr gute ÖPNV-Anbindung: Straßenbahn (Deichslerstraße) und U-Bahn (Rennweg) in wenigen Minuten erreichbar
Nähe zur Natur: Der Wöhrder See und weitläufige Grünflächen wie der Stadtpark und der Rechenbergpark liegen praktisch vor der Haustüre – perfekt für Spaziergänge, Jogging oder Erholung am Wasser
Einkaufsmöglichkeiten: Supermärkte, Bäckereien, Apotheken und Cafés befinden sich in direkter Umgebung
Familienfreundlich: Schulen, Kitas und Spielplätze befinden sich im nahen Umfeld. Der Fenitzerplatz und der Mammutspielplatz sowie AKI sind nur einen Katzensprung entfernt.
Ärztepraxis im Haus schräg gegenüber gut erreichbar.
Beliebte Wohngegend: Ruhige Seitenstraßen, grünes Umfeld und eine angenehme Nachbarschaft prägen den Charakter von Schoppershof.
Die Kombination aus zentraler Lage, hoher Lebensqualität und guter Infrastruktur macht diese Wohnung sowohl für Eigennutzer als auch für Kapitalanleger äußerst attraktiv.
Infrastruktur (im Umkreis von 5 km):
Apotheke, Lebensmittel-Discount, Allgemeinmediziner, Kindergarten, Grundschule, Hauptschule, Realschule, Gymnasium, Gesamtschule, Öffentliche Verkehrsmittel
Sonstige Informationen
Heizungsart: Etagenheizung
Energieträger: Gas
Energieausweis nicht vorhanden
Makleranfragen nicht erwünscht. Nach § 7 UWG sind unaufgeforderte Kontaktaufnahmen durch Makler ohne ausdrückliche Einwilligung des Empfängers verboten!
ohne-makler (OM) ist weder Anbieter noch Vermittler der Immobilie. OM betreibt eine Plattform für Immobilieneigentümer, die unter anderem die gleichzeitige Veröffentlichung einzelner Inserate auf mehreren Immobilienportalen ermöglicht. Die Inhalte dieser Inserate werden ausschließlich von Dritten verantwortet. Für die Richtigkeit, Vollständigkeit oder Rechtmäßigkeit der Angaben übernimmt OM keine Haftung. Hinweise auf mögliche Rechtsverstöße können jederzeit gemeldet werden und werden nach Prüfung umgehend bearbeitet.
Wohn / Esszimmer
Esszimmer
Bad 1
Bad 2
Gastherme
Schlafzimmer 2
Treppenhaus