Exposé
Objektart:
Hallen / Lager / Produktion
» Lager
» Miete
Standort: Hallen / Lager / Produktion »
Deutschland » Baden-Württemberg » Pforzheim (Kreis) » Pforzheim
Ebenerdige neuwertige Lagerfläche mit Büro zu vermieten
Haupteingang
Das Wichtigste auf einen Blick:
| Objektnummer: | 9343865 |
Preise
| Kaltmiete (netto) | 490 € |
| Nebenkosten | 60 € |
| Heizkosten enthalten | Ja |
| Kaution | 1.470 € |
Flächen
| Gesamtfläche | 68 m² |
| Maklerprovision | keine Provision, courtagefrei |
Objekt Adresse
Erbprinzenstraße 17
75175 Pforzheim
- Baden-Württemberg
Sonstige Angaben
| Baujahr | 2019 |
| Verfügbar ab | nach Absprache |
| Inserat befindet sich im Stockwerk | 0 |
| Energieausweistyp | Bedarfsausweis |
| Heizungsart | Zentralheizung |
| Energieträger/Befeuerung | Fernwärme |
Objektbeschreibung
Lagerflächen in zentraler Lage in Pforzheim zu vermieten
- Nur ca. 250 m vom Hauptbahnhof entfernt -
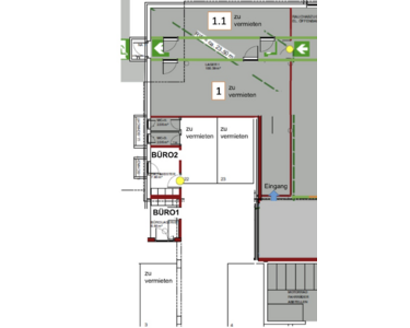
Wir bieten folgende Lagerabteile zur Vermietung an:
- Lagerabteil 1 inkl. Tageslicht-Büroraum
Fläche: ca. 68 m²
Miete: 490,00 € netto/Monat
- Lagerabteil 1.1
Optional kann auch eine weitere Fläche anegmietet werden.
Fläche: ca. 23 m²
Miete: 170,00 € netto/Monat
Ausstattung & Vorteile:
- Ideal zur Einlagerung verschiedenster Waren oder Materialien
- Direkte An- und Abfahrt zum Be- und Entladen
- Ebenerdiger Zugang
- Gemeinschaftstoilette vorhanden
Optional zusätzlich anmietbar:
- Bis zu 3 TG-Stellplätze zu je 69 EUR/netto
- Eigenes WC
- Weiterer Büroraum
Bei Interesse oder für weitere Informationen stehen wir Ihnen gerne zur Verfügung.
Gerne können die Fläche auch gemeinsam angemietet werden.
- Nur ca. 250 m vom Hauptbahnhof entfernt -
Wir bieten folgende Lagerabteile zur Vermietung an:
- Lagerabteil 1 inkl. Tageslicht-Büroraum
Fläche: ca. 68 m²
Miete: 490,00 € netto/Monat
- Lagerabteil 1.1
Optional kann auch eine weitere Fläche anegmietet werden.
Fläche: ca. 23 m²
Miete: 170,00 € netto/Monat
Ausstattung & Vorteile:
- Ideal zur Einlagerung verschiedenster Waren oder Materialien
- Direkte An- und Abfahrt zum Be- und Entladen
- Ebenerdiger Zugang
- Gemeinschaftstoilette vorhanden
Optional zusätzlich anmietbar:
- Bis zu 3 TG-Stellplätze zu je 69 EUR/netto
- Eigenes WC
- Weiterer Büroraum
Bei Interesse oder für weitere Informationen stehen wir Ihnen gerne zur Verfügung.
Gerne können die Fläche auch gemeinsam angemietet werden.
Ausstattung
Bemerkungen:
- Strom/Wasser vorhanden
- Starkstrom vorhanden
- Vorrichtung für Kühlzellen vorhanden
Lage des Objektes
Nur ca. 250 m vom Hauptbahnhof Pforzheim entfernt.
Adresse: Erbprinzenstraße 17, Pforzheim
Adresse: Erbprinzenstraße 17, Pforzheim
Sonstige Informationen
Heizungsart: Zentralheizung
Energieträger: Fernwärme
Vermietung direkt vom Eigentümer.
Telefonisch direkt unter 0171 42 77943 zu erreichen.
ohne-makler (OM) ist weder Anbieter noch Vermittler der Immobilie. OM betreibt eine Plattform für Immobilieneigentümer, die unter anderem die gleichzeitige Veröffentlichung einzelner Inserate auf mehreren Immobilienportalen ermöglicht. Die Inhalte dieser Inserate werden ausschließlich von Dritten verantwortet. Für die Richtigkeit, Vollständigkeit oder Rechtmäßigkeit der Angaben übernimmt OM keine Haftung. Hinweise auf mögliche Rechtsverstöße können jederzeit gemeldet werden und werden nach Prüfung umgehend bearbeitet.
Grundriss
Eingang
Zufahrt
Parken
Eingang Lager 1
Büro
Flächen
Anschlüsse
WC
Grundriss