Exposé
Objektart:
Haus
» Einfamilienhaus
» Kauf
Standort: Haus »
Deutschland » Baden-Württemberg » Karlsruhe (Kreis) » Walzbachtal
Neuwertiges, schönes Einfamilienhaus * in Walzbachtal
Aussenansicht
Das Wichtigste auf einen Blick:
| Objektnummer: | 9343575 |
Preise
| Kaufpreis | 479.000 € |
| Nebenkosten | keine Angabe |
Flächen
| Wohnfläche | 131 m² |
| Grundstücksfläche | 432 m² |
| Maklerprovision | keine Provision, courtagefrei |
Objekt Adresse
Im Gageneck 36
75045 Walzbachtal
- Baden-Württemberg
Sonstige Angaben
| Baujahr | 2009 |
| Zimmer | 5 |
| Verfügbar ab | sofort |
| Bad | 1 |
| Anzahl der Etagen im Haus | 3 |
| Bad | 1 |
| Bad | Dusche, Wanne |
| Boden | Fliesen, Laminat |
| Garten | Ja |
| Heizungsart | Zentralheizung |
| Energieträger/Befeuerung | Gas |
Objektbeschreibung
Sie können sofort einziehen: Dieses, im Jahr 2009 erbaute und schöne Einfamilienhaus vereint tollen Wohnkomfort mit effizienter Energienutzung. Das Haus steht in ruhiger Lage von Walzbachtal.
Das Erdgeschoss umfasst das großzügige Wohnzimmer mit angeschlossener Küche sowie das Gäste-WC und ein Gästezimmer oder Büro. Vom Wohnzimmer gelangen Sie direkt in den Gartenbereich.
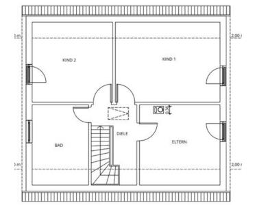
Im Obergeschoss befinden sich drei Schlafzimmer sowie das Badezimmer mit Dusche und Badewanne.
Das Haus ist vollständig unterkellert und umfasst diverse Kellerräume und den Haustechnikraum. Das Haus punktet mit moderner Ausstattung, effizientem Energiekonzept und einer ruhigen, familienfreundlichen Wohnlage – Ihr ideales Zuhause.
Die Außenanlagen können Sie nach Ihren Vorstellungen noch gestalten.
Das Haus ist sofort verfügbar.
Das Haus wird mittels Gasheizung beheizt.
Der Energieausweis wird derzeit erstellt.
Der Verkauf erfolgt von Privat und ist somit provisionsfrei.
Makler Anfragen sind ausdrücklich nicht erwünscht und werden nicht beantwortet.
Das Erdgeschoss umfasst das großzügige Wohnzimmer mit angeschlossener Küche sowie das Gäste-WC und ein Gästezimmer oder Büro. Vom Wohnzimmer gelangen Sie direkt in den Gartenbereich.
Im Obergeschoss befinden sich drei Schlafzimmer sowie das Badezimmer mit Dusche und Badewanne.
Das Haus ist vollständig unterkellert und umfasst diverse Kellerräume und den Haustechnikraum. Das Haus punktet mit moderner Ausstattung, effizientem Energiekonzept und einer ruhigen, familienfreundlichen Wohnlage – Ihr ideales Zuhause.
Die Außenanlagen können Sie nach Ihren Vorstellungen noch gestalten.
Das Haus ist sofort verfügbar.
Das Haus wird mittels Gasheizung beheizt.
Der Energieausweis wird derzeit erstellt.
Der Verkauf erfolgt von Privat und ist somit provisionsfrei.
Makler Anfragen sind ausdrücklich nicht erwünscht und werden nicht beantwortet.
Ausstattung
Garten, Vollbad, Duschbad, Gäste-WC, Laminat, Fliesen
Sonstige Informationen
Heizungsart: Zentralheizung
Energieträger: Gas
Energieausweis nicht vorhanden
Makleranfragen nicht erwünscht. Nach § 7 UWG sind unaufgeforderte Kontaktaufnahmen durch Makler ohne ausdrückliche Einwilligung des Empfängers verboten!
ohne-makler (OM) ist weder Anbieter noch Vermittler der Immobilie. OM betreibt eine Plattform für Immobilieneigentümer, die unter anderem die gleichzeitige Veröffentlichung einzelner Inserate auf mehreren Immobilienportalen ermöglicht. Die Inhalte dieser Inserate werden ausschließlich von Dritten verantwortet. Für die Richtigkeit, Vollständigkeit oder Rechtmäßigkeit der Angaben übernimmt OM keine Haftung. Hinweise auf mögliche Rechtsverstöße können jederzeit gemeldet werden und werden nach Prüfung umgehend bearbeitet.
Wohnzimmer
Wohnzimmer
so könnte es aussehen
Gäste-WC
Zimmer im EG
So könnte es aussehen
Küche
So könnte es aussehen
Treppenaufgang
Zimmer
so könnte aus aussehen
Zimmer
so könnte aus aussehen
Zimmer
so könnte aus aussehen
Bad
Bad
Kellerbereich
Keller
Keller
Aussenansicht
Aussenansicht
EG
DG
KG