Exposé
Objektart:
Hallen / Lager / Produktion
» Halle
» Miete
Standort: Hallen / Lager / Produktion »
Deutschland » Baden-Württemberg » Ortenaukreis (Kreis) » Hohberg
Gewerbehalle 400-1800 m2 zu vermieten
Das Wichtigste auf einen Blick:
| Objektnummer: | 9343169 |
Preise
| Miete für das Objekt | Auf Anfrage |
| Nebenkosten | keine Angabe |
Flächen
| Gesamtfläche | 1.773 m² |
| Freifläche | 1 m² |
| Maklerprovision | keine Provision, courtagefrei |
Objekt Adresse
77749 Hohberg
- Baden-Württemberg
Sonstige Angaben
| Baujahr | 1982 |
| Verfügbar ab | nach Absprache |
| Anzahl der Etagen im Haus | 1 |
| Inserat befindet sich im Stockwerk | 0 |
| Energieträger/Befeuerung | Elektro |
Objektbeschreibung
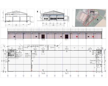
Zur Vermietung steht eine sanierte und beheizte Lagerhalle mit einer Gesamtfläche von 400 bis ca. 1.800 m² im Gewerbegebiet GRO Hohberg – Hofweier an der B3 (nähe Offenburg-Elgersweier). Die Halle eignet sich ideal für Logistik, Produktion, Handwerk oder Handel und überzeugt durch ihre gute Ausstattung sowie die hervorragende Verkehrsanbindung.
Ausstattung
Bemerkungen:
•Gesamtfläche: ca. 1.773 m² (davon Lagerhalle 1.640 m2 Sozialtrakt 90 m2, Erweiterung optional 43 m2)
•Baujahr: 1982, umfassend saniert
•Beheizt (moderne Heizungsanlage/ Wärmepumpenanlage)
•Hallenhöhe innen : 6 m
•Zufahrt: ebenerdig, große Tore für LKW-Anlieferung
•Zugänge: über 8 Tore (3x4 m), Laderampe/ überdacht, Überladebrücken
•Boden: belastbar 25 kN, geeignet für Staplerverkehr
•Beleuchtung: LED/Industriebeleuchtung
•Büro- und Sozialräume vorhanden, Erweiterung optional integrierbar
•Stellplätze für Mitarbeiter und Kunden vorhanden
Lage des Objektes
Die Immobilie befindet sich im Gewerbegebiet GRO Offenburg Hohberg (nähe Elgersweier), direkt an der B3 (400 m) und nur wenige Minuten von der A5 entfernt.
•Logistikvorteil: schnelle Anbindung Richtung Karlsruhe, Freiburg und Schweiz
•ÖPNV: gute Erreichbarkeit für Mitarbeiter
•Umfeld: etablierte Gewerbebetriebe, Handwerk, Logistikunternehmen
•Logistikvorteil: schnelle Anbindung Richtung Karlsruhe, Freiburg und Schweiz
•ÖPNV: gute Erreichbarkeit für Mitarbeiter
•Umfeld: etablierte Gewerbebetriebe, Handwerk, Logistikunternehmen
Sonstige Informationen
Heizungsart: Sonstiges (s. Text)
Energieträger: Strom
Energieausweis nicht vorhanden
•Sanierte Halle mit moderner Heiztechnik
•Attraktive mittlere Flächengröße (ca. 1.800 m²)
•Sehr gute Verkehrsanbindung für Logistik und Produktion
•Freiflächen für Lagerung und Stellplätze
•Sofort verfügbar
Makleranfragen nicht erwünscht. Nach § 7 UWG sind unaufgeforderte Kontaktaufnahmen durch Makler ohne ausdrückliche Einwilligung des Empfängers verboten!
ohne-makler (OM) ist weder Anbieter noch Vermittler der Immobilie. OM betreibt eine Plattform für Immobilieneigentümer, die unter anderem die gleichzeitige Veröffentlichung einzelner Inserate auf mehreren Immobilienportalen ermöglicht. Die Inhalte dieser Inserate werden ausschließlich von Dritten verantwortet. Für die Richtigkeit, Vollständigkeit oder Rechtmäßigkeit der Angaben übernimmt OM keine Haftung. Hinweise auf mögliche Rechtsverstöße können jederzeit gemeldet werden und werden nach Prüfung umgehend bearbeitet.