Exposé
Objektart:
Wohnung
» Etage
» Kauf
Standort: Wohnung »
Deutschland » Berlin » Berlin, Stadt (Kreis) » Berlin
Bezugsfreie sonnige, top-sanierte 3-Zi-Altbauwhg mit Erker beim Lausitzer Platz
Das Wichtigste auf einen Blick:
| Objektnummer: | 9343177 |
Preise
| Kaufpreis | 829.000 € |
| Nebenkosten | keine Angabe |
| Hausgeld | 298 € |
Flächen
| Wohnfläche | 96 m² |
| Maklerprovision | keine Provision, courtagefrei |
Objekt Adresse
10997 Berlin
- Berlin
Sonstige Angaben
| Baujahr | 1890 |
| Zimmer | 3 |
| Verfügbar ab | nach Absprache |
| Bad | 1 |
| Anzahl der Etagen im Haus | 5 |
| Inserat befindet sich im Stockwerk | 3 |
| Küche | Einbauküche |
| Bad | 1 |
| Bad | Wanne |
| Energieausweistyp | Verbrauch |
| Energieeffizienzklasse | C |
| Energieverbrauchkennwert | 92 kWh/(m²*a) |
| Heizungsart | Etagenheizung |
| Energieträger/Befeuerung | Gas |
Objektbeschreibung
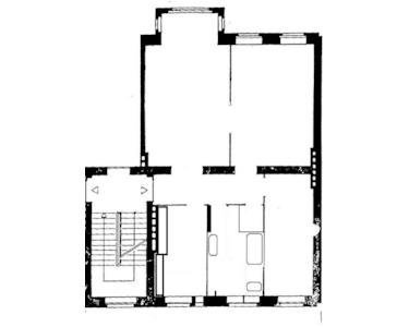
Diese perfekt geschnittene Vorderhaus-Wohnung mit Erker im 3. Stock eines Jahrhundertwende-Altbaus verfügt über viele ursprüngliche oder aufgearbeitete originale Details wie Stuckornamente, Holztüren mit Messingbeschlägen, abgezogene Holzdielen und Holzrahmen Fenster mit Isolierverglasung. Ein ausgeklügeltes Farbkonzept bringt die 3,38 m hohen Stuck-Decken besonders zu Geltung und erzeugt ein grosszügiges und edles Raumgefühl.
Das Haus wird von einer engagierten Eigentümergemeinschaft gemanagt und wird zur Hälfte von Eigentümern und zur Hälfte von Mietern bewohnt. Die Fassade wurde 2022 saniert, sämtliche Altbaufenster wurden 2016 durch originalgetreu nachgebaute, moderne Isolierglasfenster ersetzt, was zu einer erheblichen energetischen Verbesserung geführt hat. Das Wohngeld ist mit 298 Euro sehr günstig. Das Treppenhaus wurde vor zwei Jahre komplett renoviert. Der Einbau eines Fahrstuhls wird aktuell geplant.
This perfectly proportioned front-facing flat with a bay window on the third floor of a turn-of-the-century building features many original or refurbished details such as stucco ornamentation, wooden doors with brass fittings, stripped wooden floorboards and wooden-framed windows with double glazing. A sophisticated colour scheme accentuates the 3.38 m high stucco ceilings and creates a spacious and elegant feel.
The building is managed by a dedicated owners' association and is half owner-occupied and half rented. The façade was renovated in 2022, all the old windows were replaced in 2016 with modern insulated glass windows that are faithful replicas of the originals, resulting in a significant improvement in energy efficiency. The monthly maintenance charge is very reasonable at € 298. The stairwell was completely renovated two years ago. The installation of a lift is currently being planned.
Das Haus wird von einer engagierten Eigentümergemeinschaft gemanagt und wird zur Hälfte von Eigentümern und zur Hälfte von Mietern bewohnt. Die Fassade wurde 2022 saniert, sämtliche Altbaufenster wurden 2016 durch originalgetreu nachgebaute, moderne Isolierglasfenster ersetzt, was zu einer erheblichen energetischen Verbesserung geführt hat. Das Wohngeld ist mit 298 Euro sehr günstig. Das Treppenhaus wurde vor zwei Jahre komplett renoviert. Der Einbau eines Fahrstuhls wird aktuell geplant.
This perfectly proportioned front-facing flat with a bay window on the third floor of a turn-of-the-century building features many original or refurbished details such as stucco ornamentation, wooden doors with brass fittings, stripped wooden floorboards and wooden-framed windows with double glazing. A sophisticated colour scheme accentuates the 3.38 m high stucco ceilings and creates a spacious and elegant feel.
The building is managed by a dedicated owners' association and is half owner-occupied and half rented. The façade was renovated in 2022, all the old windows were replaced in 2016 with modern insulated glass windows that are faithful replicas of the originals, resulting in a significant improvement in energy efficiency. The monthly maintenance charge is very reasonable at € 298. The stairwell was completely renovated two years ago. The installation of a lift is currently being planned.
Ausstattung
Vollbad, Einbauküche, Sonstiges (s. Text)
Bemerkungen:
Die Elektrik und Sanitärinfrastruktur wurde komplett erneuert und ist auf dem neuesten Stand. Eine hochwertige Einbauküche mit Induktions-Kochfeld und Spülmaschine sowie ein großes, modernes Bad mit bodenebener Dusche, Badewanne und WC lassen im Hinblick auf Technik und Design keine Wünsche offen.
Eine Gas-Etagenheizung sorgt für eine autonome Energieversorgung (Warmwasser und Heizung), im zweiten Wohnzimmer ist ein Schornsteinanschluss für den Einbau eines Kamin-Ofens bereits vom Bezirksschornsteinfeger ausgewiesen und von der Hausgemeinschaft genehmigt, so dass der Einbau jederzeit erfolgen kann.
Eine praktische Abstellkammer mit Platz für Waschmaschine, Staubsauger, Koffer und Schuhe ist perfekt in das Wohnensemble integriert.
The electrical and plumbing infrastructure has been completely renovated and is state-of-the-art.
A high-quality fitted kitchen with induction hob and dishwasher, as well as a large, modern bathroom with walk-in shower, bathtub, and toilet, leave nothing to be desired in terms of technology and design.
An autonomous gas heating system also provides hot water. In the second living room, a chimney connection for the installation of a wood-burning stove has already been approved by the district chimney sweep and authorised by the residents, so that installation can take place at any time. A practical storage room with space for a washing machine, vacuum cleaner, suitcases, and shoes is perfectly integrated into the living ensemble.
Bemerkungen:
Die Elektrik und Sanitärinfrastruktur wurde komplett erneuert und ist auf dem neuesten Stand. Eine hochwertige Einbauküche mit Induktions-Kochfeld und Spülmaschine sowie ein großes, modernes Bad mit bodenebener Dusche, Badewanne und WC lassen im Hinblick auf Technik und Design keine Wünsche offen.
Eine Gas-Etagenheizung sorgt für eine autonome Energieversorgung (Warmwasser und Heizung), im zweiten Wohnzimmer ist ein Schornsteinanschluss für den Einbau eines Kamin-Ofens bereits vom Bezirksschornsteinfeger ausgewiesen und von der Hausgemeinschaft genehmigt, so dass der Einbau jederzeit erfolgen kann.
Eine praktische Abstellkammer mit Platz für Waschmaschine, Staubsauger, Koffer und Schuhe ist perfekt in das Wohnensemble integriert.
The electrical and plumbing infrastructure has been completely renovated and is state-of-the-art.
A high-quality fitted kitchen with induction hob and dishwasher, as well as a large, modern bathroom with walk-in shower, bathtub, and toilet, leave nothing to be desired in terms of technology and design.
An autonomous gas heating system also provides hot water. In the second living room, a chimney connection for the installation of a wood-burning stove has already been approved by the district chimney sweep and authorised by the residents, so that installation can take place at any time. A practical storage room with space for a washing machine, vacuum cleaner, suitcases, and shoes is perfectly integrated into the living ensemble.
Lage des Objektes
Die Wohnung befindet sich in einer der besten Lagen Kreuzbergs direkt neben dem Lausitzer Platz und nur einen Steinwurf von der berühmten "Markthalle Neun" entfernt. Unweit der Oranienstrasse gelegen, lebt man hier in einem der dynamischsten Stadteile von Berlin und dennoch in absolut ruhiger Lage. Berlin-Mitte und Prenzlauer Berg sowie Friedrichshain sind leicht zu erreichen, ebenso wie der Treptower Park.
Der Landwehrkanal, das Paul-Lincke-Ufer sowie das Maybachufer sind nur wenige Fahrradminuten entfernt. Zahlreiche Geschäfte, beliebte Restaurants, tolle Spielplätze, Kitas, Schulen, Arztpraxen und Parks befinden sich in unmittelbarer Nähe. Die nahe gelegen U-Bahn Station "Görlitzer Bahnhof" sowie verschiedene Buslinien garantieren eine exzellente Anbindung an den öffentlichen Nahverkehr. Ein perfektes, lebendiges Wohnumfeld für Singles, Paare und Familien gleichermaßen.
The apartment is located in one of Kreuzberg's best locations, right next to Lausitzer Platz and just a stone's throw away from the famous "Markthalle Nine". Not far from Oranienstrasse, you will be living in one of Berlin's most dynamic districts, yet in an absolutely quiet location. Berlin-Mitte, Prenzlauer Berg, and Friedrichshain are within easy reach, as is Treptower Park. The Landwehr Canal, Paul-Lincke-Ufer, and Maybachufer are just a few minutes away by bike. Numerous shops, popular restaurants, great playgrounds, daycare centers, schools, doctors' offices, and parks are located in the immediate vicinity. The nearby subway station "Görlitzer Bahnhof" and various bus routes guarantee excellent public transport connections. A perfect, lively living environment for singles, couples, and families alike.
Infrastruktur (im Umkreis von 5 km):
Apotheke, Lebensmittel-Discount, Allgemeinmediziner, Kindergarten, Grundschule, Hauptschule, Realschule, Gymnasium, Gesamtschule, Öffentliche Verkehrsmittel
Der Landwehrkanal, das Paul-Lincke-Ufer sowie das Maybachufer sind nur wenige Fahrradminuten entfernt. Zahlreiche Geschäfte, beliebte Restaurants, tolle Spielplätze, Kitas, Schulen, Arztpraxen und Parks befinden sich in unmittelbarer Nähe. Die nahe gelegen U-Bahn Station "Görlitzer Bahnhof" sowie verschiedene Buslinien garantieren eine exzellente Anbindung an den öffentlichen Nahverkehr. Ein perfektes, lebendiges Wohnumfeld für Singles, Paare und Familien gleichermaßen.
The apartment is located in one of Kreuzberg's best locations, right next to Lausitzer Platz and just a stone's throw away from the famous "Markthalle Nine". Not far from Oranienstrasse, you will be living in one of Berlin's most dynamic districts, yet in an absolutely quiet location. Berlin-Mitte, Prenzlauer Berg, and Friedrichshain are within easy reach, as is Treptower Park. The Landwehr Canal, Paul-Lincke-Ufer, and Maybachufer are just a few minutes away by bike. Numerous shops, popular restaurants, great playgrounds, daycare centers, schools, doctors' offices, and parks are located in the immediate vicinity. The nearby subway station "Görlitzer Bahnhof" and various bus routes guarantee excellent public transport connections. A perfect, lively living environment for singles, couples, and families alike.
Infrastruktur (im Umkreis von 5 km):
Apotheke, Lebensmittel-Discount, Allgemeinmediziner, Kindergarten, Grundschule, Hauptschule, Realschule, Gymnasium, Gesamtschule, Öffentliche Verkehrsmittel
Sonstige Informationen
Heizungsart: Etagenheizung
Energieträger: Gas
Zur Wohnung gehört ein Keller. Im begrünten Innenhof ist Platz für Fahrräder.
Da es sich um einen Privatverkauf handelt, fallen keine Maklergebühren an.
The apartment comes with a basement storage unit. There is a space for bicycles in the verdant courtyard.
As this is a private sale, there are no brokerage fees.
No estate agent enquiries, please! According to Section 7 of the German Unfair Competition Act (UWG), unsolicited contact by estate agents without the express consent of the recipient is prohibited!
Makleranfragen nicht erwünscht. Nach § 7 UWG sind unaufgeforderte Kontaktaufnahmen durch Makler ohne ausdrückliche Einwilligung des Empfängers verboten!
ohne-makler (OM) ist weder Anbieter noch Vermittler der Immobilie. OM betreibt eine Plattform für Immobilieneigentümer, die unter anderem die gleichzeitige Veröffentlichung einzelner Inserate auf mehreren Immobilienportalen ermöglicht. Die Inhalte dieser Inserate werden ausschließlich von Dritten verantwortet. Für die Richtigkeit, Vollständigkeit oder Rechtmäßigkeit der Angaben übernimmt OM keine Haftung. Hinweise auf mögliche Rechtsverstöße können jederzeit gemeldet werden und werden nach Prüfung umgehend bearbeitet.
Grundriss Aktuell
Fassade
Grundriss Original
Keller