Exposé
Objektart:
Büro / Praxen
» Bueroflaeche
» Miete
Standort: Büro / Praxen »
Deutschland » Brandenburg » Oberhavel (Kreis) » Oranienburg
Büro oder Ladenfläche in zentraler Lage in Oranienburg
Das Wichtigste auf einen Blick:
| Objektnummer: | 9341907 |
Preise
| Kaltmiete (netto) | 620 € |
| Nebenkosten | 65 € |
| Kaution | 2.220 € |
Flächen
| Gesamtfläche | 51,8 m² |
| Bürofläche | 51,8 m² |
| Maklerprovision | keine Provision, courtagefrei |
Objekt Adresse
Bernauer Straße 71
16515 Oranienburg
- Brandenburg
Sonstige Angaben
| Baujahr | 1900 |
| Verfügbar ab | sofort |
| Anzahl der Etagen im Haus | 4 |
| Inserat befindet sich im Stockwerk | 0 |
| Energieausweistyp | Bedarfsausweis |
| Heizungsart | Zentralheizung |
| Energieträger/Befeuerung | Gas |
Objektbeschreibung
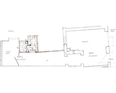
Büro bzw. Ladenfläche mit 51,8 qm Gesamtfläche in sehr schönem Stuck-Altbau in zentraler Lage in Oranienburg. Die Fläche besteht aus
- Einem Hauptraum mit 26,4 qm (direkter Zugang über den Eingang)
- Einem Flur mit ca. 9 qm
- Einem gefliesten Bad mit WC und Waschbecken mit 4,4 qm
- Einem zweiten Raum im hinteren Bereich mit ca. 12 qm. Dieser Raum besitzt auch einen Wasser- bzw. Küchenanschluss.
Großzügige Deckenhöhe von ca. 3,20m. Deckenleuchten und diverse Steckdosen vorhanden.
Der Boden hat einen PVC Belag und weist ein paar Gebrauchsspuren auf, sofern der Mieter eine Erneuerung des Bodenbelags wünscht, besteht die Möglichkeit einer Vermieterbeteiligung.
- Einem Hauptraum mit 26,4 qm (direkter Zugang über den Eingang)
- Einem Flur mit ca. 9 qm
- Einem gefliesten Bad mit WC und Waschbecken mit 4,4 qm
- Einem zweiten Raum im hinteren Bereich mit ca. 12 qm. Dieser Raum besitzt auch einen Wasser- bzw. Küchenanschluss.
Großzügige Deckenhöhe von ca. 3,20m. Deckenleuchten und diverse Steckdosen vorhanden.
Der Boden hat einen PVC Belag und weist ein paar Gebrauchsspuren auf, sofern der Mieter eine Erneuerung des Bodenbelags wünscht, besteht die Möglichkeit einer Vermieterbeteiligung.
Lage des Objektes
Die Lage ist sehr zentral in Oranienburg direkt an der Bernauer Straße in einem wunderschönen Altbau und in direkter Nachbarschaft zu mehreren anderen Gewerbeflächen (u.a. Blumenladen, Ergotherapie, Wahlkreisbüro, Hörakustiker).
Der S-Bahnhof Oranienburg in 6 min zu Fuß erreichbar
Diverse Restaurants und 2 Supermärkte in unmittelbarer Umgebung (2-5min fußläufig)
Infrastruktur (im Umkreis von 5 km):
Apotheke, Lebensmittel-Discount, Allgemeinmediziner, Kindergarten, Grundschule, Hauptschule, Realschule, Gymnasium, Gesamtschule, Öffentliche Verkehrsmittel
Der S-Bahnhof Oranienburg in 6 min zu Fuß erreichbar
Diverse Restaurants und 2 Supermärkte in unmittelbarer Umgebung (2-5min fußläufig)
Infrastruktur (im Umkreis von 5 km):
Apotheke, Lebensmittel-Discount, Allgemeinmediziner, Kindergarten, Grundschule, Hauptschule, Realschule, Gymnasium, Gesamtschule, Öffentliche Verkehrsmittel
Sonstige Informationen
Heizungsart: Zentralheizung
Energieträger: Gas
Kontakt:
kontakt@djs-hv.de
0152-56001291
Makleranfragen nicht erwünscht. Nach § 7 UWG sind unaufgeforderte Kontaktaufnahmen durch Makler ohne ausdrückliche Einwilligung des Empfängers verboten!
ohne-makler (OM) ist weder Anbieter noch Vermittler der Immobilie. OM betreibt eine Plattform für Immobilieneigentümer, die unter anderem die gleichzeitige Veröffentlichung einzelner Inserate auf mehreren Immobilienportalen ermöglicht. Die Inhalte dieser Inserate werden ausschließlich von Dritten verantwortet. Für die Richtigkeit, Vollständigkeit oder Rechtmäßigkeit der Angaben übernimmt OM keine Haftung. Hinweise auf mögliche Rechtsverstöße können jederzeit gemeldet werden und werden nach Prüfung umgehend bearbeitet.