Exposé
Objektart:
Hallen / Lager / Produktion
» Halle
» Kauf
Standort: Hallen / Lager / Produktion »
Deutschland » Bayern » Eichstätt (Kreis) » Großmehring
++ Provisionsfrei ++ Renditeobjekt - Zwei Gewerbeeinheiten mit Wohnung
Titelbild
Das Wichtigste auf einen Blick:
| Objektnummer: | 9341459 |
Preise
| Kaufpreis | 950.000 € |
| Nebenkosten | keine Angabe |
Flächen
| Gesamtfläche | 327 m² |
| Grundstücksfläche | 850 m² |
| Maklerprovision | keine Provision, courtagefrei |
Objekt Adresse
Gewerbeweg 4
85098 Großmehring
- Bayern
Sonstige Angaben
| Baujahr | 2015 |
| Verfügbar ab | nach Absprache |
| Garage/Stellplätze | 2 |
| Bad | Dusche |
| Boden | Fliesen, Teppich, Laminat |
| Garage/Stellplätze | 2 |
| Energieausweistyp | Bedarfsausweis |
| Heizungsart | Zentralheizung |
| Energieträger/Befeuerung | Gas |
Objektbeschreibung
Die hier angebotene Immobilie umfasst im wesentlichen drei Einheiten. Die Gewerbeeinheiten im Erdgeschoss und eine darüber-liegende Dachgeschosswohnung.
Einheit 1 – KFZ-Autohandel mit Büro und Lager
Die erste Gewerbeeinheit wird derzeit als KFZ-Autohandel bzw. Gebrauchtwagenhandel genutzt. Die Innen-Fläche bietet ausreichend Platz für Hebebühne und die Hoffläche Platz für Fahrzeuge, ergänzt durch ein praktisches Büro, ein kleines separates Kleinteileteillager sowie eine Gästetoilette mit Dusche. Über eine Wendeltreppe erreicht man einen gemütlichen Pausenraum im Obergeschoss. Diese Einheit ist ideal für KFZ, Handwerk oder technische Dienstleistung geeignet.
Einheit 2 – Büro mit Garage / Lagerfläche
Die zweite Einheit umfasst ein helles Büro mit mehreren Arbeitsplätzen und vielen Fensterflächen in Süd uns West-Ausrichtung. Angeschlossen ist eine Garage, die derzeit als Lager genutzt wird, und vielseitige Nutzungsmöglichkeiten bietet – etwa für Verwaltung, Agentur oder Gewerbebetrieb mit Lagerbedarf. Die gepflegte Ausstattung und die gute Belichtung schaffen eine angenehme Arbeitsatmosphäre. Die Büroeinheit unterliegt bestimmten Sicherheitsanforderungen, die eine Veröffentlichung von Bildern ausschließen. Eine persönliche Besichtigung ist jedoch jederzeit möglich.
Einheit 3 – Dachgeschosswohnung mit Südausrichtung
Die ca. 80 m² Wohnung im Dachgeschoss verfügt über einen offenen Wohn- und Küchenbereich im Flur, ein funktionales Badezimmer sowie zwei Schlafzimmer und ein separates Wohnzimmer. Die Räume sind freundlich gestaltet, mit Heizkörpern und Dachfenstern für ein angenehmes Wohnklima. Dank der Südausrichtung wirkt die Wohnung lichtdurchflutet und einladend. Der Zugang erfolgt über eine eigene Außentreppe.
Der zum Objekt gehörige Bebauungsplan ist auf der Webpräsenz der Gemeinde Großmehring "'Mischgebiet am Gewerbeweg" zu finden. Diese dort hinterlegten Informationen erfolgt ohne Gewähr und sollte vom Interessenten eigenständig bei den zuständigen Stellen geprüft werden.
Einheit 1 – KFZ-Autohandel mit Büro und Lager
Die erste Gewerbeeinheit wird derzeit als KFZ-Autohandel bzw. Gebrauchtwagenhandel genutzt. Die Innen-Fläche bietet ausreichend Platz für Hebebühne und die Hoffläche Platz für Fahrzeuge, ergänzt durch ein praktisches Büro, ein kleines separates Kleinteileteillager sowie eine Gästetoilette mit Dusche. Über eine Wendeltreppe erreicht man einen gemütlichen Pausenraum im Obergeschoss. Diese Einheit ist ideal für KFZ, Handwerk oder technische Dienstleistung geeignet.
Einheit 2 – Büro mit Garage / Lagerfläche
Die zweite Einheit umfasst ein helles Büro mit mehreren Arbeitsplätzen und vielen Fensterflächen in Süd uns West-Ausrichtung. Angeschlossen ist eine Garage, die derzeit als Lager genutzt wird, und vielseitige Nutzungsmöglichkeiten bietet – etwa für Verwaltung, Agentur oder Gewerbebetrieb mit Lagerbedarf. Die gepflegte Ausstattung und die gute Belichtung schaffen eine angenehme Arbeitsatmosphäre. Die Büroeinheit unterliegt bestimmten Sicherheitsanforderungen, die eine Veröffentlichung von Bildern ausschließen. Eine persönliche Besichtigung ist jedoch jederzeit möglich.
Einheit 3 – Dachgeschosswohnung mit Südausrichtung
Die ca. 80 m² Wohnung im Dachgeschoss verfügt über einen offenen Wohn- und Küchenbereich im Flur, ein funktionales Badezimmer sowie zwei Schlafzimmer und ein separates Wohnzimmer. Die Räume sind freundlich gestaltet, mit Heizkörpern und Dachfenstern für ein angenehmes Wohnklima. Dank der Südausrichtung wirkt die Wohnung lichtdurchflutet und einladend. Der Zugang erfolgt über eine eigene Außentreppe.
Der zum Objekt gehörige Bebauungsplan ist auf der Webpräsenz der Gemeinde Großmehring "'Mischgebiet am Gewerbeweg" zu finden. Diese dort hinterlegten Informationen erfolgt ohne Gewähr und sollte vom Interessenten eigenständig bei den zuständigen Stellen geprüft werden.
Ausstattung
Duschbad, Gäste-WC, Laminat, Teppichboden, Fliesen, Sonstiges (s. Text)
Bemerkungen:
Nachfolgend erhalten Sie einen Überblick über ausgewählte Ausstattungsmerkmale dieser Immobilie:
Grundstück
- Gesamtfläche von ca. 850 m²
- Teilweise gepflastert / geschottert
- rückseits eingezäunt
- Zufahrt über eine Längsseite Straßenseitig möglich
Gewerbemischeinheit (ca. 15m x 15m)
- ca. 327 m² Fläche, Garagenrolltore
- DG Wohnung mit ca. 80 m²
- Starkstrom, diverse Sicherheitskameras
Gebäudezustand: Gepflegt, laufend instandgehalten
Bauweise: Massivbau mit solider Gewerbeausstattung
Bodenbeläge: Fliesen, Industrieboden, Industrieteppich (Büro) und Laminat (Wohnung)
Heizung: Zentrale Gasheizung mit Heizkörpern
Sanitär: WC und Dusche in der Gewerbeeinheit, separates Bad in der Wohnung
Fenster: Kunststofffenster mit Isolierverglasung, teils Dachfenster
Zugang: Separate Eingänge für alle Einheiten, Außentreppe zur Wohnung
Außenflächen: Stellplätze direkt am Gebäude, teils befestigte Hoffläche
Technik: Stromanschlüsse in allen Einheiten, Netzwerk- und Telefonanschlüsse vorhanden
Besonderheiten: Flexible Nutzungsmöglichkeiten, Kombination aus Arbeiten und Wohnen, solide Mieterstruktur
Energieausweis für Mischgebäude.
Als Basis für die Energieangaben wurde vom Eigentümer und dessen Architekten mitgeteilt, dass die Ausbaustufen der Büroanteile "wohnbereichsähnlich" ist und somit der wohnbereichsähnliche Anteil mehr als 50% beträgt. Entsprechend ergeben sich die Angaben zur Energie wie folgt:
Energieausweistyp: Bedarfsausweis, Heizungsart: Gas-Heizung, Energieträger: Flüssiggas Strom-Mix, Energieeffizienzklasse: B, Endenergiebedarf: 73,04 kWh/(m²*a), Baujahr: 2015
Bemerkungen:
Nachfolgend erhalten Sie einen Überblick über ausgewählte Ausstattungsmerkmale dieser Immobilie:
Grundstück
- Gesamtfläche von ca. 850 m²
- Teilweise gepflastert / geschottert
- rückseits eingezäunt
- Zufahrt über eine Längsseite Straßenseitig möglich
Gewerbemischeinheit (ca. 15m x 15m)
- ca. 327 m² Fläche, Garagenrolltore
- DG Wohnung mit ca. 80 m²
- Starkstrom, diverse Sicherheitskameras
Gebäudezustand: Gepflegt, laufend instandgehalten
Bauweise: Massivbau mit solider Gewerbeausstattung
Bodenbeläge: Fliesen, Industrieboden, Industrieteppich (Büro) und Laminat (Wohnung)
Heizung: Zentrale Gasheizung mit Heizkörpern
Sanitär: WC und Dusche in der Gewerbeeinheit, separates Bad in der Wohnung
Fenster: Kunststofffenster mit Isolierverglasung, teils Dachfenster
Zugang: Separate Eingänge für alle Einheiten, Außentreppe zur Wohnung
Außenflächen: Stellplätze direkt am Gebäude, teils befestigte Hoffläche
Technik: Stromanschlüsse in allen Einheiten, Netzwerk- und Telefonanschlüsse vorhanden
Besonderheiten: Flexible Nutzungsmöglichkeiten, Kombination aus Arbeiten und Wohnen, solide Mieterstruktur
Energieausweis für Mischgebäude.
Als Basis für die Energieangaben wurde vom Eigentümer und dessen Architekten mitgeteilt, dass die Ausbaustufen der Büroanteile "wohnbereichsähnlich" ist und somit der wohnbereichsähnliche Anteil mehr als 50% beträgt. Entsprechend ergeben sich die Angaben zur Energie wie folgt:
Energieausweistyp: Bedarfsausweis, Heizungsart: Gas-Heizung, Energieträger: Flüssiggas Strom-Mix, Energieeffizienzklasse: B, Endenergiebedarf: 73,04 kWh/(m²*a), Baujahr: 2015
Lage des Objektes
Die Immobilie befindet sich im Gewerbeweg 4 in Großmehring, im Landkreis Eichstätt – unmittelbar östlich von Ingolstadt. Durch die Nähe zu Ingolstadt (ca. 8 km), München (ca. 80 km) und Nürnberg (ca. 90 km) liegt der Standort zentral im wirtschaftsstarken Dreieck Bayerns. Über die Bundesstraße B16 sowie die nahegelegene A9 bestehen hervorragende Verkehrsanbindungen in alle Richtungen.
Der Standort profitiert von der Nähe zu namhaften Arbeitgebern, insbesondere aus der Automobil- und Zuliefererindustrie. Großmehring selbst bietet ein gewachsenes Umfeld mit guten Versorgungs- und Dienstleistungsstrukturen. Die Mikrolage im Gewerbegebiet ist geprägt von gepflegten Nachbarbetrieben, großzügigen Grundstücken und guter Erreichbarkeit – ideal für Gewerbe, Handwerk und Dienstleistung
Infrastruktur (im Umkreis von 5 km):
Apotheke, Lebensmittel-Discount, Kindergarten, Grundschule, Öffentliche Verkehrsmittel
Der Standort profitiert von der Nähe zu namhaften Arbeitgebern, insbesondere aus der Automobil- und Zuliefererindustrie. Großmehring selbst bietet ein gewachsenes Umfeld mit guten Versorgungs- und Dienstleistungsstrukturen. Die Mikrolage im Gewerbegebiet ist geprägt von gepflegten Nachbarbetrieben, großzügigen Grundstücken und guter Erreichbarkeit – ideal für Gewerbe, Handwerk und Dienstleistung
Infrastruktur (im Umkreis von 5 km):
Apotheke, Lebensmittel-Discount, Kindergarten, Grundschule, Öffentliche Verkehrsmittel
Sonstige Informationen
Heizungsart: Zentralheizung
Energieträger: Gas
Die Immobilie ist vermietet (ungekündigte Mietverträge) und steht ab sofort zum Verkauf. Interessenten können in Absprache mit den Maklern von 1516 Immobilien flexible Besichtigungstermine vereinbaren.
Wir möchten Sie darauf hinweisen, dass Besichtigungen des Objekts nur nach vorheriger Terminvereinbarung und in Begleitung eines unserer Immobilienmakler durchgeführt werden können. Es ist nicht gestattet, das Objekt eigenständig oder ohne Erlaubnis zu betreten oder zu besichtigen.
Weiterhin weißen wir darauf hin, dass im Verkaufsprozess lediglich die schriftlich getätigten Informationen Gültigkeit haben und mündlich erteilte Auskünfte keine Rechtsansprüche begründen.
Wir freuen uns darauf, Ihnen das Objekt persönlich vorzustellen zu dürfen!
Wir freuen uns auf Ihre Anfrage!
Ihr Team von 1516 Immobilien.
ohne-makler (OM) ist weder Anbieter noch Vermittler der Immobilie. OM betreibt eine Plattform für Immobilieneigentümer, die unter anderem die gleichzeitige Veröffentlichung einzelner Inserate auf mehreren Immobilienportalen ermöglicht. Die Inhalte dieser Inserate werden ausschließlich von Dritten verantwortet. Für die Richtigkeit, Vollständigkeit oder Rechtmäßigkeit der Angaben übernimmt OM keine Haftung. Hinweise auf mögliche Rechtsverstöße können jederzeit gemeldet werden und werden nach Prüfung umgehend bearbeitet.
Ansicht Südost
Ansicht Ost
Auto-Service mit Büro
Auto-Service Hallentor
Wohnung OG Bad
Wohnung OG Dusche
Wohnung OG Eingang
Wohnung OG Essen
Wohnung OG Kind
Wohnung OG Küche
Wohnung OG Schlafen
Ansicht Südwest
Wohnung OG Wohnen 1
Wohnung OG Wohnen 2
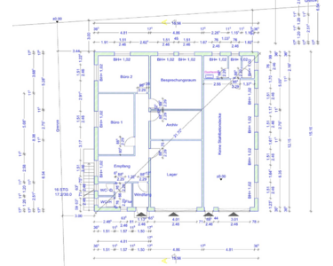
Grundriss EG
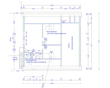
Grundriss OG
Gewerbegebiet