Exposé
Objektart:
Zinshaus Renditeobjekt
» Kauf
Standort: Zinshaus Renditeobjekt »
Deutschland » Bayern » Freising (Kreis) » Neufahrn
AIGNER - Neufahrn bei Freising: Globalverkauf - Vollmöblierte Studentenapartments am S-Bahnhof
Ansicht
Das Wichtigste auf einen Blick:
| Objektnummer: | 9340853 |
Preise
| Kaufpreis | 0 € |
| Nebenkosten | keine Angabe |
Flächen
| Grundstücksfläche | 1.050 m² |
| Maklerprovision | 3,57% |
Objekt Adresse
85375 Neufahrn
Sonstige Angaben
| Baujahr | 2025 |
| Verfügbar ab | keine Angabe |
| Heizungsart | Zentralheizung |
| Energieträger/Befeuerung | Elektro |
Objektbeschreibung
Die angebotene Liegenschaft besteht aus zwei Gebäudekörpern aus unterschiedlichen Baujahren.
Das kernsanierte Bestandsgebäude Bahnhofstraße 58 ist aus dem Baujahr 1875, nicht denkmalgeschützt und vereint 10 vollmöbllierte Apartments auf sich. Im Erdgeschoss und 1.OG sind jeweils vier und im Dachgeschoss zwei vollmöbllierte Apartments untergebracht.
Jede Einheit verfügt über Ihre eigene Küche / Kitchenette und Sanitärbereich. Die zentrale Befeuerung erfolgt über eine Ölheizung aus dem Jahr 2016/2017. Zudem finden sich neben dem Objekt bis zu 4 oberirdische Stellplätze.
Saniert wurden in den Jahren 2016/2017 folgende Bereiche:
- Dach
- Fenster
- Fassade
- Einheiten an sich
- Verkehrsflächen
- Alle Heizungs- und Wasserleitungen
- Alle Elektrostränge
- Parkplätze im Bestand: 4 Stück
Die Nutzung des Gebäudes ist als Wohnhaus in Form eines Mehrfamilienhauses deklariert und ist auf keinen Personenkreis beschränkt.
Der Neubau in der Bahnhofstraße 60, direkt angrenzend an das Bestandsobjekt, weist insgesamt 16 Studentenapartments, 6 oberirdische Stellplätze, 21 teils überdachte Fahrradstellplätze, ein Häuschen mit Geräteschuppen und Mülllager auf. Zur Überbrückung von Höhendifferenzen ins Gartengeschoss, in Form von Sitzstufen für die Bewohner, wurde ein offener Außenlift angebracht.
Folgende Zimmertypen herrschen im Neubau vor: 14 Ein-Zimmer-Apartments, eine Zwei-Zimmer-Wohnung und eine Drei-Zimmer-Wohnung. Diese verteilen sich auf Tiefparterre / Gartengeschoss, Erdgeschoss, Obergeschoss und Dachgeschoss. Die Einheiten sind sehr modern und praktisch eingerichtet. Ausstattungsmerkmale wie Fußbodenheizung, Lüftung, bodentiefe Duschen, hochwertige Sanitäreinrichtungen, Handtuchwärmer, elektrische Außenbeschattungen gehören zur Standardausstattung. Durch den Einbau von individuellen Anschlüssen und Verbrauchszählern ist jede Einheit einzeln abrechenbar, wie bei einer Eigentumswohnung.
Die Wärmeerzeugung zur Deckung der Heizleist erfolgt im Neubau über eine Luft-Wärmepumpe.
Zur Steigerung der Aufenthaltsqualität in den Wohnräumen wurden Lüftungen eingebaut, die sich automatisch regulieren.
Zu Gunsten des Nachbarn wurde ein grundbuchlich gesichertes Unterbaurecht für die erstellte Tiefgarage eingetragen. Dabei hat der Nachbar Instandhaltungs- und Sanierungsmaßnahmen für die Teile, die auf das angebotene Grundstück entfallen, auch zu tragen.
Das kernsanierte Bestandsgebäude Bahnhofstraße 58 ist aus dem Baujahr 1875, nicht denkmalgeschützt und vereint 10 vollmöbllierte Apartments auf sich. Im Erdgeschoss und 1.OG sind jeweils vier und im Dachgeschoss zwei vollmöbllierte Apartments untergebracht.
Jede Einheit verfügt über Ihre eigene Küche / Kitchenette und Sanitärbereich. Die zentrale Befeuerung erfolgt über eine Ölheizung aus dem Jahr 2016/2017. Zudem finden sich neben dem Objekt bis zu 4 oberirdische Stellplätze.
Saniert wurden in den Jahren 2016/2017 folgende Bereiche:
- Dach
- Fenster
- Fassade
- Einheiten an sich
- Verkehrsflächen
- Alle Heizungs- und Wasserleitungen
- Alle Elektrostränge
- Parkplätze im Bestand: 4 Stück
Die Nutzung des Gebäudes ist als Wohnhaus in Form eines Mehrfamilienhauses deklariert und ist auf keinen Personenkreis beschränkt.
Der Neubau in der Bahnhofstraße 60, direkt angrenzend an das Bestandsobjekt, weist insgesamt 16 Studentenapartments, 6 oberirdische Stellplätze, 21 teils überdachte Fahrradstellplätze, ein Häuschen mit Geräteschuppen und Mülllager auf. Zur Überbrückung von Höhendifferenzen ins Gartengeschoss, in Form von Sitzstufen für die Bewohner, wurde ein offener Außenlift angebracht.
Folgende Zimmertypen herrschen im Neubau vor: 14 Ein-Zimmer-Apartments, eine Zwei-Zimmer-Wohnung und eine Drei-Zimmer-Wohnung. Diese verteilen sich auf Tiefparterre / Gartengeschoss, Erdgeschoss, Obergeschoss und Dachgeschoss. Die Einheiten sind sehr modern und praktisch eingerichtet. Ausstattungsmerkmale wie Fußbodenheizung, Lüftung, bodentiefe Duschen, hochwertige Sanitäreinrichtungen, Handtuchwärmer, elektrische Außenbeschattungen gehören zur Standardausstattung. Durch den Einbau von individuellen Anschlüssen und Verbrauchszählern ist jede Einheit einzeln abrechenbar, wie bei einer Eigentumswohnung.
Die Wärmeerzeugung zur Deckung der Heizleist erfolgt im Neubau über eine Luft-Wärmepumpe.
Zur Steigerung der Aufenthaltsqualität in den Wohnräumen wurden Lüftungen eingebaut, die sich automatisch regulieren.
Zu Gunsten des Nachbarn wurde ein grundbuchlich gesichertes Unterbaurecht für die erstellte Tiefgarage eingetragen. Dabei hat der Nachbar Instandhaltungs- und Sanierungsmaßnahmen für die Teile, die auf das angebotene Grundstück entfallen, auch zu tragen.
Ausstattung
Neubau:
- Fußbodenheizung
- Vollmöblierung
- Bodentiefe Duschen
- Handtuchwärmer
- elektrische Außenbeschattung
- Lüftung
Bestand:
- Vollmöblierung
- Kernsanierung 2016/2017
- Charmante Einrichtung
- durchdachte Grundrisse
- Fußbodenheizung
- Vollmöblierung
- Bodentiefe Duschen
- Handtuchwärmer
- elektrische Außenbeschattung
- Lüftung
Bestand:
- Vollmöblierung
- Kernsanierung 2016/2017
- Charmante Einrichtung
- durchdachte Grundrisse
Lage des Objektes
Die Gemeinde Neufahrn bei Freising befindet sich ca. 25 km nördlich von München und ist mit rd. 21.000 Einwohnern recht beschaulich. ABER: die räumliche Nähe zum Flughafen und dem Hochschul- und Forschungszentrum Garching mit rd. 20.300 Studierenden und 7.500 Angestellten in den verschiedenen Abteilungen der Technischen Universität München zählt dieser Standort zu den größten Wirtschaftszentren in Deutschland. Neben dem S-Bahnanschluss der Gemeinde ist die Lage am Autobahnkreuz an den Autobahnen A92 und A9 von besonderer Bedeutung für den Individualverkehr.
Die angebotene Liegenschaft zeichnet sich durch ihre exzellente Lage und hervorragende Zentralität innerhalb Neufahrns aus, die von autolosen Studenten und Angestellten des Flughafens oder der Technischen Universität München sehr geschätzt wird. Die S-Bahnhaltestelle Neufahrn bei Freising ist innerhalb von wenigen Schritten erreichbar, da dieser an das angebotene Grundstück genau angrenzt. Die S-Bahnlinie S1 verkehrt täglich vielmals zwischen dem Leuchtenbergring und dem Münchner Flughafen Terminal, welcher nur 2 Stationen entfernt ist. An- und abfahrende Züge sind, aufgrund geringer Geschwindigkeiten und diverser Schallschutzmaßnahmen, kaum wahrnehmbar. Entlang der Bahntrasse sind sonst auch viele Wohnhäuser darunter auch ein Boardinghaus angesiedelt. Die Bushaltestelle mit den Buslinien 690, 691, 692, und 694 befindet sich ebenfalls wenige Schritte von der Liegenschaft entfernt und verbindet Neufahrn unter anderem mit Garching und seiner U-Bahn-Haltestelle (U6), Eching, Freising und Hallbergmoos.
Im unmittelbaren Umfeld entlang der Bahnhofstraße befinden sich viele Geschäfte des täglichen Bedarfs: Apotheken, diverse Gastronomiekonzepte, ein türkischer Supermarkt, viele Bekleidungsgeschäfte etc. Die Bewohner haben dadurch die Möglichkeit Dinge des täglichen Lebens zu Fuß zu besorgen.
Die angebotene Liegenschaft zeichnet sich durch ihre exzellente Lage und hervorragende Zentralität innerhalb Neufahrns aus, die von autolosen Studenten und Angestellten des Flughafens oder der Technischen Universität München sehr geschätzt wird. Die S-Bahnhaltestelle Neufahrn bei Freising ist innerhalb von wenigen Schritten erreichbar, da dieser an das angebotene Grundstück genau angrenzt. Die S-Bahnlinie S1 verkehrt täglich vielmals zwischen dem Leuchtenbergring und dem Münchner Flughafen Terminal, welcher nur 2 Stationen entfernt ist. An- und abfahrende Züge sind, aufgrund geringer Geschwindigkeiten und diverser Schallschutzmaßnahmen, kaum wahrnehmbar. Entlang der Bahntrasse sind sonst auch viele Wohnhäuser darunter auch ein Boardinghaus angesiedelt. Die Bushaltestelle mit den Buslinien 690, 691, 692, und 694 befindet sich ebenfalls wenige Schritte von der Liegenschaft entfernt und verbindet Neufahrn unter anderem mit Garching und seiner U-Bahn-Haltestelle (U6), Eching, Freising und Hallbergmoos.
Im unmittelbaren Umfeld entlang der Bahnhofstraße befinden sich viele Geschäfte des täglichen Bedarfs: Apotheken, diverse Gastronomiekonzepte, ein türkischer Supermarkt, viele Bekleidungsgeschäfte etc. Die Bewohner haben dadurch die Möglichkeit Dinge des täglichen Lebens zu Fuß zu besorgen.
Sonstige Informationen
Baujahr: 2025
Befeuerung/Energieträger: Strom
Heizungsart: Wärmepumpe
Energieausweistyp: Bedarfsausweis
Energiekennwert: 22,6 kWh/(m²*a)
Energieeffizienzklasse: A+
Ansicht Neubau
Ansicht Neubau
Ansicht Gesamt
Ansicht Bestand
Ansicht Bestand
Anlage
Anlage
Anlage
Treppenhaus Neubau
Technik
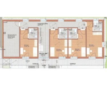
Grundriss Gartengeschoss
Grundriss EG
Grundriss 1OG
Grundriss DG