Exposé
Objektart:
Grundstück
» Wohnen
» Kauf
Standort: Grundstück »
Deutschland » Baden-Württemberg » Rems-Murr-Kreis (Kreis) » Schorndorf
Wachstumsgesetz...Neubau eines 7-Familienhauses mit 8 % Rendite
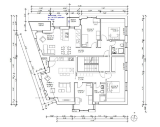
Grundriss OG
Das Wichtigste auf einen Blick:
| Objektnummer: | 9340887 |
Preise
| Kaufpreis | 270.000 € |
| Nebenkosten | keine Angabe |
Flächen
| Wohnfläche | 474,01 m² |
| Grundstücksfläche | 531,01 m² |
| Maklerprovision | 4,76% vom Kaufpreis (inkl. MwSt.) |
Objekt Adresse
73614 Schorndorf
- Baden-Württemberg
Sonstige Angaben
| Zimmer | 20 |
| Verfügbar ab | ab Sofort |
| Bad | 7 |
| Bad | 7 |
| Balkone | 5 |
| Terrassen | 3 |
| Haustiere | Ja |
Objektbeschreibung
- - 7 Familienhaus mit ca. 474 qm Wohnflläche (genehmigt)
- - Nutzfläche mit ca. 86,27 qm
- - 7 Stellplätze
- - ca. 531 qm großes, ebenes Grundstück mit Abrisshaus
- - Neubauen und Vermieten und höherer Abschreibung von 5% erhalten
- - Auf dem Grundstück steht aktuell ein Abrisshaus
Aufstellung genehmigter Wohnungen mit Wohnfläche:
- Whg. Nr. 1 - EG (3 Zimmer / 77,61 qm)
- Whg. Nr. 2 - EG (3 Zimmer / 79,05 qm)
- Whg. Nr. 3 - 1.OG (3 Zimmer / 77,61 qm)
- Whg. Nr. 4 - 1.OG (3 Zimmer / 79,05 qm)
- Whg. Nr. 5 - 2.OG (3 Zimmer / 77,61 qm)
- Whg. Nr. 6 - 2.OG (3 Zimmer / 79,05 qm)
- Whg. Nr. 7 - DG (3 Zimmer / 79,05 qm)
Ausstattung
Lage des Objektes
- zentrale Lage von Schorndorf-Miedelsbach
- gute Verkehrsanbindung
- gute Infrastruktur
- Dinge des täglichen Bedarfs bequem erreichbar
Sonstige Informationen
Energieausweis in Erstellung
. Info zum Energieausweis: nicht erforderlich (z. Bsp. Grundstück, Denkmal,…)
Hausschnitt 2
Hausschnitt 1
Hausschnitt 3
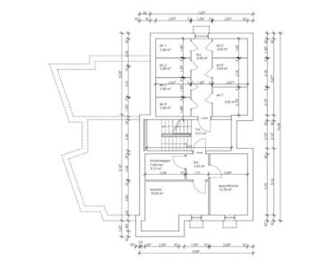
Grundriss UG
Grundriss EG
Grundriss DG
Grundriss DG2