Exposé
Objektart:
Hallen / Lager / Produktion
» Lagerflaechen
» Miete
Standort: Hallen / Lager / Produktion »
Deutschland » Sachsen » Leipzig, Stadt (Kreis) » Leipzig
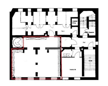
Lagerflächen mit Fußbodenheizung im Souterrain
Außen
Das Wichtigste auf einen Blick:
| Objektnummer: | 9340682 |
Preise
| Miete für das Objekt | Auf Anfrage |
| Nebenkosten | keine Angabe |
Flächen
| Gesamtfläche | 83 m² |
| Fläche teilbar ab | 83 m² |
| Maklerprovision | 1,0 Nettomonatsmiete |
Objekt Adresse
Riemannstraße 54
04107 Leipzig
Sonstige Angaben
| Verfügbar ab | keine Angabe |
Objektbeschreibung
Hinter der klassisch gestalteten Fassade gelangen Sie über ein repräsentatives Treppenhaus in die Souterrainfläche. Diese trockene Kellereinheit verfügt über Fenster auf Grasnarbenhöhe und Fußbodenheizung und kann als Lager- und Archivfläche genutzt werden. Vor dem Objekt befinden sich Kurzzeitparkplätze so wie weitere Parkmöglichkeiten in der unmittelbaren Umgebung.
Lage des Objektes
Das kernsanierte Gründerzeithaus ist im Leipziger Musikviertel gelegen und bietet in zentraler, verkehrsgünstiger Lage von Leipzig einen idealen Standort für kleinere und mittlere Unternehmen. In direkter Nachbarschaft des Bundesverfassungsgerichts und südlich des Innenstadtrings gelegen, sind innerhalb weniger Minuten auch die Leipziger Innenstadt, der Hauptbahnhof, die B2 als Zubringer zum Autobahnanschluss A 14 als auch die Öffentlichen Verkehrsmittel erreicht.
Sonstige Informationen
Der Mietpreis richtet sich nach Ausstattung und Vertragslaufzeit und liegt bei ca. 6,50 - 7,50 EUR/m².
Bitte sprechen Sie uns an, gern stellen wir Ihnen eine Auswahl geeigneter Büroflächenangebote zusammen. Für Fragen, ein persönliches Gespräch oder auch eine persönliche Terminvereinbarung stehen wir Ihnen gern telefonisch unter 0341 | 5643000 zur Verfügung.
Hauseingang
Souterrain
Souterrain
Grundriss Souterrain