Exposé
Objektart:
Wohnung
» Etage
» Miete
Standort: Wohnung »
Deutschland » Berlin » Berlin, Stadt (Kreis) » Berlin
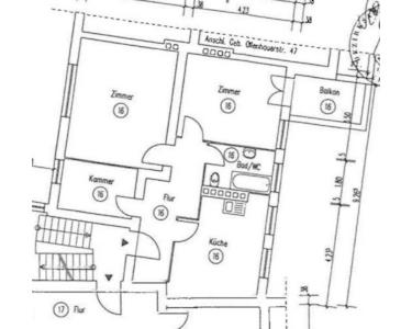
Moderne 3-Zimmer-Wohnung mit Balkon und Einbauküche in Berlin-Reinickendorf
Das Wichtigste auf einen Blick:
| Objektnummer: | 9339948 |
Preise
| Kaltmiete (netto) | 1.900 € |
| Nebenkosten | keine Angabe |
Flächen
| Wohnfläche | 79 m² |
Objekt Adresse
Ollenhauerstraße 46
13403 Berlin
- Berlin
Sonstige Angaben
| Baujahr | 1928 |
| Zimmer | 3 |
| Verfügbar ab | 01.01.2026 |
| Bad | 1 |
| Inserat befindet sich im Stockwerk | 1 |
| Küche | Einbauküche |
| Bad | 1 |
| Boden | Parkett |
| Balkone | 1 |
| Terrassen | 0 |
| Keller | Ja |
| Energieausweistyp | Verbrauch |
| Energieeffizienzklasse | C |
| Energieverbrauchkennwert | 98 kWh/(m²*a) |
| Heizungsart | Etagenheizung |
| Energieträger/Befeuerung | Gas |
Objektbeschreibung
Willkommen in Ihrem neuen Zuhause in der Ollenhauer Straße 47, 13403 Berlin!
Diese großzügige und helle 3-Zimmer-Wohnung mit ca. 79 m² Wohnfläche befindet sich in einem gepflegten Mehrfamilienhaus im beliebten Berliner Stadtteil Reinickendorf.
Sie überzeugt durch eine optimale Raumaufteilung, moderne Ausstattung und eine ruhige, dennoch zentrale Lage.
Der sonnige Balkon lädt zum Entspannen ein und bietet einen angenehmen Blick in den grünen Innenhof. Dank der großen Fensterflächen sind alle Räume lichtdurchflutet und freundlich gestaltet. Die Wohnung eignet sich ideal für Paare, kleine Familien oder Berufstätige, die Wert auf komfortables Wohnen mit guter Anbindung legen.
Diese großzügige und helle 3-Zimmer-Wohnung mit ca. 79 m² Wohnfläche befindet sich in einem gepflegten Mehrfamilienhaus im beliebten Berliner Stadtteil Reinickendorf.
Sie überzeugt durch eine optimale Raumaufteilung, moderne Ausstattung und eine ruhige, dennoch zentrale Lage.
Der sonnige Balkon lädt zum Entspannen ein und bietet einen angenehmen Blick in den grünen Innenhof. Dank der großen Fensterflächen sind alle Räume lichtdurchflutet und freundlich gestaltet. Die Wohnung eignet sich ideal für Paare, kleine Familien oder Berufstätige, die Wert auf komfortables Wohnen mit guter Anbindung legen.
Ausstattung
Balkon, Keller, Einbauküche, Parkett
Bemerkungen:
Ausstattung
ca. 79 m² Wohnfläche
3 Zimmer mit idealem Schnitt
Einbauküche mit modernen Geräten
Balkon mit Blick ins Grüne
Tageslichtbad mit Badewanne
Kellerabteil zur zusätzlichen Nutzung
gepflegtes Treppenhaus und ruhiges Wohnumfeld
Die Wohnung befindet sich in einem sehr gepflegten Zustand. Alle Räume sind mit hellen Bodenbelägen ausgestattet. Die Küche bietet ausreichend Platz und ist mit hochwertigen Einbauten versehen.
Bemerkungen:
Ausstattung
ca. 79 m² Wohnfläche
3 Zimmer mit idealem Schnitt
Einbauküche mit modernen Geräten
Balkon mit Blick ins Grüne
Tageslichtbad mit Badewanne
Kellerabteil zur zusätzlichen Nutzung
gepflegtes Treppenhaus und ruhiges Wohnumfeld
Die Wohnung befindet sich in einem sehr gepflegten Zustand. Alle Räume sind mit hellen Bodenbelägen ausgestattet. Die Küche bietet ausreichend Platz und ist mit hochwertigen Einbauten versehen.
Lage des Objektes
Die Ollenhauer Straße liegt im gefragten Stadtteil Reinickendorf, unweit des Kurt-Schumacher-Platzes.
Einkaufsmöglichkeiten, Restaurants, Schulen und Ärzte sind bequem zu Fuß erreichbar. Die U-Bahn-Linie U6 sowie mehrere Buslinien sorgen für eine ausgezeichnete Verkehrsanbindung in die Berliner Innenstadt.
Zudem sind die grünen Erholungsgebiete wie der Schäfersee oder der Volkspark Rehberge nur wenige Minuten entfernt – perfekt für Freizeit und Erholung.
Infrastruktur (im Umkreis von 5 km):
Apotheke, Lebensmittel-Discount, Allgemeinmediziner, Kindergarten, Grundschule, Hauptschule, Realschule, Gymnasium, Gesamtschule, Öffentliche Verkehrsmittel
Einkaufsmöglichkeiten, Restaurants, Schulen und Ärzte sind bequem zu Fuß erreichbar. Die U-Bahn-Linie U6 sowie mehrere Buslinien sorgen für eine ausgezeichnete Verkehrsanbindung in die Berliner Innenstadt.
Zudem sind die grünen Erholungsgebiete wie der Schäfersee oder der Volkspark Rehberge nur wenige Minuten entfernt – perfekt für Freizeit und Erholung.
Infrastruktur (im Umkreis von 5 km):
Apotheke, Lebensmittel-Discount, Allgemeinmediziner, Kindergarten, Grundschule, Hauptschule, Realschule, Gymnasium, Gesamtschule, Öffentliche Verkehrsmittel
Sonstige Informationen
Heizungsart: Etagenheizung
Energieträger: Gas
Makleranfragen nicht erwünscht. Nach § 7 UWG sind unaufgeforderte Kontaktaufnahmen durch Makler ohne ausdrückliche Einwilligung des Empfängers verboten!
ohne-makler (OM) ist weder Anbieter noch Vermittler der Immobilie. OM betreibt eine Plattform für Immobilieneigentümer, die unter anderem die gleichzeitige Veröffentlichung einzelner Inserate auf mehreren Immobilienportalen ermöglicht. Die Inhalte dieser Inserate werden ausschließlich von Dritten verantwortet. Für die Richtigkeit, Vollständigkeit oder Rechtmäßigkeit der Angaben übernimmt OM keine Haftung. Hinweise auf mögliche Rechtsverstöße können jederzeit gemeldet werden und werden nach Prüfung umgehend bearbeitet.