Exposé
Objektart:
Haus
» Doppelhaushaelfte
» Kauf
Standort: Haus »
Deutschland » Schleswig-Holstein » Stormarn (Kreis) » Steinburg
Doppelhaushälfte in Mollhagen am Feldrand, großes Grundstück mit Bebauungsoption - provisionsfrei
Küche
Das Wichtigste auf einen Blick:
| Objektnummer: | 9335969 |
Preise
| Kaufpreis | 595.000 € |
| Nebenkosten | keine Angabe |
Flächen
| Wohnfläche | 126,83 m² |
| Grundstücksfläche | 1.678 m² |
| Maklerprovision | keine Provision, courtagefrei |
Objekt Adresse
22964 Steinburg
- Schleswig-Holstein
Sonstige Angaben
| Baujahr | 1957 |
| Zimmer | 4 |
| Verfügbar ab | 01.01.2026 |
| Bad | 2 |
| Garage/Stellplätze | 1 |
| Anzahl der Etagen im Haus | 2 |
| Küche | Einbauküche |
| Bad | 2 |
| Bad | Wanne |
| Boden | Fliesen, Parkett, Kunststoff |
| Balkone | 0 |
| Garten | Ja |
| Terrassen | 1 |
| Garage/Stellplätze | 1 |
| Keller | Ja |
| Energieausweistyp | Bedarfsausweis |
| Endenergiebedarf | 118 kWh/(m²*a) |
| Heizungsart | Zentralheizung |
| Energieträger/Befeuerung | Gas |
Objektbeschreibung
Urlaub zu Hause erleben - Dorfidylle direkt vor den Toren Hamburgs und Lübeck
Diese schöne Doppelhaushälfte in Feldrandlage bietet ein Zuhause zum Wohlfühlen. Das Haus wurde 2010 saniert (u.a. neues Dach, Fassade gedämmt). Zwischen 2019 und 2020 wurde es teilsaniert und umfassend renoviert, mit viel Liebe zum Detail und hohem handwerklichen Anspruch.
Das großzügige Grundstück von 1.678 m² wurde von einem erfahrenen Meister im Garten- und Landschaftsbau in eine Gartenidylle verwandelt. Perfekt, um den Alltag hinter sich zu lassen und das Leben im Grünen zu genießen.
Das Grundstück bietet zudem Potenzial für eine Zweitreihenbebauung. Damit eröffnet sich die Möglichkeit, zusätzlichen Wohnraum zu schaffen, einen Teil des Grundstücks zu veräußern oder perspektivisch eine separate Wohneinheit als Kapitalanlage zu realisieren.
Im Hausinneren erwartet Sie eine großzügige Wohnküche aus dem Jahr 2020. Unter anderem ein Bora-Kochfeld mit integriertem Dunstabzug, ein Neff-Backofen mit versenkbarer Tür sowie zwei Apothekerschränke für großzügigen Stauraum machen diese Küche zu einem Ort, an dem das Kochen Freude macht. Die Kochinsel mit Tresen bietet viel Platz, damit Sie mit der gesamten Familie oder Freunden gemeinsam kochen und genießen können.
Das Badezimmer im Erdgeschoss verfügt über eine Fußbodenheizung und eine ebenerdige Dusche, die einen bequemen Einstieg ohne Stolperkante ermöglicht. Ganz im Sinne von „Urlaub zu Hause erleben“ lädt der Whirlpool zu erholsamen Wellnessmomenten im Alltag ein. Und wenn es draußen kühler wird, sorgt der gemütliche Kamin im Wohnzimmer für noch mehr Wärme und Geborgenheit im eigenen Zuhause.
Im Obergeschoss befindet sich ein klassisches Vollbad mit Badewanne. Große Fensterfronten durchfluten die Räume mit Tageslicht und öffnen den Blick direkt in den Garten. In der oberen Etage sorgt Eichenholzparkett für natürliche Wärme, während im Erdgeschoss ein strapazierfähiger heller Vinylboden gewählt wurde.
Im Außenbereich bietet die außergewöhnlich große Garage reichlich Platz selbst für besonders große Fahrzeuge. Die Garage verfügt über einen Keller für zusätzlichen Stauraum oder auch zur Nutzung als Fitness- oder Partykeller. Direkt angrenzend an die große Garage befindet sich eine weitere kleine Garage, welche der sehr freundlichen Nachbarin gehört. Für die kleine Garage besteht ein Vorkaufsrecht für den Eigentümer der hier angebotenen Doppelhaushälfte, eine wertvolle Option mit Potenzial für künftige Erweiterungen.
Zusätzliche Werkstattbereiche und ein Schuppen bieten Ihnen viel Platz für alles, was das Herz von Gartenliebhabern und Hobby-Handwerkern höherschlagen lässt.
Hinter dem Haus öffnet sich Ihnen der Blick ins Grüne. Zwei Teiche, eine Holzbrücke und sonnige wie auch schattige Rückzugsorte machen den Garten zu einer Oase. Für Genießer und Selbstversorger gibt es zudem einen köstlichen Obstbaumbestand mit Pflaumen-, Mirabellen-, Apfel-, Birnen- und Kirschbäumen.
Auf der Terrasse genießen Sie von morgens bis abends Sonne. Sie schenkt Ihnen Platz für Feiern oder Grillabende.
Das Haus eignet sich gleichermaßen für Familien, Pendler, Paare oder Ruhesuchende, die Wert auf ein naturnahes, aber dennoch gut angebundenes Zuhause legen.
Energieeffizienzklasse: D (118,3 kWh)
Energieausweis gültig bis 11.06.2029
Kontaktieren Sie uns gerne für einen Besichtigungstermin. Wir freuen uns, Ihnen das Haus persönlich zu zeigen.
Diese schöne Doppelhaushälfte in Feldrandlage bietet ein Zuhause zum Wohlfühlen. Das Haus wurde 2010 saniert (u.a. neues Dach, Fassade gedämmt). Zwischen 2019 und 2020 wurde es teilsaniert und umfassend renoviert, mit viel Liebe zum Detail und hohem handwerklichen Anspruch.
Das großzügige Grundstück von 1.678 m² wurde von einem erfahrenen Meister im Garten- und Landschaftsbau in eine Gartenidylle verwandelt. Perfekt, um den Alltag hinter sich zu lassen und das Leben im Grünen zu genießen.
Das Grundstück bietet zudem Potenzial für eine Zweitreihenbebauung. Damit eröffnet sich die Möglichkeit, zusätzlichen Wohnraum zu schaffen, einen Teil des Grundstücks zu veräußern oder perspektivisch eine separate Wohneinheit als Kapitalanlage zu realisieren.
Im Hausinneren erwartet Sie eine großzügige Wohnküche aus dem Jahr 2020. Unter anderem ein Bora-Kochfeld mit integriertem Dunstabzug, ein Neff-Backofen mit versenkbarer Tür sowie zwei Apothekerschränke für großzügigen Stauraum machen diese Küche zu einem Ort, an dem das Kochen Freude macht. Die Kochinsel mit Tresen bietet viel Platz, damit Sie mit der gesamten Familie oder Freunden gemeinsam kochen und genießen können.
Das Badezimmer im Erdgeschoss verfügt über eine Fußbodenheizung und eine ebenerdige Dusche, die einen bequemen Einstieg ohne Stolperkante ermöglicht. Ganz im Sinne von „Urlaub zu Hause erleben“ lädt der Whirlpool zu erholsamen Wellnessmomenten im Alltag ein. Und wenn es draußen kühler wird, sorgt der gemütliche Kamin im Wohnzimmer für noch mehr Wärme und Geborgenheit im eigenen Zuhause.
Im Obergeschoss befindet sich ein klassisches Vollbad mit Badewanne. Große Fensterfronten durchfluten die Räume mit Tageslicht und öffnen den Blick direkt in den Garten. In der oberen Etage sorgt Eichenholzparkett für natürliche Wärme, während im Erdgeschoss ein strapazierfähiger heller Vinylboden gewählt wurde.
Im Außenbereich bietet die außergewöhnlich große Garage reichlich Platz selbst für besonders große Fahrzeuge. Die Garage verfügt über einen Keller für zusätzlichen Stauraum oder auch zur Nutzung als Fitness- oder Partykeller. Direkt angrenzend an die große Garage befindet sich eine weitere kleine Garage, welche der sehr freundlichen Nachbarin gehört. Für die kleine Garage besteht ein Vorkaufsrecht für den Eigentümer der hier angebotenen Doppelhaushälfte, eine wertvolle Option mit Potenzial für künftige Erweiterungen.
Zusätzliche Werkstattbereiche und ein Schuppen bieten Ihnen viel Platz für alles, was das Herz von Gartenliebhabern und Hobby-Handwerkern höherschlagen lässt.
Hinter dem Haus öffnet sich Ihnen der Blick ins Grüne. Zwei Teiche, eine Holzbrücke und sonnige wie auch schattige Rückzugsorte machen den Garten zu einer Oase. Für Genießer und Selbstversorger gibt es zudem einen köstlichen Obstbaumbestand mit Pflaumen-, Mirabellen-, Apfel-, Birnen- und Kirschbäumen.
Auf der Terrasse genießen Sie von morgens bis abends Sonne. Sie schenkt Ihnen Platz für Feiern oder Grillabende.
Das Haus eignet sich gleichermaßen für Familien, Pendler, Paare oder Ruhesuchende, die Wert auf ein naturnahes, aber dennoch gut angebundenes Zuhause legen.
Energieeffizienzklasse: D (118,3 kWh)
Energieausweis gültig bis 11.06.2029
Kontaktieren Sie uns gerne für einen Besichtigungstermin. Wir freuen uns, Ihnen das Haus persönlich zu zeigen.
Ausstattung
Terrasse, Garten, Keller, Vollbad, Einbauküche, Gäste-WC, Kamin, Parkett, Fliesen
Bemerkungen:
Dachform: Satteldach
Fassade: Putzfassade
Bauweise: Massivbau, Stein
Sanierungen / Renovierungen:
Dach, 2010 erneuert
Fassade, 2010 gedämmt
Küche, Baujahr 2020
Badezimmer EG, 2020 gebaut
Stromkasten, 2020 erneuert
Wasserleitungen und Estrich EG, 2019 erneuert
Fußboden OG, 2019 erneuert und verstärkt
Deckenverkleidung EG, 2019
Vorratskammer EG, 2020 gebaut
Bemerkungen:
Dachform: Satteldach
Fassade: Putzfassade
Bauweise: Massivbau, Stein
Sanierungen / Renovierungen:
Dach, 2010 erneuert
Fassade, 2010 gedämmt
Küche, Baujahr 2020
Badezimmer EG, 2020 gebaut
Stromkasten, 2020 erneuert
Wasserleitungen und Estrich EG, 2019 erneuert
Fußboden OG, 2019 erneuert und verstärkt
Deckenverkleidung EG, 2019
Vorratskammer EG, 2020 gebaut
Lage des Objektes
Willkommen in Mollhagen, einem erholsamen Rückzugsort in Schleswig-Holstein mitten im Grünen und nur ca. 30 Autominuten von Hamburg und Lübeck sowie von der Ostsee entfernt. Mollhagen gehört zur Gemeinde Steinburg im Kreis Stormarn. Wenn Sie das Landleben lieben, aber die Nähe zu pulsierenden Städten nicht missen möchte, finden Sie hier das Beste aus beiden Welten.
Mollhagen bietet die ideale Infrastruktur für Familien: Eine Kita, ein Kindergarten und eine Grundschule sind vor Ort, ein neuer Edeka-Markt wird bis Ende 2026 fertiggestellt sein. Weiterführende Schulen sind über Schulbusse erreichbar. Für Freizeit und Erholung sorgen zahlreiche Seen und Wälder in Umgebung wie der Lütjensee, der Beimoorwald oder der Trittauer Wald. Sportbegeisterte finden im aktiven Verein TSV Mollhagen vielfältige Angebote für alle Altersgruppen.
Infrastruktur (im Umkreis von 5 km):
Allgemeinmediziner, Kindergarten, Grundschule, Öffentliche Verkehrsmittel
Mollhagen bietet die ideale Infrastruktur für Familien: Eine Kita, ein Kindergarten und eine Grundschule sind vor Ort, ein neuer Edeka-Markt wird bis Ende 2026 fertiggestellt sein. Weiterführende Schulen sind über Schulbusse erreichbar. Für Freizeit und Erholung sorgen zahlreiche Seen und Wälder in Umgebung wie der Lütjensee, der Beimoorwald oder der Trittauer Wald. Sportbegeisterte finden im aktiven Verein TSV Mollhagen vielfältige Angebote für alle Altersgruppen.
Infrastruktur (im Umkreis von 5 km):
Allgemeinmediziner, Kindergarten, Grundschule, Öffentliche Verkehrsmittel
Sonstige Informationen
Heizungsart: Zentralheizung
Energieträger: Gas
Makleranfragen nicht erwünscht. Nach § 7 UWG sind unaufgeforderte Kontaktaufnahmen durch Makler ohne ausdrückliche Einwilligung des Empfängers verboten!
ohne-makler (OM) ist weder Anbieter noch Vermittler der Immobilie. OM betreibt eine Plattform für Immobilieneigentümer, die unter anderem die gleichzeitige Veröffentlichung einzelner Inserate auf mehreren Immobilienportalen ermöglicht. Die Inhalte dieser Inserate werden ausschließlich von Dritten verantwortet. Für die Richtigkeit, Vollständigkeit oder Rechtmäßigkeit der Angaben übernimmt OM keine Haftung. Hinweise auf mögliche Rechtsverstöße können jederzeit gemeldet werden und werden nach Prüfung umgehend bearbeitet.
Küche
Küche
Esszimmer und Flur
Badezimmer Erdgeschoss
Badezimmer Erdgeschoss
Badezimmer Erdgeschoss
Wohnzimmer
Wohnzimmer
Flur Obergeschoss
Schlafzimmer
Schlafzimmer
Schlafzimmer
Badezimmer Obergeschoss
Gästezimmer Obergeschoss
Gästezimmer
Arbeitszimmer
Arbeitszimmer
Eingangsbereich
Ansicht des Hauses
Garten
Garten
Garten
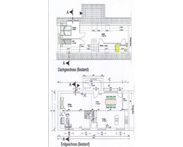
Grundrisse Erdgeschoss
Grundrisse Obergeschoss
Grundrisse vor Renovierung