Exposé
Objektart:
Büro / Praxen
» Buerozentrum
» Miete
Standort: Büro / Praxen »
Deutschland » Nordrhein-Westfalen » Borken (Kreis) » Gronau (Westfalen)
Ihr neuer Unternehmensstandort: hochwertige Büroflächen im Neubau mit Tiefgarage und Terrasse!
Titelbild
Das Wichtigste auf einen Blick:
| Objektnummer: | 9333867 |
Preise
| Kaltmiete | 9.000 € |
| Nebenkosten | keine Angabe |
Flächen
| Gesamtfläche | 2.613,17 m² |
| Bürofläche | 1.843,68 m² |
| Maklerprovision | 1,19 M-KM |
Objekt Adresse
Steinstraße 2
48599 Gronau (Westfalen)
- Nordrhein-Westfalen
Sonstige Angaben
| Baujahr | 2026 |
| Verfügbar ab | 2026 |
| Anzahl der Etagen im Haus | 5 |
| Küche | Einbauküche |
| Bad | Fenster, Bidet, Pissoir |
| Balkone | 1 |
| Terrassen | 1 |
| Fahrstuhl | Ja |
| Barrierefrei | |
| Wesentlicher Energieträger | Luftwärmepumpe |
| Energieträger/Befeuerung | Luft-Wärme-Pumpe |
Objektbeschreibung
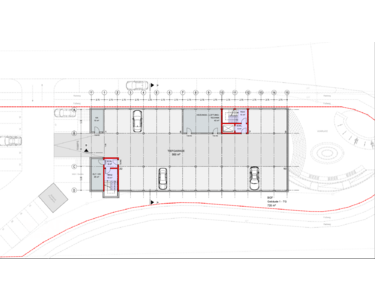
In der Steinstraße in Gronau entsteht bis 2026 ein modernes Bürogebäude, das mit klarer Architektur, großzügigen Flächen und zukunftsweisender Ausstattung überzeugt. Der Neubau umfasst vier Vollgeschosse sowie ein Staffelgeschoss und wird durch eine Tiefgarage und zusätzliche Außenstellplätze ergänzt. Auf einer Grundstücksfläche von rund 2.130 m² entsteht so ein repräsentativer Standort, der den Anforderungen moderner Arbeitswelten gerecht wird.
Die Büroetagen sind großzügig, lichtdurchflutet und so konzipiert, dass sie sowohl als Ganzes als auch in Teilflächen genutzt werden können. Eine flexible Unterteilung in etwa hälftige Einheiten ist in der Planung vorgesehen, sodass die Flächen optimal an die individuellen Bedürfnisse der Mieter angepasst werden können. Damit eignet sich das Gebäude gleichermaßen für größere Unternehmen, die eine gesamte oder mehrere Etage/n exklusiv nutzen möchten, wie auch für kleinere Firmen, die von der repräsentativen Adresse profitieren wollen.
Jede Etage bietet eine durchdachte Grundrissgestaltung mit variablen Raumkonzepten. Möglich sind sowohl klassische Zellenbüros, offene Großraumlösungen oder moderne Kombi-Büros. Ergänzt werden die Flächen durch Besprechungs- und Konferenzräume, Teeküchen, sanitäre Anlagen sowie Erschließungs- und Aufenthaltsbereiche. Die Grundrisse lassen eine effiziente Flächennutzung zu und schaffen gleichzeitig eine angenehme Arbeitsatmosphäre mit viel Tageslicht.
Im Erdgeschoss bietet ein großzügiges, repräsentatives Foyer den passenden Empfang für Mitarbeiter und Besucher. Über den zentralen Aufzug und das helle Treppenhaus sind alle Etagen barrierefrei erreichbar. Die oberen Geschosse profitieren zudem von attraktiven Terrassen- und Balkonflächen, die als Pausen- oder Besprechungszonen im Freien genutzt werden können.
Neben der modernen Arbeitsumgebung überzeugt das Gebäude auch durch seine hochwertige technische Ausstattung. Eine zukunftssichere Daten- und Stromversorgung, energieeffiziente Heiz- und Kühlsysteme sowie ein außenliegender Sonnenschutz schaffen beste Voraussetzungen für komfortables Arbeiten. Durch die extensiv begrünten Dachflächen und die Integration von Photovoltaik wird zudem ein Beitrag zu Nachhaltigkeit und Energieeffizienz geleistet.
Geeignet ist das Gebäude für eine Vielzahl von Gewerbearten, unter anderem:
- Büro- und Verwaltungsnutzung
- Kanzleien (Rechtsanwälte, Notare, Steuerberater)
- Agenturen (Werbung, Marketing, IT, Design, Architektur)
- Finanz- und Versicherungsdienstleister
- Unternehmens- und Personalberatungen
- Schulungs- und Weiterbildungszentren
- Co-Working und Shared-Office-Konzepte
Damit entsteht an der Steinstraße ein zukunftsweisender Bürostandort, der Funktionalität, Flexibilität und hochwertige Architektur miteinander verbindet – perfekt für Unternehmen, die eine moderne, repräsentative Adresse in Gronau suchen.
*M-KM - Monats-Kaltmiete/n
Die Büroetagen sind großzügig, lichtdurchflutet und so konzipiert, dass sie sowohl als Ganzes als auch in Teilflächen genutzt werden können. Eine flexible Unterteilung in etwa hälftige Einheiten ist in der Planung vorgesehen, sodass die Flächen optimal an die individuellen Bedürfnisse der Mieter angepasst werden können. Damit eignet sich das Gebäude gleichermaßen für größere Unternehmen, die eine gesamte oder mehrere Etage/n exklusiv nutzen möchten, wie auch für kleinere Firmen, die von der repräsentativen Adresse profitieren wollen.
Jede Etage bietet eine durchdachte Grundrissgestaltung mit variablen Raumkonzepten. Möglich sind sowohl klassische Zellenbüros, offene Großraumlösungen oder moderne Kombi-Büros. Ergänzt werden die Flächen durch Besprechungs- und Konferenzräume, Teeküchen, sanitäre Anlagen sowie Erschließungs- und Aufenthaltsbereiche. Die Grundrisse lassen eine effiziente Flächennutzung zu und schaffen gleichzeitig eine angenehme Arbeitsatmosphäre mit viel Tageslicht.
Im Erdgeschoss bietet ein großzügiges, repräsentatives Foyer den passenden Empfang für Mitarbeiter und Besucher. Über den zentralen Aufzug und das helle Treppenhaus sind alle Etagen barrierefrei erreichbar. Die oberen Geschosse profitieren zudem von attraktiven Terrassen- und Balkonflächen, die als Pausen- oder Besprechungszonen im Freien genutzt werden können.
Neben der modernen Arbeitsumgebung überzeugt das Gebäude auch durch seine hochwertige technische Ausstattung. Eine zukunftssichere Daten- und Stromversorgung, energieeffiziente Heiz- und Kühlsysteme sowie ein außenliegender Sonnenschutz schaffen beste Voraussetzungen für komfortables Arbeiten. Durch die extensiv begrünten Dachflächen und die Integration von Photovoltaik wird zudem ein Beitrag zu Nachhaltigkeit und Energieeffizienz geleistet.
Geeignet ist das Gebäude für eine Vielzahl von Gewerbearten, unter anderem:
- Büro- und Verwaltungsnutzung
- Kanzleien (Rechtsanwälte, Notare, Steuerberater)
- Agenturen (Werbung, Marketing, IT, Design, Architektur)
- Finanz- und Versicherungsdienstleister
- Unternehmens- und Personalberatungen
- Schulungs- und Weiterbildungszentren
- Co-Working und Shared-Office-Konzepte
Damit entsteht an der Steinstraße ein zukunftsweisender Bürostandort, der Funktionalität, Flexibilität und hochwertige Architektur miteinander verbindet – perfekt für Unternehmen, die eine moderne, repräsentative Adresse in Gronau suchen.
*M-KM - Monats-Kaltmiete/n
Ausstattung
- Neubau, Fertigstellung 2026
- Flexible Flächenaufteilung (ganze/ mehrere Etage/n, halbe oder sogar viertel Einheit)
- Fläche pro Etage (teilbar s.o.):
EG: ca. 568,05 m² - 9.000€ M-KM
1.OG: ca. 520,92 m² - 9.000€ M-KM
2.OG: ca. 594,12 m² - 9.000€ M-KM
3.OG: ca. 594,12 m² - 9.000€ M-KM
4.OG: ca. 335,96 m² (Im 4.OG können einzelne Monteurwohnungen zusätzlich zur Etage (teilbar s.o.) gemietet werden). - 1.500€ pro Büroeinheit
- Tiefgarage mit PKW-Stellplätzen sowie zusätzliche Außenstellplätze
- Barrierefreiheit und Personenaufzug
- Großzügiges Foyer und helle Treppenhäuser
- Hochwertige Boden- und Wandbeläge (Feinsteinzeug, Teppich/PVC je nach Nutzung)
- LED-Beleuchtung und Präsenzmelder in Verkehrsflächen
- Glasfaseranschluss und moderne Netzwerktechnik (Cat-7-Verkabelung)
- Teeküchen und separate Sanitäreinheiten je Etage
- Teilweise Terrassen und Balkone
- Elektrische Sonnenschutzelemente an den Fensterfronten
- Modernes Heizungs- und Kühlsystem, energieeffiziente Gebäudetechnik
- Extensiv begrünte Dachflächen, teilweise mit Photovoltaik
*Energieausweis liegt zur Besichtigung vor
- Flexible Flächenaufteilung (ganze/ mehrere Etage/n, halbe oder sogar viertel Einheit)
- Fläche pro Etage (teilbar s.o.):
EG: ca. 568,05 m² - 9.000€ M-KM
1.OG: ca. 520,92 m² - 9.000€ M-KM
2.OG: ca. 594,12 m² - 9.000€ M-KM
3.OG: ca. 594,12 m² - 9.000€ M-KM
4.OG: ca. 335,96 m² (Im 4.OG können einzelne Monteurwohnungen zusätzlich zur Etage (teilbar s.o.) gemietet werden). - 1.500€ pro Büroeinheit
- Tiefgarage mit PKW-Stellplätzen sowie zusätzliche Außenstellplätze
- Barrierefreiheit und Personenaufzug
- Großzügiges Foyer und helle Treppenhäuser
- Hochwertige Boden- und Wandbeläge (Feinsteinzeug, Teppich/PVC je nach Nutzung)
- LED-Beleuchtung und Präsenzmelder in Verkehrsflächen
- Glasfaseranschluss und moderne Netzwerktechnik (Cat-7-Verkabelung)
- Teeküchen und separate Sanitäreinheiten je Etage
- Teilweise Terrassen und Balkone
- Elektrische Sonnenschutzelemente an den Fensterfronten
- Modernes Heizungs- und Kühlsystem, energieeffiziente Gebäudetechnik
- Extensiv begrünte Dachflächen, teilweise mit Photovoltaik
*Energieausweis liegt zur Besichtigung vor
Lage des Objektes
Das Projekt liegt an der Steinstraße in Gronau (Westfalen) — im städtischen Westen, auf einem ehemals von der Deutschen Bundesbahn genutzten / brachliegenden Streifen entlang der Bahnlinie. Die Lageplanung sieht einen großzügigen Vorplatz mit Fuß- und Radwegen vor; das Gebäude orientiert sich direkt zur Steinstraße und profitiert damit von einer sehr guten Sichtbarkeit und Anbindung.
Verkehr & Erreichbarkeit: Die direkte Lage entlang der Bahnlinie und die Nähe zu Bahnhof/Verkehrsachsen machen den Standort für Pendler und Kunden gleichermaßen attraktiv; innerstädtische Ziele wie Einkauf, Gastronomie und Dienstleister sind in wenigen Minuten erreichbar. Die Tiefgaragenzufahrt und vorhandene Außenstellplätze sorgen zudem für eine komfortable Erreichbarkeit mit dem Pkw. Fahrradstellplätze und gut ausgebaute Fuß-/Radwege sind in der Planzeichnung berücksichtigt, wodurch die Anbindung für Nahmobilität gewährleistet ist.
Wirtschaftliche und grenznahe Lage: Gronau ist als Mittelstadt mit regionaler Bedeutung insbesondere wegen seiner Nähe zur niederländischen Grenze interessant — für Unternehmen mit grenzüberschreitenden Beziehungen bietet der Standort daher zusätzlichen Standortvorteil. Die situative Einbettung im Entwicklungsbereich „Stadtwesten / Bahnhofsumfeld“ schafft neue Synergien mit angrenzenden Nutzungen (Büro, Dienstleistung, Hotel etc.).
Umfeld & Image: Durch das geplante architektonische Gesamtkonzept entsteht eine eigenständige, moderne Adresse mit repräsentativem Eingang, hochwertiger Fassadengestaltung und sichtbarer Präsenz an der Steinstraße. Das entstehende Umfeld wird durch durchdachte Vorplatz- und Grünflächenplanung sowie eine klare Wegeführung aufgewertet — ideal für Unternehmen, die hochwertige, flexible Büroflächen in einer gut erreichbaren, städtischen Lage suchen.
Verkehr & Erreichbarkeit: Die direkte Lage entlang der Bahnlinie und die Nähe zu Bahnhof/Verkehrsachsen machen den Standort für Pendler und Kunden gleichermaßen attraktiv; innerstädtische Ziele wie Einkauf, Gastronomie und Dienstleister sind in wenigen Minuten erreichbar. Die Tiefgaragenzufahrt und vorhandene Außenstellplätze sorgen zudem für eine komfortable Erreichbarkeit mit dem Pkw. Fahrradstellplätze und gut ausgebaute Fuß-/Radwege sind in der Planzeichnung berücksichtigt, wodurch die Anbindung für Nahmobilität gewährleistet ist.
Wirtschaftliche und grenznahe Lage: Gronau ist als Mittelstadt mit regionaler Bedeutung insbesondere wegen seiner Nähe zur niederländischen Grenze interessant — für Unternehmen mit grenzüberschreitenden Beziehungen bietet der Standort daher zusätzlichen Standortvorteil. Die situative Einbettung im Entwicklungsbereich „Stadtwesten / Bahnhofsumfeld“ schafft neue Synergien mit angrenzenden Nutzungen (Büro, Dienstleistung, Hotel etc.).
Umfeld & Image: Durch das geplante architektonische Gesamtkonzept entsteht eine eigenständige, moderne Adresse mit repräsentativem Eingang, hochwertiger Fassadengestaltung und sichtbarer Präsenz an der Steinstraße. Das entstehende Umfeld wird durch durchdachte Vorplatz- und Grünflächenplanung sowie eine klare Wegeführung aufgewertet — ideal für Unternehmen, die hochwertige, flexible Büroflächen in einer gut erreichbaren, städtischen Lage suchen.
Sonstige Informationen
Wir bieten nicht nur eine kostenlose Hotline, sondern auch einen Service am Wochenende. Bei Interesse geben Sie bitte immer Ihre vollständigen Kontaktdaten an.
Die Objektbeschreibung beruht ganz oder zum Teil auf Angaben des Eigentümers. Für die Richtigkeit oder Vollständigkeit übernehmen wir keine Gewähr.
Sie wollen Ihre Immobilie ebenfalls professionell vermarkten, rufen Sie uns an, wir stehen Ihnen von Mo. bis So. von 6.00 - 22.00h persönlich zur Seite!
Über 150.000 aktive Interessenten warten bereits auf Sie.
FALC Immobilien
Nico Jakob
01577 4619816
0800 - 646 0 646
Außenansicht
Außenansicht
Drohnen-Perspektive
Drohnen-Perspektive
4.OG Büro & Terrasse
4.OG Büro
Foyer EG
3.OG Büro
3.OG Büro
3.OG Konferenzraum
Seitenansicht
Seitenansicht
Seitenansicht
Erdgeschoss
1. Obergeschoss
2. Obergeschoss
3. Obergeschoss
4. Obergeschoss
Tiefgarage