Exposé
Objektart:
Zimmer
» Miete
Standort: Zimmer »
Deutschland » Nordrhein-Westfalen » Borken (Kreis) » Gronau (Westfalen)
Ihr neues Unterkunftsobjekt: moderne Monteurwohnungen im Neubau mit Tiefgarage!
Titelbild
Das Wichtigste auf einen Blick:
| Objektnummer: | 9333860 |
Preise
| Kaltmiete | 9.000 € |
| Nebenkosten | keine Angabe |
Flächen
| Gesamtfläche | 2.613,17 m² |
| Maklerprovision | 1,19 M-KM |
Objekt Adresse
Steinstraße 1
48599 Gronau (Westfalen)
- Nordrhein-Westfalen
Sonstige Angaben
| Baujahr | 2026 |
| Verfügbar ab | 2026 |
| Anzahl der Etagen im Haus | 5 |
| Küche | Einbauküche |
| Bad | Fenster, Bidet, Pissoir |
| Balkone | 1 |
| Terrassen | 1 |
| Fahrstuhl | Ja |
| Barrierefrei | |
| Wesentlicher Energieträger | Luftwärmepumpe |
| Energieträger/Befeuerung | Luft-Wärme-Pumpe |
Objektbeschreibung
In der Steinstraße in Gronau entsteht bis 2026 ein modernes Gebäude mit Monteurwohnungen, das mit klarer Architektur, großzügigen Grundrissen und zukunftsweisender Ausstattung überzeugt. Der Neubau umfasst vier Vollgeschosse sowie ein Staffelgeschoss und wird durch eine Tiefgarage und zusätzliche Außenstellplätze ergänzt. Auf einer Grundstücksfläche von rund 2.130 m² entsteht so ein repräsentativer Standort, der den Anforderungen zeitgemäßen, komfortablen Wohnens für Monteure und Berufspendler gerecht wird.
Die Wohneinheiten sind großzügig, lichtdurchflutet und so konzipiert, dass sie sowohl einzeln als auch in größeren Einheiten genutzt werden können. Eine flexible Unterteilung in etwa hälftige Bereiche ist in der Planung vorgesehen, sodass die Flächen optimal an unterschiedliche Belegungen angepasst werden können. Damit eignet sich das Gebäude gleichermaßen für Betreiber, die komplette Etagen anmieten möchten, wie auch für Firmen, die Unterkünfte für ihre Mitarbeiter suchen.
Jede Etage bietet eine durchdachte Grundrissgestaltung mit variablen Apartmentlösungen. Möglich sind sowohl Einzelapartments, Mehrbettzimmer als auch kombinierte Wohneinheiten mit gemeinschaftlichen Aufenthaltsbereichen. Ergänzt werden die Wohnungen durch Küchen, moderne Bäder, Abstellräume sowie gemeinschaftlich nutzbare Flächen. Die Grundrisse ermöglichen eine effiziente Raumnutzung und schaffen gleichzeitig eine angenehme Wohnatmosphäre mit viel Tageslicht.
Im Erdgeschoss empfängt ein großzügiger Eingangsbereich Bewohner und Gäste. Über den zentralen Aufzug und das helle Treppenhaus sind alle Etagen barrierefrei erreichbar. Die oberen Geschosse profitieren zudem von attraktiven Terrassen- und Balkonflächen, die als Aufenthalts- oder Erholungszonen im Freien genutzt werden können.
Neben der modernen Ausstattung überzeugt das Gebäude auch durch seine hochwertige technische Infrastruktur. Eine zeitgemäße Daten- und Stromversorgung, energieeffiziente Heiz- und Kühlsysteme sowie ein außenliegender Sonnenschutz schaffen beste Voraussetzungen für komfortables Wohnen. Durch die extensiv begrünten Dachflächen und die Integration von Photovoltaik wird zudem ein Beitrag zu Nachhaltigkeit und Energieeffizienz geleistet.
Geeignet ist das Gebäude für eine Vielzahl von Nutzungskonzepten, unter anderem:
Monteur- und Arbeiterunterkünfte
Serviced Apartments / Boardinghouse
Langzeitvermietung für Berufspendler
Kurzzeitvermietung für Projektmitarbeiter
Gemeinschaftswohnen mit Servicekonzept
Damit entsteht an der Steinstraße ein zukunftsweisendes Wohngebäude, das Funktionalität, Flexibilität und hochwertige Architektur miteinander verbindet – perfekt für Unternehmen und Betreiber, die moderne, repräsentative Monteurwohnungen in Gronau anbieten oder nutzen möchten.
M-KM – Monats-Kaltmiete/n
Die Wohneinheiten sind großzügig, lichtdurchflutet und so konzipiert, dass sie sowohl einzeln als auch in größeren Einheiten genutzt werden können. Eine flexible Unterteilung in etwa hälftige Bereiche ist in der Planung vorgesehen, sodass die Flächen optimal an unterschiedliche Belegungen angepasst werden können. Damit eignet sich das Gebäude gleichermaßen für Betreiber, die komplette Etagen anmieten möchten, wie auch für Firmen, die Unterkünfte für ihre Mitarbeiter suchen.
Jede Etage bietet eine durchdachte Grundrissgestaltung mit variablen Apartmentlösungen. Möglich sind sowohl Einzelapartments, Mehrbettzimmer als auch kombinierte Wohneinheiten mit gemeinschaftlichen Aufenthaltsbereichen. Ergänzt werden die Wohnungen durch Küchen, moderne Bäder, Abstellräume sowie gemeinschaftlich nutzbare Flächen. Die Grundrisse ermöglichen eine effiziente Raumnutzung und schaffen gleichzeitig eine angenehme Wohnatmosphäre mit viel Tageslicht.
Im Erdgeschoss empfängt ein großzügiger Eingangsbereich Bewohner und Gäste. Über den zentralen Aufzug und das helle Treppenhaus sind alle Etagen barrierefrei erreichbar. Die oberen Geschosse profitieren zudem von attraktiven Terrassen- und Balkonflächen, die als Aufenthalts- oder Erholungszonen im Freien genutzt werden können.
Neben der modernen Ausstattung überzeugt das Gebäude auch durch seine hochwertige technische Infrastruktur. Eine zeitgemäße Daten- und Stromversorgung, energieeffiziente Heiz- und Kühlsysteme sowie ein außenliegender Sonnenschutz schaffen beste Voraussetzungen für komfortables Wohnen. Durch die extensiv begrünten Dachflächen und die Integration von Photovoltaik wird zudem ein Beitrag zu Nachhaltigkeit und Energieeffizienz geleistet.
Geeignet ist das Gebäude für eine Vielzahl von Nutzungskonzepten, unter anderem:
Monteur- und Arbeiterunterkünfte
Serviced Apartments / Boardinghouse
Langzeitvermietung für Berufspendler
Kurzzeitvermietung für Projektmitarbeiter
Gemeinschaftswohnen mit Servicekonzept
Damit entsteht an der Steinstraße ein zukunftsweisendes Wohngebäude, das Funktionalität, Flexibilität und hochwertige Architektur miteinander verbindet – perfekt für Unternehmen und Betreiber, die moderne, repräsentative Monteurwohnungen in Gronau anbieten oder nutzen möchten.
M-KM – Monats-Kaltmiete/n
Ausstattung
- Neubau, Fertigstellung 2026
- Flexible Flächenaufteilung (ganze/ mehrere Etage/n, halbe oder sogar viertel Einheit)
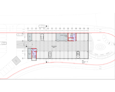
- Fläche pro Etage (teilbar s.o.):
EG: ca. 568,05 m² - 9.000€ M-KM
1.OG: ca. 520,92 m² - 9.000€ M-KM
2.OG: ca. 594,12 m² - 9.000€ M-KM
3.OG: ca. 594,12 m² - 9.000€ M-KM
4.OG: ca. 335,96 m² (Im 4.OG können einzelne Monteurwohnungen zusätzlich zur Etage (teilbar s.o.) gemietet werden). - 1.500€ pro Büroeinheit
- Bäder inkl. Duschen etc. pro Etage (nach Wunsch)
- Tiefgarage mit PKW-Stellplätzen sowie zusätzliche Außenstellplätze
- Barrierefreiheit und Personenaufzug
- Großzügiges Foyer und helle Treppenhäuser
- Hochwertige Boden- und Wandbeläge (Feinsteinzeug, Teppich/PVC je nach Nutzung)
- LED-Beleuchtung und Präsenzmelder in Verkehrsflächen
- Glasfaseranschluss und moderne Netzwerktechnik (Cat-7-Verkabelung)
- Teeküchen und separate Sanitäreinheiten je Etage
- Teilweise Terrassen und Balkone
- Elektrische Sonnenschutzelemente an den Fensterfronten
- Modernes Heizungs- und Kühlsystem, energieeffiziente Gebäudetechnik
- Extensiv begrünte Dachflächen, teilweise mit Photovoltaik
*Energieausweis liegt zur Besichtigung vor
- Flexible Flächenaufteilung (ganze/ mehrere Etage/n, halbe oder sogar viertel Einheit)
- Fläche pro Etage (teilbar s.o.):
EG: ca. 568,05 m² - 9.000€ M-KM
1.OG: ca. 520,92 m² - 9.000€ M-KM
2.OG: ca. 594,12 m² - 9.000€ M-KM
3.OG: ca. 594,12 m² - 9.000€ M-KM
4.OG: ca. 335,96 m² (Im 4.OG können einzelne Monteurwohnungen zusätzlich zur Etage (teilbar s.o.) gemietet werden). - 1.500€ pro Büroeinheit
- Bäder inkl. Duschen etc. pro Etage (nach Wunsch)
- Tiefgarage mit PKW-Stellplätzen sowie zusätzliche Außenstellplätze
- Barrierefreiheit und Personenaufzug
- Großzügiges Foyer und helle Treppenhäuser
- Hochwertige Boden- und Wandbeläge (Feinsteinzeug, Teppich/PVC je nach Nutzung)
- LED-Beleuchtung und Präsenzmelder in Verkehrsflächen
- Glasfaseranschluss und moderne Netzwerktechnik (Cat-7-Verkabelung)
- Teeküchen und separate Sanitäreinheiten je Etage
- Teilweise Terrassen und Balkone
- Elektrische Sonnenschutzelemente an den Fensterfronten
- Modernes Heizungs- und Kühlsystem, energieeffiziente Gebäudetechnik
- Extensiv begrünte Dachflächen, teilweise mit Photovoltaik
*Energieausweis liegt zur Besichtigung vor
Lage des Objektes
Das Projekt liegt an der Steinstraße in Gronau (Westfalen) — im städtischen Westen, auf einem ehemals von der Deutschen Bundesbahn genutzten / brachliegenden Streifen entlang der Bahnlinie. Die Lageplanung sieht einen großzügigen Vorplatz mit Fuß- und Radwegen vor; das Gebäude orientiert sich direkt zur Steinstraße und profitiert damit von einer sehr guten Sichtbarkeit und Anbindung.
Verkehr & Erreichbarkeit: Die direkte Lage entlang der Bahnlinie und die Nähe zu Bahnhof/Verkehrsachsen machen den Standort für Pendler und Kunden gleichermaßen attraktiv; innerstädtische Ziele wie Einkauf, Gastronomie und Dienstleister sind in wenigen Minuten erreichbar. Die Tiefgaragenzufahrt und vorhandene Außenstellplätze sorgen zudem für eine komfortable Erreichbarkeit mit dem Pkw. Fahrradstellplätze und gut ausgebaute Fuß-/Radwege sind in der Planzeichnung berücksichtigt, wodurch die Anbindung für Nahmobilität gewährleistet ist.
Wirtschaftliche und grenznahe Lage: Gronau ist als Mittelstadt mit regionaler Bedeutung insbesondere wegen seiner Nähe zur niederländischen Grenze interessant — für Unternehmen mit grenzüberschreitenden Beziehungen bietet der Standort daher zusätzlichen Standortvorteil. Die situative Einbettung im Entwicklungsbereich „Stadtwesten / Bahnhofsumfeld“ schafft neue Synergien mit angrenzenden Nutzungen (Büro, Dienstleistung, Hotel etc.).
Umfeld & Image: Durch das geplante architektonische Gesamtkonzept entsteht eine eigenständige, moderne Adresse mit repräsentativem Eingang, hochwertiger Fassadengestaltung und sichtbarer Präsenz an der Steinstraße. Das entstehende Umfeld wird durch durchdachte Vorplatz- und Grünflächenplanung sowie eine klare Wegeführung aufgewertet — ideal für Unternehmen, die hochwertige, flexible Büroflächen in einer gut erreichbaren, städtischen Lage suchen.
Verkehr & Erreichbarkeit: Die direkte Lage entlang der Bahnlinie und die Nähe zu Bahnhof/Verkehrsachsen machen den Standort für Pendler und Kunden gleichermaßen attraktiv; innerstädtische Ziele wie Einkauf, Gastronomie und Dienstleister sind in wenigen Minuten erreichbar. Die Tiefgaragenzufahrt und vorhandene Außenstellplätze sorgen zudem für eine komfortable Erreichbarkeit mit dem Pkw. Fahrradstellplätze und gut ausgebaute Fuß-/Radwege sind in der Planzeichnung berücksichtigt, wodurch die Anbindung für Nahmobilität gewährleistet ist.
Wirtschaftliche und grenznahe Lage: Gronau ist als Mittelstadt mit regionaler Bedeutung insbesondere wegen seiner Nähe zur niederländischen Grenze interessant — für Unternehmen mit grenzüberschreitenden Beziehungen bietet der Standort daher zusätzlichen Standortvorteil. Die situative Einbettung im Entwicklungsbereich „Stadtwesten / Bahnhofsumfeld“ schafft neue Synergien mit angrenzenden Nutzungen (Büro, Dienstleistung, Hotel etc.).
Umfeld & Image: Durch das geplante architektonische Gesamtkonzept entsteht eine eigenständige, moderne Adresse mit repräsentativem Eingang, hochwertiger Fassadengestaltung und sichtbarer Präsenz an der Steinstraße. Das entstehende Umfeld wird durch durchdachte Vorplatz- und Grünflächenplanung sowie eine klare Wegeführung aufgewertet — ideal für Unternehmen, die hochwertige, flexible Büroflächen in einer gut erreichbaren, städtischen Lage suchen.
Sonstige Informationen
Wir bieten nicht nur eine kostenlose Hotline, sondern auch einen Service am Wochenende. Bei Interesse geben Sie bitte immer Ihre vollständigen Kontaktdaten an.
Die Objektbeschreibung beruht ganz oder zum Teil auf Angaben des Eigentümers. Für die Richtigkeit oder Vollständigkeit übernehmen wir keine Gewähr.
Sie wollen Ihre Immobilie ebenfalls professionell vermarkten, rufen Sie uns an, wir stehen Ihnen von Mo. bis So. von 6.00 - 22.00h persönlich zur Seite!
Über 150.000 aktive Interessenten warten bereits auf Sie.
FALC Immobilien
Nico Jakob
01577 4619816
0800 - 646 0 646
Außenansicht
Außenansicht
Drohnen-Perspektive
Drohnen-Perspektive
Monteurwohnung Bsp.
Monteurwohnung Bsp.
Foyer EG Bsp.
Seitenansicht
Seitenansicht
Seitenansicht
Grundriss EG
Grundriss 1.OG
Grundriss 2.OG
Grundriss 3.OG
Grundriss 4.OG
Tiefgarage