Exposé
Objektart:
Einzelhandel
» Ladenlokal
» Miete
Zentralgelegenes GEWERBE-LOKAL in bester Geschäftslage mit 2 fixen Autostellplätzen - ZU VERMIETEN!
01-Titelbild
Das Wichtigste auf einen Blick:
| Objektnummer: | 9332830 |
Preise
| Kaltmiete (netto) | 750 € |
| Nebenkosten | 150 € |
| Kaution | 2.250 € |
Flächen
Objekt Adresse
Langrain 42/D
39043 Klausen
Sonstige Angaben
| Verfügbar ab | sofort |
| Energieausweistyp | Bedarfsausweis |
| Energieeffizienzklasse | D |
Objektbeschreibung
Zentralgelegenes GEWERBE-LOKAL in bester Geschäftslage mit 2 fixen Autostellplätzen - ZU VERMIETEN!
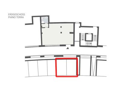
GUT ZU WISSEN: im Erdgeschoss gelegen, Klimahaus B, Bodenheizung, integriertes Bad mit Magazin, großzügige, bodentiefe Schaufenster, sofort verfügbar; Nettofläche: knapp 50,00m²
RAUMAUFTEILUNG: Eingangsbereich, großzügiger Repräsentations-Bereich, kleines Magazin, eigenes Bad
PLUS: attraktive Ecklage, helle Geschäftsräumlichkeiten, bodentiefe Vitrinen, gute Sichtbarkeit
Gerne mehr in unserem Büro.
GUT ZU WISSEN: im Erdgeschoss gelegen, Klimahaus B, Bodenheizung, integriertes Bad mit Magazin, großzügige, bodentiefe Schaufenster, sofort verfügbar; Nettofläche: knapp 50,00m²
RAUMAUFTEILUNG: Eingangsbereich, großzügiger Repräsentations-Bereich, kleines Magazin, eigenes Bad
PLUS: attraktive Ecklage, helle Geschäftsräumlichkeiten, bodentiefe Vitrinen, gute Sichtbarkeit
Gerne mehr in unserem Büro.
Lage des Objektes
Diese Mietimmobilie befindet sich in bester Geschäftslage, in der neu entstandenen Wohn-u. Handelszone Langrain im südlichen Stadtteil von Klausen.
Profitieren Sie von der attraktiven Ecklage mit Westausrichtung und viel Sonne!
Die modernen Gewerbe-Räumlichkeiten mit ebenerdigem Zugang bieten hohe Besucherfrequenz, sowie ein hohes Maß an Wohnqualität dank Klimahaus-B-Standard und energiesparender Fußbodenheizung.
Profitieren Sie von der attraktiven Ecklage mit Westausrichtung und viel Sonne!
Die modernen Gewerbe-Räumlichkeiten mit ebenerdigem Zugang bieten hohe Besucherfrequenz, sowie ein hohes Maß an Wohnqualität dank Klimahaus-B-Standard und energiesparender Fußbodenheizung.
01-TitelbildDEF
Z4
5665
Z1
Z2
Z3
07-Innen
08-Grundriss
https://www.immobilpoint.com/immobiliendetails.xhtml?id[obj0]=2635