Exposé
Objektart:
Wohnung
» Etage
» Miete
Standort: Wohnung »
Deutschland » Berlin » Berlin, Stadt (Kreis) » Berlin
TOP vollmöblierte Wohnung in zentraler Lage - Inklusive W-LAN und Strom
Schlafen/ Wohnen/ Küche
Das Wichtigste auf einen Blick:
| Objektnummer: | 9331885 |
Preise
| Kaltmiete (netto) | 849 € |
| Nebenkosten | 149 € |
| Heizkosten enthalten | Ja |
| Kaution | 2.547 € |
Flächen
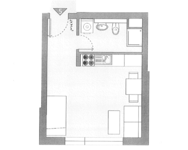
| Wohnfläche | 27,71 m² |
Objekt Adresse
Alt-Reinickendorf 54
13407 Berlin
- Berlin
Sonstige Angaben
| Baujahr | 2021 |
| Zimmer | 1 |
| Verfügbar ab | 01.02.2026 |
| Bad | 1 |
| Anzahl der Etagen im Haus | 5 |
| Inserat befindet sich im Stockwerk | 1 |
| Küche | Einbauküche |
| Bad | 1 |
| Bad | Dusche |
| Boden | Fliesen, Parkett |
| Fahrstuhl | Ja |
| Barrierefrei | |
| Energieausweistyp | Bedarfsausweis |
| Energieeffizienzklasse | B |
| Endenergiebedarf | 56 kWh/(m²*a) |
| Heizungsart | Zentralheizung |
| Energieträger/Befeuerung | Gas |
Objektbeschreibung
ERSTKLASSIGE WOHNUNG!
Möbliertes Wohnen!
Die beste Kombination aus optimalem Wohnungsgrundriss und tollem Design!
Die Wohnung liegt im Stadtteil zentral gelegen, mit einer optimalen Infrastruktur!
Die Wohnung im Wohnobjekt Alt-Reinickendorf 54 bietet dabei als eines von 20 Appartements im Objekt alles, was man sich heute unter zeitgemäßem Wohnen vorstellt.
Fläche: 27,71 qm
Ab 01.02.2026 frei - oder nach Vereinbarung auch früher!
998 € Gesamtmiete
inkl. Heizung und Wasser
inkl. Strom
inkl. Internet (WLAN)
Für Jedermann geeignet - barrierefrei - mit Aufzug/ Lift!
Möbliertes Wohnen!
Die beste Kombination aus optimalem Wohnungsgrundriss und tollem Design!
Die Wohnung liegt im Stadtteil zentral gelegen, mit einer optimalen Infrastruktur!
Die Wohnung im Wohnobjekt Alt-Reinickendorf 54 bietet dabei als eines von 20 Appartements im Objekt alles, was man sich heute unter zeitgemäßem Wohnen vorstellt.
Fläche: 27,71 qm
Ab 01.02.2026 frei - oder nach Vereinbarung auch früher!
998 € Gesamtmiete
inkl. Heizung und Wasser
inkl. Strom
inkl. Internet (WLAN)
Für Jedermann geeignet - barrierefrei - mit Aufzug/ Lift!
Ausstattung
Fahrstuhl, Duschbad, Einbauküche, Barrierefrei, Parkett, Fliesen
Bemerkungen:
Möbliert wohnen - flexibel bleiben!
Die Wohnung wird voll möbliert vermietet:
- Kleiderschrank
- Sofa
- Bett
- Deckenleuchte
- Smart-TV
- Schreibtisch und Stuhl
- Waschmaschine
- Staubsauger
- Couchtisch
- verschiedene Deko-Elemente
Komplett ausgestattete Einbauküche:
- Ceranfeld
- Gefrierschrank
- Mikrowelle
- Inventar: z.B. Teller, Gläser, Tassen, Besteck, Wasserkocher
- Spülmaschine
- Kühlschrank
Bemerkungen:
Möbliert wohnen - flexibel bleiben!
Die Wohnung wird voll möbliert vermietet:
- Kleiderschrank
- Sofa
- Bett
- Deckenleuchte
- Smart-TV
- Schreibtisch und Stuhl
- Waschmaschine
- Staubsauger
- Couchtisch
- verschiedene Deko-Elemente
Komplett ausgestattete Einbauküche:
- Ceranfeld
- Gefrierschrank
- Mikrowelle
- Inventar: z.B. Teller, Gläser, Tassen, Besteck, Wasserkocher
- Spülmaschine
- Kühlschrank
Lage des Objektes
Objektstandort: Alt-Reinickendorf 54
Verkehrsgünstig gelegen, zwischen den U-Bahnstationen Paracelsus-Bad und Residenzstr. (U8), sowie den S-Bahnstationen Alt-Reinickendorf (S25) und S-Bahnstation Wilhelmsruh (S26)
Auf dem nahegelegenen Airport-Gelände des Flughafens Tegels entsteht ab 2022 als Nachnutzungskonzept das wohl größte Bauprojekt weltweit mit innerstädtischer Lage.
Es wird dort eines der deutschlandweit größten Wissenschafts- und Elektrotechnikparks errichtet, ebenso sollen sich mehr als 1000 Unternehmen an diesem Standort niederlassen, die dann mehr als 15.000 Menschen beschäftigen werden.
Infrastruktur (im Umkreis von 5 km):
Apotheke, Lebensmittel-Discount, Kindergarten, Grundschule, Hauptschule, Realschule, Gymnasium, Gesamtschule, Öffentliche Verkehrsmittel
Verkehrsgünstig gelegen, zwischen den U-Bahnstationen Paracelsus-Bad und Residenzstr. (U8), sowie den S-Bahnstationen Alt-Reinickendorf (S25) und S-Bahnstation Wilhelmsruh (S26)
Auf dem nahegelegenen Airport-Gelände des Flughafens Tegels entsteht ab 2022 als Nachnutzungskonzept das wohl größte Bauprojekt weltweit mit innerstädtischer Lage.
Es wird dort eines der deutschlandweit größten Wissenschafts- und Elektrotechnikparks errichtet, ebenso sollen sich mehr als 1000 Unternehmen an diesem Standort niederlassen, die dann mehr als 15.000 Menschen beschäftigen werden.
Infrastruktur (im Umkreis von 5 km):
Apotheke, Lebensmittel-Discount, Kindergarten, Grundschule, Hauptschule, Realschule, Gymnasium, Gesamtschule, Öffentliche Verkehrsmittel
Sonstige Informationen
Heizungsart: Zentralheizung
Energieträger: Gas
Zielgruppen für möbliertes Wohnen:
- Führungskräfte
- Internationale Fachkräfte
- NEU-Berliner in der Orientierungsphase
- Singles
- Berufseinsteiger
- Zeitarbeitskräfte
- Pendler
VORTEILE für den Mieter:
- praktisch und funktional möblierte, - voll ausgestattete Wohnung
- einfacher und komfortabler Ein- und Auszug
- attraktive und zudem kostengünstige Alternative zum Hotel & Boardinghouse
- zentrale Lage mit optimaler Anbindung an den ÖPNV
--> OHNE Maklergebühren von privat zu vermieten!!!
Makleranfragen nicht erwünscht. Nach § 7 UWG sind unaufgeforderte Kontaktaufnahmen durch Makler ohne ausdrückliche Einwilligung des Empfängers verboten!
ohne-makler (OM) ist weder Anbieter noch Vermittler der Immobilie. OM betreibt eine Plattform für Immobilieneigentümer, die unter anderem die gleichzeitige Veröffentlichung einzelner Inserate auf mehreren Immobilienportalen ermöglicht. Die Inhalte dieser Inserate werden ausschließlich von Dritten verantwortet. Für die Richtigkeit, Vollständigkeit oder Rechtmäßigkeit der Angaben übernimmt OM keine Haftung. Hinweise auf mögliche Rechtsverstöße können jederzeit gemeldet werden und werden nach Prüfung umgehend bearbeitet.
Schlafen/ Wohnen/ Küche
Schlafen/ Wohnen/ Küche
Flur
Bad
Grundriss