Exposé
Objektart:
Zinshaus Renditeobjekt
» Kauf
Standort: Zinshaus Renditeobjekt »
Deutschland » Sachsen-Anhalt » Saalekreis (Kreis) » Kabelsketal
Wohnungspaket (5 Einheiten, Bj. 1996) – 2 Galeriewohnungen, Dachterrassen, Aufzug, 6 % Soll-Rendite
Hausansicht vorne
Angeboten von:
Marko Künne Immobilien
Käthe-Kollwitz-Str. 58c
04109 Leipzig
Deutschland
Telefon:+49(0)341-4429566
Fax:+49(0)341-2253930
www.kuenne-immobilien.de
| Telefon: | 0341 442 9566 |
| Fax: | 0341 2253930 |
Das Wichtigste auf einen Blick:
| Objektnummer: | 9331835 |
Preise
| Kaufpreis | 409.000 € |
| Nebenkosten | keine Angabe |
| Kaufpreis pro m² | 1279,72 € |
Flächen
| Wohnfläche | 319,6 m² |
| Gesamtfläche | 319,6 m² |
| Maklerprovision | 14.601,- € |
Objekt Adresse
06184 Kabelsketal
- Sachsen-Anhalt
Sonstige Angaben
| Baujahr | 1996 |
| Verfügbar ab | keine Angabe |
| Inserat befindet sich im Stockwerk | 4 |
| Balkone | 1 |
| Fahrstuhl | Ja |
| Keller | Ja |
| Energieausweistyp | Verbrauch |
| Ausstellungsdatum | 06. 03. 2018 |
| Gültig bis | 06.03.2028 |
| Energieeffizienzklasse | C |
| Energieverbrauchkennwert | 70 kWh/(m²*a) |
| Heizungsart | Fernwärme |
| Wesentlicher Energieträger | Fernwärme |
| Energieträger/Befeuerung | Fernwärme |
Beschreibung der Immobilie
Das zum Verkauf stehende Wohnungspaket umfasst die beiden obersten Etagen eines gepflegten Mehrfamilienhauses aus dem Baujahr 1996. Es besteht aus fünf von insgesamt 32 Wohneinheiten mit einem Miteigentumsanteil von 256/1000. Zwei der Wohnungen sind als großzügige Maisonettewohnungen mit offener Galerie im Dachgeschoss gestaltet und bieten ein besonderes Wohnambiente. Alle Wohnungen verfügen über einen Balkon, einige zusätzlich über ein Gäste-WC. Das Wohnungspaket ist aktuell vollständig vermietet, wobei zwei Einheiten kürzlich frisch renoviert wurden.
Das Gebäude selbst befindet sich in einem sehr gepflegten Zustand und wurde kürzlich einer umfassenden Hauptstrangsanierung unterzogen. Es ist mit einem Fahrstuhl ausgestattet und wird über eine moderne Fernwärmeheizung versorgt. Zur Immobilie gehören drei Tiefgaragenstellplätze sowie vier Außenstellplätze. Die Außenanlage ist ansprechend gestaltet und bietet gepflasterte Wege, einen Kinderspielplatz sowie einen gepflegten Vorgarten. Alle Fenster sind mit Rollläden ausgestattet, und eine Gegensprechanlage sorgt für zusätzlichen Komfort. Zudem überzeugt die Immobilie mit einem guten Energierating der Klasse C (70 kWh/m²a).
Die Lage des Objekts bietet eine hervorragende Infrastruktur: Geschäfte des täglichen Bedarfs sind fußläufig erreichbar. In unmittelbarer Umgebung wurde ein großes Einfamilienhausgebiet neu erschlossen, das zur Attraktivität der Umgebung beiträgt. Die Kombination aus einer gefragten Wohnlage, einer modernen Ausstattung und einer soliden Vermietung macht dieses Wohnungspaket zu einer attraktiven Kapitalanlage.
" frisch, engagiert, solide "
Die Künne Immobilien Gruppe ist professioneller Dienstleister der Immobilienbranche und steht Ihnen in den Bereichen Projektentwicklung, Verkauf, Vermietung, Verwaltung und Facility Management zur Verfügung.
Für weitere Informationen und Einblicke besuchen Sie unsere Homepage: www.kuenne-gruppe.de Sie wollen Ihre Immobilie verkaufen? Egal ob Mehrfamilien- oder Einfamilienhaus, Eigentumswohnung, Grundstück oder Neubau- bzw. Bauträgerprojekt. Wir vermitteln kompetent, transparent und zügig Ihre Immobilie, bundesweit.
Das Gebäude selbst befindet sich in einem sehr gepflegten Zustand und wurde kürzlich einer umfassenden Hauptstrangsanierung unterzogen. Es ist mit einem Fahrstuhl ausgestattet und wird über eine moderne Fernwärmeheizung versorgt. Zur Immobilie gehören drei Tiefgaragenstellplätze sowie vier Außenstellplätze. Die Außenanlage ist ansprechend gestaltet und bietet gepflasterte Wege, einen Kinderspielplatz sowie einen gepflegten Vorgarten. Alle Fenster sind mit Rollläden ausgestattet, und eine Gegensprechanlage sorgt für zusätzlichen Komfort. Zudem überzeugt die Immobilie mit einem guten Energierating der Klasse C (70 kWh/m²a).
Die Lage des Objekts bietet eine hervorragende Infrastruktur: Geschäfte des täglichen Bedarfs sind fußläufig erreichbar. In unmittelbarer Umgebung wurde ein großes Einfamilienhausgebiet neu erschlossen, das zur Attraktivität der Umgebung beiträgt. Die Kombination aus einer gefragten Wohnlage, einer modernen Ausstattung und einer soliden Vermietung macht dieses Wohnungspaket zu einer attraktiven Kapitalanlage.
" frisch, engagiert, solide "
Die Künne Immobilien Gruppe ist professioneller Dienstleister der Immobilienbranche und steht Ihnen in den Bereichen Projektentwicklung, Verkauf, Vermietung, Verwaltung und Facility Management zur Verfügung.
Für weitere Informationen und Einblicke besuchen Sie unsere Homepage: www.kuenne-gruppe.de Sie wollen Ihre Immobilie verkaufen? Egal ob Mehrfamilien- oder Einfamilienhaus, Eigentumswohnung, Grundstück oder Neubau- bzw. Bauträgerprojekt. Wir vermitteln kompetent, transparent und zügig Ihre Immobilie, bundesweit.
Lage & Infrastruktur
Zentral gelegen, von historischem Flair durchzogen und verkehrstechnisch optimal angebunden präsentiert sich Großkugel in der Einheitsgemeinde Kabelsketal. Als charmantes Örtchen mit etwa 2.380 Einwohnern ist es idealerweise an der Bundesstraße 6 Richtung Osten von Halle aus erreichbar, nur eine kurze Fahrt entfernt von der pulsierenden Stadt und lediglich 12 Fahrminuten vom Flughafen Leipzig/Halle.
In den vergangenen Jahren erlebte die Region einen bedeutenden wirtschaftlichen Aufschwung durch die Ansiedlung renommierter Unternehmen aus den Bereichen Automobil- und Zulieferindustrie, Logistik und Chemie. Namen wie Porsche, BMW, DHL und Dell haben hier ihre Standorte, was Großkugel zu einem Knotenpunkt inmitten eines florierenden Industrie- und Wirtschaftsumfelds macht.
Trotz seiner industriellen Bedeutung bewahrt Großkugel seinen charakteristischen Charme und bietet eine Vielzahl an Annehmlichkeiten für seine Bewohner. Eine aktive Freiwillige Feuerwehr, eine gut ausgestattete Bibliothek und der engagierte Sportverein, die Sportgemeinschaft Großkugel e.V., prägen das soziale Leben im sächsischen Ortsteil.
Für Pendler ist die Anbindung optimal: Der nächste S-Bahnhof liegt nur 11 Autominuten entfernt im Zentrum von Kabelsketal. Von dort aus bestehen direkte Verbindungen nach Halle (Saale) und Leipzig über die B6. Die beiden Großstädte bieten eine breite Palette an Freizeitmöglichkeiten, von kulinarischen Entdeckungen bis hin zu kulturellen Veranstaltungen, die nur einen kurzen Ausflug entfernt sind.
In den vergangenen Jahren erlebte die Region einen bedeutenden wirtschaftlichen Aufschwung durch die Ansiedlung renommierter Unternehmen aus den Bereichen Automobil- und Zulieferindustrie, Logistik und Chemie. Namen wie Porsche, BMW, DHL und Dell haben hier ihre Standorte, was Großkugel zu einem Knotenpunkt inmitten eines florierenden Industrie- und Wirtschaftsumfelds macht.
Trotz seiner industriellen Bedeutung bewahrt Großkugel seinen charakteristischen Charme und bietet eine Vielzahl an Annehmlichkeiten für seine Bewohner. Eine aktive Freiwillige Feuerwehr, eine gut ausgestattete Bibliothek und der engagierte Sportverein, die Sportgemeinschaft Großkugel e.V., prägen das soziale Leben im sächsischen Ortsteil.
Für Pendler ist die Anbindung optimal: Der nächste S-Bahnhof liegt nur 11 Autominuten entfernt im Zentrum von Kabelsketal. Von dort aus bestehen direkte Verbindungen nach Halle (Saale) und Leipzig über die B6. Die beiden Großstädte bieten eine breite Palette an Freizeitmöglichkeiten, von kulinarischen Entdeckungen bis hin zu kulturellen Veranstaltungen, die nur einen kurzen Ausflug entfernt sind.
Sonstige Informationen
Alle Angaben sind ohne Gewähr und basieren ausschließlich auf Informationen, die uns von unserem Auftraggeber zur Verfügung gestellt wurden. Wir übernehmen keine Gewähr für die Vollständig, Richtigkeit und Aktualität dieser Angaben
Hausansicht vorne
Hausansicht vorne
Hausansicht hinten
Fußweg
Hauseingang
Treppenhaus
Aufzug
Wohnungseingangstür
Garten
Außenanlage
Außenanlage
Tiefgarage
Tiefgaragenzufahrt
Außenstellplätze
Umgebung
Schnitt
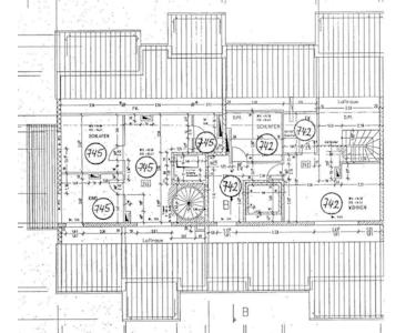
Grundriss 4.OG
Grundriss Galerie