Exposé
Objektart:
Büro / Praxen
» Miete
Standort: Büro / Praxen »
Deutschland » Nordrhein-Westfalen » Dortmund, Stadt (Kreis) » Dortmund
THE PLANT (vormals WestfalenCenter Dortmund)
Eingangshalle
Das Wichtigste auf einen Blick:
| Objektnummer: | 9327657 |
Preise
| Kaltmiete | 10,5 € |
| Nebenkosten | 4,5 € |
| Heizkosten enthalten | Ja |
| Maklerprovision Brutto | 0 € |
| Kaution | in der Regel 3 Bruttomonatsmieten |
Flächen
| Bürofläche | 3.021 m² |
| Bürofläche | 452 m² |
| Fläche teilbar ab | 452 m² |
| Maklerprovision | 0 |
Objekt Adresse
Lindemannstraße 77-81/Wittekindstr. 30-32
44137 Dortmund
Sonstige Angaben
| Letzte Modernisierung | laufend |
| Verfügbar ab | sofort bzw. nach Vereinbarung |
| Boden | Doppelboden, Laminat, Linoleum, Teppich |
| Energiepasstext | Der Energieausweis liegt zur Besichtigung vor. |
| Energieverbrauchkennwert | 102 kWh/(m²*a) |
| Heizungsart | Zentralheizung |
| Wesentlicher Energieträger | Gas-Erdwärme |
Beschreibung der Immobilie
- gepflegter und top-gemanagter Bürokomplex
- angeschlossenes Hotel der Steigenberger-Gruppe
- ca. 25.000 m² moderne und flexibel aufteilbare Bürofläche
- 5 repräsentative Eingangsbereiche
- 2 Personenaufzüge pro Eingangsbereich
- ausreichend Stellplätze in der 3-geschossigen Tiefgarage,
die ebenfalls über die Aufzüge zu erreichen ist.
- angeschlossenes Hotel der Steigenberger-Gruppe
- ca. 25.000 m² moderne und flexibel aufteilbare Bürofläche
- 5 repräsentative Eingangsbereiche
- 2 Personenaufzüge pro Eingangsbereich
- ausreichend Stellplätze in der 3-geschossigen Tiefgarage,
die ebenfalls über die Aufzüge zu erreichen ist.
Ausstattung
Die Flächen werden gemäß Mieterwunsch renoviert und aufgeteilt übergeben. DIe Preisangabe bezieht sich einen renovierten Standardausbau, Der Preis kann durch zusätzliche Mieterausbauwünsche variieren.
- flexible Raumaufteilung durch Systemtrennwände
- Hohlraumboden, dadurch einfache Verkabelung
- Verkabelung teilweise schon vorhanden
- EDV-gerechte Beleuchtung
- Bodenbelag nach Mieterwunsch
- außenliegender Sonnenschutz
- getrennte D-/H-Sanitärbereiche
- Teeküche i.d.R. vorhanden
- flexible Raumaufteilung durch Systemtrennwände
- Hohlraumboden, dadurch einfache Verkabelung
- Verkabelung teilweise schon vorhanden
- EDV-gerechte Beleuchtung
- Bodenbelag nach Mieterwunsch
- außenliegender Sonnenschutz
- getrennte D-/H-Sanitärbereiche
- Teeküche i.d.R. vorhanden
Lage & Infrastruktur
- sehr verkehrsgünstigen Anbindung
- in der Nähe der Westfalenhallen
- 2. Reihe zur B1 und zur BVB-Hauptverwaltung
- im direkten Umfeld verschiedene Hotels, das Kreuzviertel, und nicht
zu vergessen, der Signal-Iduna-Park
- Nahversorgung fußläufig erledigt werden
- in der Nähe der Westfalenhallen
- 2. Reihe zur B1 und zur BVB-Hauptverwaltung
- im direkten Umfeld verschiedene Hotels, das Kreuzviertel, und nicht
zu vergessen, der Signal-Iduna-Park
- Nahversorgung fußläufig erledigt werden
Sonstige Informationen
Folgende Mietflächen stehen im Objekt zu Verfügung:
1. OG: ca. 216 m² (Lindemannstr. 81)
2. OG: ca. 297 m² (Wittekindstr. 30)
2. OG: ca. 452 m² (Wittekindstr. 32)
2. OG: ca. 965 m² (Lindemannstr. 77-79)
4. OG: ca. 884 m² (Lindemannstr. 79 Mitte)
5. OG: ca. 207 m² (Wittekindstr. 30-32)
insgesamt: ca. 3.021 m²
Dieses Exposé wurde anhand der vom Vermieter überlassenen
Unterlagen erstellt. Für Richtigkeit und Vollständigkeit
übernehmen wir keine Gewähr. Insb. übernehmen wir keine
Gewähr für genehmigungs- und bauordnungsrechtliche
Aspekte.
Ansicht 1
Ansicht 2
Eingangshalle 2
Flur
Think Tanks
Küche
Teamfläche
Büro
Büro 4-Achser
Chefbüro
OG 4 ca. 884 m²
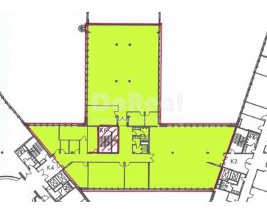
OG 2 ca. 452 m²
OG 5
OG 1 ca. 216 m²
OG 2 ca. 297 m²
OG 2 ca. 749 m²