Exposé
Objektart:
Haus
» Reihenhaus
» Kauf
Standort: Haus »
Deutschland » Bayern » Bamberg (Kreis) » Stegaurach
Reihenhaus – KfW40 QNG, Top-Förderung - Familien ab 0,01% und Kapitalanleger ab 1,31% + 5+5% Afa!
Das Wichtigste auf einen Blick:
| Objektnummer: | 9327408 |
Preise
| Kaufpreis | 365.000 € |
| Nebenkosten | keine Angabe |
Flächen
| Wohnfläche | 83,68 m² |
| Grundstücksfläche | 250 m² |
| Maklerprovision | keine Provision, courtagefrei |
Objekt Adresse
Bamberger Str. 15
96135 Stegaurach
- Bayern
Sonstige Angaben
| Baujahr | 2026 |
| Zimmer | 4 |
| Verfügbar ab | nach Absprache |
| Bad | Dusche |
| Balkone | 0 |
| Garten | Ja |
| Terrassen | 1 |
| Energieausweistyp | Bedarfsausweis |
| Energieeffizienzklasse | A |
| Endenergiebedarf | 40 kWh/(m²*a) |
Objektbeschreibung
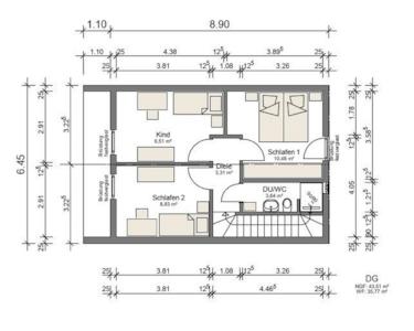
Dieses Neubauprojekt umfasst insgesamt 13 moderne Reihenhäuser in nachhaltiger Holzbauweise. Jedes Haus bietet eine Nutzfläche von 86,66 m² (ohne Terrassenfläche) und verfügt über 4 Zimmer, die sich durch einen effizienten Grundriss auszeichnen. Bei der Umsetzung kommen ausschließlich hochwertige Materialien zum Einsatz, um ein langlebiges und komfortables Zuhause zu schaffen.
Das Projekt wird nach dem KfW 40 QNG-Standard realisiert und erfüllt damit höchste Anforderungen an Energieeffizienz und Nachhaltigkeit.
Familien profitieren zusätzlich von der attraktiven Förderung über das KfW-Programm 300 Wohneigentum für Familien – Neubau, mit Finanzierungsmöglichkeiten ab 0,01% und Förderbeträgen bis zu 270.000 €.
https://www.kfw.de/inlandsfoerderung/Privatpersonen/Neubau/F%C3%B6rderprodukte/Wohneigentum-f%C3%BCr-Familien-(300)/
Kapitalanleger profitieren zusätzlich von der attraktiven Förderung über das KfW-Programm 298 Klimafreundlicher Wohnbau Wohngebäude – Neubau, mit Finanzierungsmöglichkeiten ab 1,31% und Förderbeträgen bis zu 150.000 € sowie Degressive AfA (5%) und Sonderabschreibung für QNG-Gebäude (5% p.a. für 4 Jahre).
https://www.kfw.de/inlandsfoerderung/Privatpersonen/Neubau/F%C3%B6rderprodukte/Klimafreundlicher-Neubau-Wohngeb%C3%A4ude-(297-298)/
Die Grundstücksflächen betragen jeweils ca. 250 m² und bieten ausreichend Platz für individuelle Gestaltung. Die Außenanlagen können von den Eigentümern nach eigenen Vorstellungen angelegt werden; lediglich die Zuwege im Gemeinschaftseigentum werden durch den Bauträger hergestellt. Alle weiteren Kosten wie Erschließung, Hausanschlüsse und Erdarbeiten sind bereits im Kaufpreis enthalten.
Darüber hinaus müssen von Ihnen keine weiteren Arbeiten wie Malerarbeiten, Bodenbeläge oder ähnliche Leistungen erbracht werden – die Häuser werden bezugsfertig übergeben. Einfach einziehen und wohlfühlen.
Die Fertigstellung ist für 2026 geplant, aktuell befindet sich das Projekt noch in der Planungsphase. Jetzt vormerken lassen!
Das Projekt wird nach dem KfW 40 QNG-Standard realisiert und erfüllt damit höchste Anforderungen an Energieeffizienz und Nachhaltigkeit.
Familien profitieren zusätzlich von der attraktiven Förderung über das KfW-Programm 300 Wohneigentum für Familien – Neubau, mit Finanzierungsmöglichkeiten ab 0,01% und Förderbeträgen bis zu 270.000 €.
https://www.kfw.de/inlandsfoerderung/Privatpersonen/Neubau/F%C3%B6rderprodukte/Wohneigentum-f%C3%BCr-Familien-(300)/
Kapitalanleger profitieren zusätzlich von der attraktiven Förderung über das KfW-Programm 298 Klimafreundlicher Wohnbau Wohngebäude – Neubau, mit Finanzierungsmöglichkeiten ab 1,31% und Förderbeträgen bis zu 150.000 € sowie Degressive AfA (5%) und Sonderabschreibung für QNG-Gebäude (5% p.a. für 4 Jahre).
https://www.kfw.de/inlandsfoerderung/Privatpersonen/Neubau/F%C3%B6rderprodukte/Klimafreundlicher-Neubau-Wohngeb%C3%A4ude-(297-298)/
Die Grundstücksflächen betragen jeweils ca. 250 m² und bieten ausreichend Platz für individuelle Gestaltung. Die Außenanlagen können von den Eigentümern nach eigenen Vorstellungen angelegt werden; lediglich die Zuwege im Gemeinschaftseigentum werden durch den Bauträger hergestellt. Alle weiteren Kosten wie Erschließung, Hausanschlüsse und Erdarbeiten sind bereits im Kaufpreis enthalten.
Darüber hinaus müssen von Ihnen keine weiteren Arbeiten wie Malerarbeiten, Bodenbeläge oder ähnliche Leistungen erbracht werden – die Häuser werden bezugsfertig übergeben. Einfach einziehen und wohlfühlen.
Die Fertigstellung ist für 2026 geplant, aktuell befindet sich das Projekt noch in der Planungsphase. Jetzt vormerken lassen!
Ausstattung
Terrasse, Garten, Duschbad, Gäste-WC
Bemerkungen:
Stellplatz: 5.000,00 €
Bemerkungen:
Stellplatz: 5.000,00 €
Lage des Objektes
Die Gemeinde Stegaurach mit rund 6.900 Einwohnern befindet sich im oberfränkischen Landkreis Bamberg und zählt zur Metropolregion Nürnberg. Sie liegt idyllisch im Tal der Aurach, am Fuß der Altenburg, und ist geprägt von Wiesengründen, Wasserläufen und Teichen – eine Umgebung, die Naturverbundenheit und Erholung direkt vor der Haustür ermöglicht
Infrastruktur (im Umkreis von 5 km):
Apotheke, Lebensmittel-Discount, Allgemeinmediziner, Kindergarten, Grundschule, Gesamtschule, Öffentliche Verkehrsmittel
Infrastruktur (im Umkreis von 5 km):
Apotheke, Lebensmittel-Discount, Allgemeinmediziner, Kindergarten, Grundschule, Gesamtschule, Öffentliche Verkehrsmittel
Sonstige Informationen
Makleranfragen nicht erwünscht. Nach § 7 UWG sind unaufgeforderte Kontaktaufnahmen durch Makler ohne ausdrückliche Einwilligung des Empfängers verboten!
ohne-makler (OM) ist weder Anbieter noch Vermittler der Immobilie. OM betreibt eine Plattform für Immobilieneigentümer, die unter anderem die gleichzeitige Veröffentlichung einzelner Inserate auf mehreren Immobilienportalen ermöglicht. Die Inhalte dieser Inserate werden ausschließlich von Dritten verantwortet. Für die Richtigkeit, Vollständigkeit oder Rechtmäßigkeit der Angaben übernimmt OM keine Haftung. Hinweise auf mögliche Rechtsverstöße können jederzeit gemeldet werden und werden nach Prüfung umgehend bearbeitet.