Exposé
Objektart:
Haus
» Zweifamilienhaus
» Kauf
Standort: Haus »
Deutschland » Baden-Württemberg » Main-Tauber-Kreis (Kreis) » Lauda-Königshofen
Zweifamilienhaus mit Einliegerwohnung in Königshofen
Ansicht nord-ost
Das Wichtigste auf einen Blick:
| Objektnummer: | 9327487 |
Preise
| Kaufpreis | 375.000 € |
| Nebenkosten | keine Angabe |
Flächen
| Wohnfläche | 250 m² |
| Grundstücksfläche | 682 m² |
| Maklerprovision | keine Provision, courtagefrei |
Objekt Adresse
97922 Lauda-Königshofen
- Baden-Württemberg
Sonstige Angaben
| Baujahr | 1968 |
| Zimmer | 11 |
| Verfügbar ab | sofort |
| Bad | 4 |
| Garage/Stellplätze | 3 |
| Anzahl der Etagen im Haus | 4 |
| Bad | 4 |
| Bad | Dusche, Wanne |
| Balkone | 1 |
| Garten | Ja |
| Terrassen | 0 |
| Garage/Stellplätze | 3 |
| Keller | Ja |
| Energieausweistyp | Verbrauch |
| Energieeffizienzklasse | H |
| Energieverbrauchkennwert | 319 kWh/(m²*a) |
| Heizungsart | Zentralheizung |
| Energieträger/Befeuerung | Öl |
Objektbeschreibung
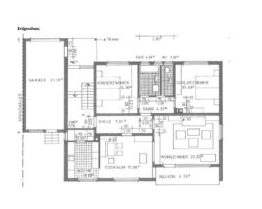
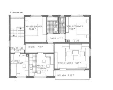
Die großzügigen Wohnzimmer und Küchen im Erdgeschoss und Obergeschoss sind nach Südwesten zum Garten ausgerichtet und bieten einen fantastischen Blick ins Tauber- und Umpfertal. Der große Garten eröffnet viele Gestaltungsmöglichkeiten für Erholungsflächen, Zier- und Nutzpflanzen.
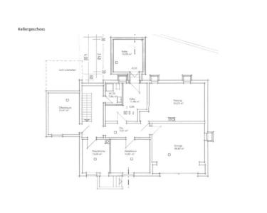
Eine geräumige Garage bietet genügend Raum für Fahrräder und Gartengeräte, zwei weitere Kfz-Stellplätze befinden sich im Kellergeschoss.
Die Wohnung im Erdgeschoss ist barrierefrei zugänglich. Die Dachgeschosswohnung wurde 1980 ausgebaut. Diese beiden Geschosse wurden bisher als räumliche Einheit mit 5 Schlafzimmern und 2 Bädern genutzt und sind ideal für eine große Familie.
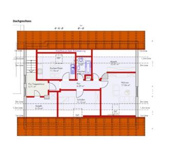
Das Dachgeschoss verfügt derzeit über ein Bad und 3 Schlafzimmer. Der Einbau einer Küche ist möglich, so dass hier eine weitere separate Wohnung abgetrennt werden kann.
Die EG- und die DG-Wohnung verfügen jeweils über 100 m² Wohnfläche, die DG- Wohnung über 50 m² Wohnfläche.
Das Gebäude ist ab Januar 2026 mietfrei.
Eine geräumige Garage bietet genügend Raum für Fahrräder und Gartengeräte, zwei weitere Kfz-Stellplätze befinden sich im Kellergeschoss.
Die Wohnung im Erdgeschoss ist barrierefrei zugänglich. Die Dachgeschosswohnung wurde 1980 ausgebaut. Diese beiden Geschosse wurden bisher als räumliche Einheit mit 5 Schlafzimmern und 2 Bädern genutzt und sind ideal für eine große Familie.
Das Dachgeschoss verfügt derzeit über ein Bad und 3 Schlafzimmer. Der Einbau einer Küche ist möglich, so dass hier eine weitere separate Wohnung abgetrennt werden kann.
Die EG- und die DG-Wohnung verfügen jeweils über 100 m² Wohnfläche, die DG- Wohnung über 50 m² Wohnfläche.
Das Gebäude ist ab Januar 2026 mietfrei.
Ausstattung
Balkon, Garten, Keller, Vollbad, Duschbad
Bemerkungen:
Das Haustürelement wurde um das Jahr 2000 modernisiert. Die Dacheindeckung wurde 2006 erneuert. 2024 wurden neue hochwertige Dachflächenfenster eingebaut.
Die technische Ausstattung (Elektro, HLS) entspricht weitgehend dem Standard des Baujahres. Aus energetischen Gründen ist eine Modernisierung der Zentralheizung empfehlenswert.
Bemerkungen:
Das Haustürelement wurde um das Jahr 2000 modernisiert. Die Dacheindeckung wurde 2006 erneuert. 2024 wurden neue hochwertige Dachflächenfenster eingebaut.
Die technische Ausstattung (Elektro, HLS) entspricht weitgehend dem Standard des Baujahres. Aus energetischen Gründen ist eine Modernisierung der Zentralheizung empfehlenswert.
Lage des Objektes
Das attraktive Zweifamilienhaus mit Einliegerwohnung im Dachgeschoss befindet sich in bester Lage in einem ruhigen Wohngebiet am Fuße des Turmbergs. Grundschule und Kindergarten sind in 200 m Entfernung erreichbar, mehrere Einkaufsmöglichkeiten für den täglichen Bedarf in 500 m Entfernung.
Infrastruktur (im Umkreis von 5 km):
Apotheke, Lebensmittel-Discount, Allgemeinmediziner, Kindergarten, Grundschule, Hauptschule, Realschule, Gymnasium, Öffentliche Verkehrsmittel
Infrastruktur (im Umkreis von 5 km):
Apotheke, Lebensmittel-Discount, Allgemeinmediziner, Kindergarten, Grundschule, Hauptschule, Realschule, Gymnasium, Öffentliche Verkehrsmittel
Sonstige Informationen
Heizungsart: Zentralheizung
Energieträger: Öl
Makleranfragen nicht erwünscht. Nach § 7 UWG sind unaufgeforderte Kontaktaufnahmen durch Makler ohne ausdrückliche Einwilligung des Empfängers verboten!
ohne-makler (OM) ist weder Anbieter noch Vermittler der Immobilie. OM betreibt eine Plattform für Immobilieneigentümer, die unter anderem die gleichzeitige Veröffentlichung einzelner Inserate auf mehreren Immobilienportalen ermöglicht. Die Inhalte dieser Inserate werden ausschließlich von Dritten verantwortet. Für die Richtigkeit, Vollständigkeit oder Rechtmäßigkeit der Angaben übernimmt OM keine Haftung. Hinweise auf mögliche Rechtsverstöße können jederzeit gemeldet werden und werden nach Prüfung umgehend bearbeitet.
Ansicht süd-ost
Ansicht süd-west
Ausblick ins Umpfertal
Ausblick Richtung Kirche
Erdgeschoss
Obergeschoss
Dachgeschoss
Kellergeschoss