Exposé
Objektart:
Wohnung
» Dachgeschoss
» Kauf
Standort: Wohnung »
Deutschland » Schleswig-Holstein » Lübeck, Hansestadt (Kreis) » Lübeck
Boho-Refugium, renoviert und mit neuer EBK – Dachgeschosswohnung im hanseatischen Stil
Luftbild mit Markierung
Das Wichtigste auf einen Blick:
| Objektnummer: | 9326072 |
Preise
| Kaufpreis | 229.000 € |
| Nebenkosten | keine Angabe |
| Hausgeld | 205 € |
Flächen
| Wohnfläche | 70 m² |
| Maklerprovision | keine Provision, courtagefrei |
Objekt Adresse
Schwartauer Allee 121
23554 Lübeck
- Schleswig-Holstein
Sonstige Angaben
| Baujahr | 1900 |
| Zimmer | 3 |
| Verfügbar ab | nach Absprache |
| Bad | 1 |
| Anzahl der Etagen im Haus | 3 |
| Inserat befindet sich im Stockwerk | 3 |
| Küche | Einbauküche |
| Bad | 1 |
| Bad | Dusche |
| Boden | Fliesen, Parkett |
| Garten | Ja |
| Keller | Ja |
| Energieausweistyp | Verbrauch |
| Energieeffizienzklasse | C |
| Energieverbrauchkennwert | 100 kWh/(m²*a) |
| Heizungsart | Etagenheizung |
| Energieträger/Befeuerung | Gas |
Objektbeschreibung
ZWISCHEN DIELEN UND GAUBEN – KREATIVES WOHNEN IN LÜBECKS ALTBAU:
Angeboten wird eine gut geschnittene, helle 70m²-Dachgeschosswohnung in einem Mehrfamilienhaus mit insgesamt 11 Parteien.
Sie verfügt über 3 gut geschnittene Zimmer sowie ein weiß-gefliestes Duschbad mit Fenster. Derzeit wird die Wohnung frisch renoviert und erhält zudem eine neue Einbauküche.
Das Gebäude aus dem Jahre 1900 ist im hanseatischen Rotklinker errichtet und verfügt über typische Altbaudetails, wie hohe Decken, ein geschwungenes, hölzernes Treppengeländer im Hausflur, Dielenböden und Kassettentüren in den Wohnungen. Die charakteristischen Gaubenfenster sorgen zudem für eine heimelige Wohnatmosphäre.
Des Weiteren gehört zum Haus ein großer, alter Garten mit gewachsenem Baumbestand, der von einer romantischen, gut erhaltenen Backsteinmauer umschlossen ist. Er steht allen Hausbewohner:innen zur gemeinschaftlichen Nutzung frei zur Verfügung.
Ein weiterer Pluspunkt: Die Wohnung verfügt über einen eigenen Spitzboden mit ca. 110m² Grundfläche, der über eine feste, „richtige“ Treppe zu erreichen ist und laut Teilungserklärung ausschließlich dieser Wohnung zugeordnet wird.
Außerdem wurde eine neuwertige Gaskombi-Heizwerttherme der Marke Junkers im Jahr 2023 installiert.
Zu jeder Wohneinheit gehört ein separater, abschließbarer Kellerraum.
Das monatliche Wohngeld beträgt 205,00 €
Kaufpreis: 229.000,00 € (provisionsfrei)
Angeboten wird eine gut geschnittene, helle 70m²-Dachgeschosswohnung in einem Mehrfamilienhaus mit insgesamt 11 Parteien.
Sie verfügt über 3 gut geschnittene Zimmer sowie ein weiß-gefliestes Duschbad mit Fenster. Derzeit wird die Wohnung frisch renoviert und erhält zudem eine neue Einbauküche.
Das Gebäude aus dem Jahre 1900 ist im hanseatischen Rotklinker errichtet und verfügt über typische Altbaudetails, wie hohe Decken, ein geschwungenes, hölzernes Treppengeländer im Hausflur, Dielenböden und Kassettentüren in den Wohnungen. Die charakteristischen Gaubenfenster sorgen zudem für eine heimelige Wohnatmosphäre.
Des Weiteren gehört zum Haus ein großer, alter Garten mit gewachsenem Baumbestand, der von einer romantischen, gut erhaltenen Backsteinmauer umschlossen ist. Er steht allen Hausbewohner:innen zur gemeinschaftlichen Nutzung frei zur Verfügung.
Ein weiterer Pluspunkt: Die Wohnung verfügt über einen eigenen Spitzboden mit ca. 110m² Grundfläche, der über eine feste, „richtige“ Treppe zu erreichen ist und laut Teilungserklärung ausschließlich dieser Wohnung zugeordnet wird.
Außerdem wurde eine neuwertige Gaskombi-Heizwerttherme der Marke Junkers im Jahr 2023 installiert.
Zu jeder Wohneinheit gehört ein separater, abschließbarer Kellerraum.
Das monatliche Wohngeld beträgt 205,00 €
Kaufpreis: 229.000,00 € (provisionsfrei)
Ausstattung
Garten, Keller, Duschbad, Einbauküche, Parkett, Fliesen
Bemerkungen:
Dielenböden
- neue EBK
- weißes Vollbad mit Fenster
- Holztüren
- Keller
- ausbaufähiger Spitzboden
- Gemeinschaftsgarten
Bemerkungen:
Dielenböden
- neue EBK
- weißes Vollbad mit Fenster
- Holztüren
- Keller
- ausbaufähiger Spitzboden
- Gemeinschaftsgarten
Lage des Objektes
In unmittelbarer Nähe befinden sich Lebensmittel-Discounter, Apotheken, Kindergärten, Schulen und Sportvereine. Ebenso ist die Innenstadt Lübecks mit dem öffentlichen Nahverkehr schnell und einfach zu erreichen. Eine Bushaltestelle befindet sich direkt vor der Haustür.
Lübeck ist eine alte, gut erhaltene Hansestadt und liegt nur ca. 65 Kilometer von Hamburg entfernt.
Ihre zauberhafte Altstadt, die auf einer Insel in der Trave liegt, gehört zum UNESCO-Welterbe. Zudem besitzt Lübeck ein reiches und vielfältiges Kulturangebot und ist auch mit seinem Buddenbrookhaus in der Mengestraße 4 sowie der traditionsreichen Niederegger-Marzipanmanufaktur weltberühmt.
Infrastruktur (im Umkreis von 5 km):
Apotheke, Lebensmittel-Discount, Allgemeinmediziner, Kindergarten, Grundschule, Hauptschule, Realschule, Gymnasium, Gesamtschule, Öffentliche Verkehrsmittel
Lübeck ist eine alte, gut erhaltene Hansestadt und liegt nur ca. 65 Kilometer von Hamburg entfernt.
Ihre zauberhafte Altstadt, die auf einer Insel in der Trave liegt, gehört zum UNESCO-Welterbe. Zudem besitzt Lübeck ein reiches und vielfältiges Kulturangebot und ist auch mit seinem Buddenbrookhaus in der Mengestraße 4 sowie der traditionsreichen Niederegger-Marzipanmanufaktur weltberühmt.
Infrastruktur (im Umkreis von 5 km):
Apotheke, Lebensmittel-Discount, Allgemeinmediziner, Kindergarten, Grundschule, Hauptschule, Realschule, Gymnasium, Gesamtschule, Öffentliche Verkehrsmittel
Sonstige Informationen
Heizungsart: Etagenheizung
Energieträger: Gas
HAFERKAMP GMBH
Strandallee 11
23683 Scharbeutz (Haffkrug)
Telefon: 04563 / 423998-0
Fax: 04563 / 423998-9
E-Mail: info(at)haferkamp-grundbesitz.de
Geschäftsführer: Jens-Hendrik Haferkamp
Amtsgericht Lübeck HRB 23030 HL
Ust-IdNr.: DE304113136
Haferkamp Grundbesitz ist eine Geschäftsbezeichnung der Haferkamp GmbH.
Erlaubnispflichtige Tätigkeit nach § 34c Abs. 1 der Gewerbeordnung
Aufsichtsbehörde:
Gemeinde Scharbeutz (Gewerbeamt) · Am Bürgerhaus 2, 23683 Scharbeutz
Haferkamp Grundbesitz ist eine Geschäftsbezeichnung der Haferkamp GmbH
Inhaltlich Verantwortlicher gemäß § 6 MDStV:
Jens-Hendrik Haferkamp
Makleranfragen unerwünscht! Nach § 7 UWG sind unaufgeforderte Kontaktaufnahmen durch Makler ohne ausdrückliche Einwilligung des Empfängers verboten!
Makleranfragen nicht erwünscht. Nach § 7 UWG sind unaufgeforderte Kontaktaufnahmen durch Makler ohne ausdrückliche Einwilligung des Empfängers verboten!
ohne-makler (OM) ist weder Anbieter noch Vermittler der Immobilie. OM betreibt eine Plattform für Immobilieneigentümer, die unter anderem die gleichzeitige Veröffentlichung einzelner Inserate auf mehreren Immobilienportalen ermöglicht. Die Inhalte dieser Inserate werden ausschließlich von Dritten verantwortet. Für die Richtigkeit, Vollständigkeit oder Rechtmäßigkeit der Angaben übernimmt OM keine Haftung. Hinweise auf mögliche Rechtsverstöße können jederzeit gemeldet werden und werden nach Prüfung umgehend bearbeitet.
Schlafzimmer
Duschbad - 1
Duschbad- 2
Wohnzimmer
Diele 1
Diele 2
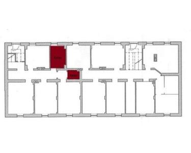
Grundriss Whg.
Grundriss Keller