Exposé
Objektart:
Haus
» Bungalow
» Kauf
Standort: Haus »
Deutschland » Sachsen » Weißeritzkreis (Kreis) » Bannewitz
Ihr neuer Bungalow mit viel Platz zum Bewegen
Bungalow Gartenansicht
Das Wichtigste auf einen Blick:
| Objektnummer: | 9325845 |
Preise
| Kaufpreis | 533.395 € |
| Nebenkosten | keine Angabe |
Flächen
| Wohnfläche | 107 m² |
| Nutzfläche | 107 m² |
| Grundstücksfläche | 830 m² |
Objekt Adresse
01728 Bannewitz
Sonstige Angaben
| Baujahr | 2027 |
| Zimmer | 3 |
| Verfügbar ab | keine Angabe |
| Bad | 1 |
| Anzahl der Etagen im Haus | 1 |
| Küche | Offene Küche |
| Bad | 1 |
| Bad | Dusche, Wanne, Fenster |
| Energietyp | KfW-40 |
| Energieträger/Befeuerung | Luft-Wärme-Pumpe |
Objektbeschreibung
Bungalow mit Satteldach mit flexiblem Raumkonzept
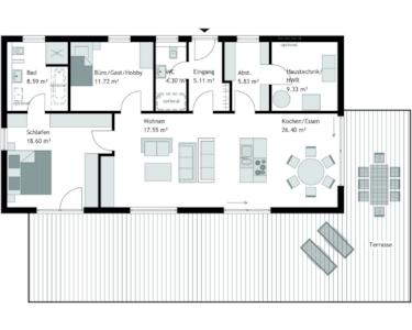
Entdecken Sie die Möglichkeiten, Ihr Traumhaus als Bungalow mit einem Satteldach zu realisieren und erleben Sie eine zeitgemäße Architektur gepaart mit einem einzigartigen Raumkonzept. Der Wohn-/Ess- und Kochbereich erstreckt sich über großzügige 44 m² und bietet höchsten Komfort. Eine halbhohe Wand, die optional auch raumhoch sein kann, trennt geschickt den Koch- vom Wohnbereich und schafft so eine harmonische Balance zwischen gemeinsamen Beisammensein und klarer Struktur. Große Panoramafenster sowie eine geräumige Panorama-Hebeschiebetür sorgen für ein helles und offenes Ambiente, das Innen- und Außenbereich harmonisch miteinander verbindet. Der Schlafbereich überzeugt mit großzügiger Stellfläche für Schränke und einem direkten Zugang zum geräumigen Badezimmer. Ein zusätzlicher Raum, flexibel als Büro, Gäste- oder Hobbyraum nutzbar, sowie ein zweites Badezimmer mit optionaler Dusche, runden das Raumangebot ab. Auf Anfrage kann der Grundriss des Bungalows auch barrierefrei gestaltet werden, um allen individuellen Bedürfnissen gerecht zu werden.
Entdecken Sie die Möglichkeiten, Ihr Traumhaus als Bungalow mit einem Satteldach zu realisieren und erleben Sie eine zeitgemäße Architektur gepaart mit einem einzigartigen Raumkonzept. Der Wohn-/Ess- und Kochbereich erstreckt sich über großzügige 44 m² und bietet höchsten Komfort. Eine halbhohe Wand, die optional auch raumhoch sein kann, trennt geschickt den Koch- vom Wohnbereich und schafft so eine harmonische Balance zwischen gemeinsamen Beisammensein und klarer Struktur. Große Panoramafenster sowie eine geräumige Panorama-Hebeschiebetür sorgen für ein helles und offenes Ambiente, das Innen- und Außenbereich harmonisch miteinander verbindet. Der Schlafbereich überzeugt mit großzügiger Stellfläche für Schränke und einem direkten Zugang zum geräumigen Badezimmer. Ein zusätzlicher Raum, flexibel als Büro, Gäste- oder Hobbyraum nutzbar, sowie ein zweites Badezimmer mit optionaler Dusche, runden das Raumangebot ab. Auf Anfrage kann der Grundriss des Bungalows auch barrierefrei gestaltet werden, um allen individuellen Bedürfnissen gerecht zu werden.
Ausstattung
Das Streif City Haus wird im Standard KFW 40 PLUS ausgeführt. KfW Effizienshaus inkl. Haustechnik aus dem STREIF-Programm in der Ausbaustufe FF+ inklusive einer gedämmten Fundamentplatte.
■ Rohbau (geschlossene Gebäudehülle) mit Fenstern, Haustür, Dacheindeckung
■ Außenfassade inkl. Außenputz, vor Ort komplett fertiggestellt
■ Komplette Blechner-/Spenglerarbeiten
■ lnnen-/Außenwände wärme- und schallgedämmt und mit Gipsfaserplatten geschlossen
■ Geschosstreppe (außer Bungalow)
■ Decken wärme- und schallgedämmt und mit Gipskarton Bauplatten geschlossen
■ Elektroinstallation, einschließlich erforderlichem Zählerschrank und Inbetriebnahme
■ Heizungsanlage inkl. Inbetriebnahme
■ Innenfensterbänke Kunststeinbänke (Gussmarmorbänke) inkl. Einbau
■ Estrich
■ Sanitärräume mit Wand- und Bodenfliesen
■ Sanitärräume mit Sanitärobjekten
■ 6,23 kWp Photovoltaikanlage und 7,7 kWh Speicher
Die Innentüren sowie Wand-, Decken- und Bodenbeläge der übrigen Räume sind Eigenleistungen des Bauherren.
STREIF Frischluft-Wärmepumpen-Technologie - inklusive
- Heizen mit frischer Außenluft
- Kein Gasanschluss, kein Öl- oder Pelletlagerraum
- Keine Heizkörper
- Wärmetauscher mit bis zu 85% Wärmerückgewinnung
Die dargestellten Bilder können Sonderausstattungen beinhalten, die nicht im Preis enthalten sind!
zzgl. Ortüblicher Baunebenkosten
Selbstverständlich können wir Ihr Haus auch schlüsselfertig / bezugsfertig errichten.
■ Bodenbeläge, Sockelleisten verlegt
■ Maler- und Tapezierarbeiten
■ Innentüren inkl. Einbau
■ Rohbau (geschlossene Gebäudehülle) mit Fenstern, Haustür, Dacheindeckung
■ Außenfassade inkl. Außenputz, vor Ort komplett fertiggestellt
■ Komplette Blechner-/Spenglerarbeiten
■ lnnen-/Außenwände wärme- und schallgedämmt und mit Gipsfaserplatten geschlossen
■ Geschosstreppe (außer Bungalow)
■ Decken wärme- und schallgedämmt und mit Gipskarton Bauplatten geschlossen
■ Elektroinstallation, einschließlich erforderlichem Zählerschrank und Inbetriebnahme
■ Heizungsanlage inkl. Inbetriebnahme
■ Innenfensterbänke Kunststeinbänke (Gussmarmorbänke) inkl. Einbau
■ Estrich
■ Sanitärräume mit Wand- und Bodenfliesen
■ Sanitärräume mit Sanitärobjekten
■ 6,23 kWp Photovoltaikanlage und 7,7 kWh Speicher
Die Innentüren sowie Wand-, Decken- und Bodenbeläge der übrigen Räume sind Eigenleistungen des Bauherren.
STREIF Frischluft-Wärmepumpen-Technologie - inklusive
- Heizen mit frischer Außenluft
- Kein Gasanschluss, kein Öl- oder Pelletlagerraum
- Keine Heizkörper
- Wärmetauscher mit bis zu 85% Wärmerückgewinnung
Die dargestellten Bilder können Sonderausstattungen beinhalten, die nicht im Preis enthalten sind!
zzgl. Ortüblicher Baunebenkosten
Selbstverständlich können wir Ihr Haus auch schlüsselfertig / bezugsfertig errichten.
■ Bodenbeläge, Sockelleisten verlegt
■ Maler- und Tapezierarbeiten
■ Innentüren inkl. Einbau
Lage des Objektes
Bannewitz ist eine Gemeinde im Landkreis Dresden in Sachsen, die sich etwa 10 Kilometer südlich von der sächsischen Landeshauptstadt Dresden befindet. Die Gemeinde liegt malerisch am Fuße des Erzgebirges und ist von einer reizvollen Landschaft mit Wäldern, Wiesen und Feldern umgeben, die zahlreiche Möglichkeiten für Freizeitaktivitäten im Freien bieten, wie Wandern und Radfahren.
Die Anbindung an das Verkehrsnetz ist sehr gut. Bannewitz ist über die Bundesstraße B173 erreichbar, die eine direkte Verbindung nach Dresden und in die umliegenden Regionen bietet. Zudem gibt es eine gute Anbindung an den öffentlichen Nahverkehr, was die Erreichbarkeit der Stadt und der Umgebung erleichtert.
Bannewitz selbst hat eine ruhige, ländliche Atmosphäre und bietet eine Vielzahl von Wohnmöglichkeiten, die besonders für Familien attraktiv sind. Die Gemeinde verfügt über grundlegende Infrastrukturangebote wie Einkaufsmöglichkeiten, Schulen und medizinische Einrichtungen. Zudem gibt es in der Umgebung zahlreiche Freizeitmöglichkeiten, darunter Sportvereine und kulturelle Veranstaltungen.
Insgesamt bietet Bannewitz eine gelungene Kombination aus ländlicher Idylle, guter Erreichbarkeit zur Stadt Dresden und einem freundlichen Gemeinschaftsleben, was es zu einem attraktiven Wohnort macht.
Die Anbindung an das Verkehrsnetz ist sehr gut. Bannewitz ist über die Bundesstraße B173 erreichbar, die eine direkte Verbindung nach Dresden und in die umliegenden Regionen bietet. Zudem gibt es eine gute Anbindung an den öffentlichen Nahverkehr, was die Erreichbarkeit der Stadt und der Umgebung erleichtert.
Bannewitz selbst hat eine ruhige, ländliche Atmosphäre und bietet eine Vielzahl von Wohnmöglichkeiten, die besonders für Familien attraktiv sind. Die Gemeinde verfügt über grundlegende Infrastrukturangebote wie Einkaufsmöglichkeiten, Schulen und medizinische Einrichtungen. Zudem gibt es in der Umgebung zahlreiche Freizeitmöglichkeiten, darunter Sportvereine und kulturelle Veranstaltungen.
Insgesamt bietet Bannewitz eine gelungene Kombination aus ländlicher Idylle, guter Erreichbarkeit zur Stadt Dresden und einem freundlichen Gemeinschaftsleben, was es zu einem attraktiven Wohnort macht.
Sonstige Informationen
Sie brauchen einen kompetenten und verlässlichen Baupartner? Wir stehen Ihnen von Anfang an zur Seite und begleiten Sie auf dem Weg in Ihr Eigenheim.
Mit großem Engagement, Persönlichkeit und der Fachfirma STREIF mit immensen Bau-Know-how, die seit 1929 auf über 90.000 realisierte Wohnträume zurückblicken kann.
Jedes Haus von STREIF wird individuell als Energiesparhaus geplant und gebaut. Eine nachhaltige, ökologische und wohngesunde Bauweise, eine zertifizierte Ausführungsqualität und eine kurze Bauzeit, dafür stehen wir.
Gerne beraten wir Sie nach Vereinbarung im Musterhaus Dresden Schönefeld oder ganz unkompliziert bei Ihnen zu Hause und erstellen Ihnen ein Angebot mit einer realistisch ermittelten Aufstellung der Gesamt-Investition.
Wir freuen uns auf Ihren Anruf / Nachricht!
Ihr STREIF Fachberater
Frank Strobel
E-Mail: frank.strobel@streif.de
Mobil: 0172 - 9374300
Hinweis:
Vorverkauf und Irrtümer vorbehalten. Bilder können Sonderbauteile darstellen, die im Preis nicht enthalten sind und abweichend von textlichen Inhalten sein.
zzgl. Baunebenkosten.
Der Grundstückserwerb stellt keine STREIF Leistung dar.
Hinweis zu den gesetzlichen Pflichtangaben gemäß der EnEV 2016: Bei dem hier angebotenen Haus handelt es sich um ein Neubauprojekt.
Wir weisen darauf hin, dass zu diesem projektierten Haus noch kein Energieausweis vorliegt. Der Energieausweis wird Ihnen spätestens im Rahmen der Erstellung des Objektes ausgehändigt
Grundriss Erdgeschoss
Frank Strobel
Essbereich grau
Bad weiß
Küche hochglanz
Gäste WC
Fairste Kundenkommunikation
Fairste Produktleistung
Bonitätszertifikat - Kopie
BIRN Bau Institut
Bonitätszertifikat
Musterhaus Dresden
Musterhaus Seite
QR-Code