Exposé
Objektart:
Einzelhandel
» Ladenlokal
» Kauf
Standort: Einzelhandel »
Deutschland » Nordrhein-Westfalen » Mettmann (Kreis) » Haan
Ladenlokal in gefragter Stadtlage
Büro/Besprechung
Das Wichtigste auf einen Blick:
| Objektnummer: | 9324162 |
Preise
| Kaufpreis | 135.000 € |
| Nebenkosten | keine Angabe |
Flächen
| Gesamtfläche | 54 m² |
| Maklerprovision | 3,57 % vom Kaufpreis (inkl. MwSt.) |
Objekt Adresse
42781 Haan
Sonstige Angaben
| Baujahr | 1991 |
| Zimmer | 2 |
| Verfügbar ab | keine Angabe |
| Energieausweistyp | Verbrauch |
| Gültig bis | 2028-06-20 |
| Baujahr (laut Energieausweis) | 1991 |
| Energieeffizienzklasse | E |
| Energieverbrauchkennwert | 135.50 kWh/(m²*a) |
| Heizungsart | Zentralheizung |
| Wesentlicher Energieträger | Gas |
| Energieträger/Befeuerung | Gas |
Beschreibung der Immobilie
Bei diesem Angebot handelt es sich um ein erst im Januar 2025 modernisiertes Ladenlokal im Erdgeschoss in zentraler Lage.
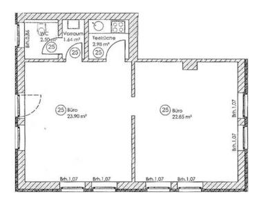
Der eigene Eingang sorgt für Komfort. Insgesamt stehen ca. 54 m² Gewerbefläche, aufgeteilt auf zwei Räume, Teeküche und WC zur Verfügung.
Der graue Bodenbelag in Kombination mit den weißen Wänden und den Sprossenfenstern schafft eine klare, zeitlose Atmosphäre.
Ein dazugehöriger Außenstellplatz ist inklusive.
Die Einheit ist aktuell vermietet.
Der eigene Eingang sorgt für Komfort. Insgesamt stehen ca. 54 m² Gewerbefläche, aufgeteilt auf zwei Räume, Teeküche und WC zur Verfügung.
Der graue Bodenbelag in Kombination mit den weißen Wänden und den Sprossenfenstern schafft eine klare, zeitlose Atmosphäre.
Ein dazugehöriger Außenstellplatz ist inklusive.
Die Einheit ist aktuell vermietet.
Ausstattung
- Modernisiert im Januar 2025
- Zwei Räume
- Teeküche
- WC
- Zwei Räume
- Teeküche
- WC
Lage & Infrastruktur
Nur wenige Kilometer östlich von Düsseldorf, am Fuß des Bergischen Landes, liegt die Gartenstadt Haan mit ca. 30.000 Einwohnern. Denkmalgeschützte Häuser, liebevoll gepflegte Gärten und öffentliche Grünanlagen prägen das Bild der Stadt.
Die Haaner Altstadt verbreitet nostalgisches Flair, das Warenangebot ist reichlich. Der Neue Markt und die Innenstadt sind nur zehn Gehminuten entfernt.
Dazu sind die Verkehrsverbindungen bestens. In weniger als fünf Minuten erreichen Sie die Autobahn A 46 und sind somit schnell in Düsseldorf, Köln und Wuppertal.
Bushaltestellen der Linien 784, 786 und 792 befinden sich praktisch um die Ecke. Der Bahnhof mit der RB 48 Richtung Köln, Wuppertal und Ruhrgebiet ist nur wenige hundert Meter entfernt.
Dieses Ladenlokal liegt an Haans Hauptgeschäftstraße an der Verbindung zwischen Hilden und Wuppertal. Täglich fahren auf der Bahnhofstraße unzählige Autos an den Geschäftslokalen vorbei.
Die Haaner Altstadt verbreitet nostalgisches Flair, das Warenangebot ist reichlich. Der Neue Markt und die Innenstadt sind nur zehn Gehminuten entfernt.
Dazu sind die Verkehrsverbindungen bestens. In weniger als fünf Minuten erreichen Sie die Autobahn A 46 und sind somit schnell in Düsseldorf, Köln und Wuppertal.
Bushaltestellen der Linien 784, 786 und 792 befinden sich praktisch um die Ecke. Der Bahnhof mit der RB 48 Richtung Köln, Wuppertal und Ruhrgebiet ist nur wenige hundert Meter entfernt.
Dieses Ladenlokal liegt an Haans Hauptgeschäftstraße an der Verbindung zwischen Hilden und Wuppertal. Täglich fahren auf der Bahnhofstraße unzählige Autos an den Geschäftslokalen vorbei.
Sonstige Informationen
Eine rentable Kapitalanlage in vermietungssicherer Lage. Solide verwaltet, erzielen Sie hier bequem und verwaltungsarm eine Mietrendite von 6,49 %.
Die gute Sichtlage sorgt für eine hohe Kundenfrequenz und wird auch zukünftig für gute Umsätze und einen wertstabilen Standort sorgen.
Energieausweis: Verbrauch – 135,5 kWh – E – Erdgas – Baujahr 1991
Büro/Besprechung
Büro/Besprechung
Teeküche
WC
Grundriss