Exposé
Objektart:
Wohnung
» Maisonette
» Kauf
Standort: Wohnung »
Deutschland » Baden-Württemberg » Ludwigsburg (Kreis) » Affalterbach
Großzügige 4,5-Zimmer Wohnung mit großem Balkon
Hauseingang
Das Wichtigste auf einen Blick:
| Objektnummer: | 9320405 |
Preise
| Kaufpreis | 740.000 € |
| Nebenkosten | keine Angabe |
| Hausgeld | 413 € |
Flächen
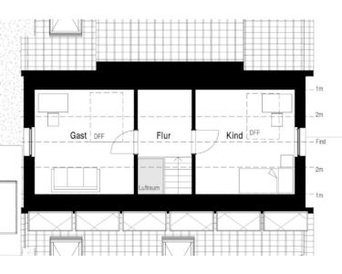
| Wohnfläche | 118 m² |
| Maklerprovision | keine Provision, courtagefrei |
Objekt Adresse
Bogenstraße 13
71563 Affalterbach
- Baden-Württemberg
Sonstige Angaben
| Baujahr | 2025 |
| Zimmer | 4,5 |
| Verfügbar ab | sofort |
| Bad | 2 |
| Anzahl der Etagen im Haus | 3 |
| Inserat befindet sich im Stockwerk | 2 |
| Bad | 2 |
| Bad | Dusche, Wanne |
| Boden | Fliesen, Parkett |
| Balkone | 1 |
| Terrassen | 0 |
| Fahrstuhl | Ja |
| Keller | Ja |
| Energieausweistyp | Bedarfsausweis |
| Energieeffizienzklasse | A+ |
| Endenergiebedarf | 8 kWh/(m²*a) |
| Heizungsart | Fußbodenheizung |
| Energieträger/Befeuerung | Luft-Wärme-Pumpe |
Objektbeschreibung
Das Mehrfamilienhaus wurde in Holz-Hybridbauweise gefertigt. Besonders hervorzuheben ist der hohe Energiestandard des Gebäudes, verbunden mit der Wahl von ökologischen Baustoffen - dies sorgt nicht nur für spürbar niedrige Energiekosten und ein gesundes, warmes Wohnklima, sondern schont zudem unsere Umwelt.
Beim Kauf einer klimafreundlichen Wohnung haben Sie die Möglichkeit, von der staatlichen Förderung der KfW-Bank zu profitieren–die Förderung erfolgt in Form
eines attraktiven, zinsvergünstigten Kredits in Höhe von 100.000€ je Wohnung.
Beim Kauf einer klimafreundlichen Wohnung haben Sie die Möglichkeit, von der staatlichen Förderung der KfW-Bank zu profitieren–die Förderung erfolgt in Form
eines attraktiven, zinsvergünstigten Kredits in Höhe von 100.000€ je Wohnung.
Ausstattung
Balkon, Keller, Fahrstuhl, Vollbad, Duschbad, Gäste-WC, Parkett, Fliesen
Bemerkungen:
Schlüsselfertig und individuell.
Dieses moderne Mehrfamilienhaus besticht durch seine Architektur sowie durch seine hochwertige Ausstattung und Funktionalität. Ein Aufzug bringt Sie von der Tiefgarage zu Ihrer Wohnung. Für Stauraum sorgt ein großzügiger privater Abstellraum im Untergeschoss (ca. 10m²). Waschmaschinen-und Trockneranschlüsse finden Sie direkt im Abstellraum und in Ihrer Wohnung. Dieses 4,5-Zimmer-Wohnung ist mit zwei Bädern ausgestattet. Alle Wohnungen sind mit großzügigen offenen Wohn-Essbereichen geplant.
Ein zentraler Treffpunkt im Grünen sowohl für Kinder als auch Erwachsene der Hausgemeinschaft befindet sich direkt auf dem Grundstück, abgewandt von den Balkonen und Terrassen.
Zur exklusiven Ausstattung zählen hochwertige Holzparkettböden in den Wohnräumen und Designfliesen in den Bädern. Hohe sichtbare Massivholzdecken sowie weiße Innentüren schaffen die Grundlage für Ihren persönlichen
Wohlfühlort. Großflächige Fensterelemente in Holz-Aluminium mit Dreifachverglasung und elektrischen Rollläden bzw. Jalousien durchfluten die Räume mit viel Licht und sorgen für ein freundliches und warmes Wohngefühl. Moderne Sanitärausstattungen mit Handtuch-heizkörpern und bodenebenen Duschen vervollständigen die Tageslichtbäder der Wohnung. Kalte FüßegehörendankderFußbodenheizungderVergangenheitan.
DieSonnekönnenSieaufIhremprivatenBalkonoderaufIhrerprivatenTerrasse
genießen,umgebenvonattraktivangelegtenAußenanlagen.
Besichtigungstermine sind jederzeit möglich!
Bemerkungen:
Schlüsselfertig und individuell.
Dieses moderne Mehrfamilienhaus besticht durch seine Architektur sowie durch seine hochwertige Ausstattung und Funktionalität. Ein Aufzug bringt Sie von der Tiefgarage zu Ihrer Wohnung. Für Stauraum sorgt ein großzügiger privater Abstellraum im Untergeschoss (ca. 10m²). Waschmaschinen-und Trockneranschlüsse finden Sie direkt im Abstellraum und in Ihrer Wohnung. Dieses 4,5-Zimmer-Wohnung ist mit zwei Bädern ausgestattet. Alle Wohnungen sind mit großzügigen offenen Wohn-Essbereichen geplant.
Ein zentraler Treffpunkt im Grünen sowohl für Kinder als auch Erwachsene der Hausgemeinschaft befindet sich direkt auf dem Grundstück, abgewandt von den Balkonen und Terrassen.
Zur exklusiven Ausstattung zählen hochwertige Holzparkettböden in den Wohnräumen und Designfliesen in den Bädern. Hohe sichtbare Massivholzdecken sowie weiße Innentüren schaffen die Grundlage für Ihren persönlichen
Wohlfühlort. Großflächige Fensterelemente in Holz-Aluminium mit Dreifachverglasung und elektrischen Rollläden bzw. Jalousien durchfluten die Räume mit viel Licht und sorgen für ein freundliches und warmes Wohngefühl. Moderne Sanitärausstattungen mit Handtuch-heizkörpern und bodenebenen Duschen vervollständigen die Tageslichtbäder der Wohnung. Kalte FüßegehörendankderFußbodenheizungderVergangenheitan.
DieSonnekönnenSieaufIhremprivatenBalkonoderaufIhrerprivatenTerrasse
genießen,umgebenvonattraktivangelegtenAußenanlagen.
Besichtigungstermine sind jederzeit möglich!
Lage des Objektes
Affalterbach als Wohnort –ein Mix aus Stadt und Land.
Am Fuße des Lembergs befindet sich die idyllische Gemeinde Affalterbach mit rund 4.500 Einwohnern. Sie ist Teil des Landkreises Ludwigsburg in Baden-Württemberg und trotz ihrer Lage inmitten landschaftlich reizvoller Natur äußerst verkehrsgünstig gelegen.
Sowohl mit den öffentlichen Verkehrsmitteln als auch mit dem Auto können umliegende Städte wie Winnenden, Ludwigsburg und Marbach am Neckar in Kürze erreicht werden. Die Nähe zur A81 und B14 ermöglicht zudem ein schnelles Erreichen größerer Städte wie Heilbronn oder der Landeshauptstadt Stuttgart.
Affalterbach vereint die Vorzüge einer ländlichen Lage mit denen einer Stadt: Einkaufsmöglichkeiten einschließlich regionaler Biohofläden, Banken, Post, Arztpraxen sowie eine Grundschule und Kindergärten befinden sich direkt im Ort. Das Gewerbegebiet mit seinen teilweise international tätigen Firmen bietet attraktive Arbeitsplätze.
Die Gemeinde sorgt mit ihren verschiedenen Vereinen für eine abwechslungsreiche Freizeitgestaltung. Für sportliche Aktivitätenstehen Spielfelder für Ballsportarten, leichtathletische Anlagen und Kinderspielmöglichkeiten zur Verfügung. Aber auch die Natur um Affalterbach eignet sich bestens zur Naherholung: Der Lemberg lädt zu Spaziergängen und zum Radfahren durch Wald und Weinberge ein, in wenigen Minuten gelangt man in das idyllische Buchenbachtal.
Um den Abend ausklingen zulassen, bietet sich ein Besuch in einer der verschiedenen Gaststätten an.
Infrastruktur (im Umkreis von 5 km):
Apotheke, Lebensmittel-Discount, Allgemeinmediziner, Kindergarten, Grundschule, Öffentliche Verkehrsmittel
Am Fuße des Lembergs befindet sich die idyllische Gemeinde Affalterbach mit rund 4.500 Einwohnern. Sie ist Teil des Landkreises Ludwigsburg in Baden-Württemberg und trotz ihrer Lage inmitten landschaftlich reizvoller Natur äußerst verkehrsgünstig gelegen.
Sowohl mit den öffentlichen Verkehrsmitteln als auch mit dem Auto können umliegende Städte wie Winnenden, Ludwigsburg und Marbach am Neckar in Kürze erreicht werden. Die Nähe zur A81 und B14 ermöglicht zudem ein schnelles Erreichen größerer Städte wie Heilbronn oder der Landeshauptstadt Stuttgart.
Affalterbach vereint die Vorzüge einer ländlichen Lage mit denen einer Stadt: Einkaufsmöglichkeiten einschließlich regionaler Biohofläden, Banken, Post, Arztpraxen sowie eine Grundschule und Kindergärten befinden sich direkt im Ort. Das Gewerbegebiet mit seinen teilweise international tätigen Firmen bietet attraktive Arbeitsplätze.
Die Gemeinde sorgt mit ihren verschiedenen Vereinen für eine abwechslungsreiche Freizeitgestaltung. Für sportliche Aktivitätenstehen Spielfelder für Ballsportarten, leichtathletische Anlagen und Kinderspielmöglichkeiten zur Verfügung. Aber auch die Natur um Affalterbach eignet sich bestens zur Naherholung: Der Lemberg lädt zu Spaziergängen und zum Radfahren durch Wald und Weinberge ein, in wenigen Minuten gelangt man in das idyllische Buchenbachtal.
Um den Abend ausklingen zulassen, bietet sich ein Besuch in einer der verschiedenen Gaststätten an.
Infrastruktur (im Umkreis von 5 km):
Apotheke, Lebensmittel-Discount, Allgemeinmediziner, Kindergarten, Grundschule, Öffentliche Verkehrsmittel
Sonstige Informationen
Heizungsart: Fußbodenheizung
Energieträger: Luft-/Wasserwärme
Makleranfragen nicht erwünscht. Nach § 7 UWG sind unaufgeforderte Kontaktaufnahmen durch Makler ohne ausdrückliche Einwilligung des Empfängers verboten!
ohne-makler (OM) ist weder Anbieter noch Vermittler der Immobilie. OM betreibt eine Plattform für Immobilieneigentümer, die unter anderem die gleichzeitige Veröffentlichung einzelner Inserate auf mehreren Immobilienportalen ermöglicht. Die Inhalte dieser Inserate werden ausschließlich von Dritten verantwortet. Für die Richtigkeit, Vollständigkeit oder Rechtmäßigkeit der Angaben übernimmt OM keine Haftung. Hinweise auf mögliche Rechtsverstöße können jederzeit gemeldet werden und werden nach Prüfung umgehend bearbeitet.
Gast
Kind
Galerie
Balkon
Balkon
Dusche
Küche
Wohnbereich
Diele
Bad
Treppenhaus
Abstellraum
Tiefgaragenstellplätze
Tiefgaragenstellplätze
DG
GG