Exposé
Objektart:
Wohnung
» Maisonette
» Kauf
Standort: Wohnung »
Deutschland » Bayern » Erlangen, Stadt (Kreis) » Erlangen
** Provisionsfrei ** Hochwertige Maisonette (Garten, Sauna & Heimkino) mit Reiheneckhaus-Flair
Außenansicht Nordwestseite
Das Wichtigste auf einen Blick:
| Objektnummer: | 9320184 |
Preise
| Kaufpreis | 725.000 € |
| Nebenkosten | keine Angabe |
| Hausgeld | 380 € |
Flächen
| Wohnfläche | 114 m² |
| Maklerprovision | keine Provision, courtagefrei |
Objekt Adresse
91056 Erlangen
- Bayern
Sonstige Angaben
| Baujahr | 2018 |
| Zimmer | 5 |
| Verfügbar ab | 15.04.2026 |
| Bad | 2 |
| Anzahl der Etagen im Haus | 2 |
| Inserat befindet sich im Stockwerk | 0 |
| Küche | Einbauküche |
| Bad | 2 |
| Bad | Dusche, Wanne |
| Boden | Fliesen, Kunststoff |
| Balkone | 0 |
| Garten | Ja |
| Terrassen | 1 |
| Keller | Ja |
| Energieausweistyp | Bedarfsausweis |
| Energieeffizienzklasse | A |
| Endenergiebedarf | 31 kWh/(m²*a) |
| Heizungsart | Fußbodenheizung |
| Energieträger/Befeuerung | Pellet |
Objektbeschreibung
-- Wohnen wie im Reiheneckhaus--
Diese hochwertige Maisonettewohnung vereint den Komfort einer modernen Eigentumswohnung mit dem Wohngefühl eines Reiheneckhauses – ideal für Paare und Familien.
In ruhiger, familienfreundlicher Lage von Erlangen-Büchenbach bietet das 2018 errichtete Effizienzhaus (KfW 40) auf 114 m² Wohnfläche (+ ca. 25 m² Keller, wohnraumähnlich nutzbar mit direktem Zugang) ein lichtdurchflutetes, durchdachtes Raumkonzept mit 5 Zimmern, Terrasse und Garten.
-- Wohnen & Genießen --
Der offene Wohn- und Essbereich ist das Herzstück des Hauses – hell, modern und großzügig.
Ein Highlight ist das integrierte Heimkino mit in die Decke eingelassener Leinwand und 7.1 Dolby-Atmos-Soundsystem – perfekt für Filmabende oder Gaming.
Die hochwertige Einbauküche mit Granitplatte und Bora-Kochfeld fügt sich harmonisch in das elegante Wohnambiente ein. Vom Wohnzimmer gelangen Sie direkt auf die 15 m² große Terrasse mit Südausrichtung und in den liebevoll angelegten 60 m² Garten. Eine elektrische Design-Markise erweitert den Wohnraum ins Grüne.
Im Erdgeschoss befindet sich außerdem noch ein heller Raum mit Fenster, der als Arbeitszimmer oder Schlafzimmer benutzt werden kann sowie ein modernes Dusch-Bad.
Das Obergeschoss beherbergt drei helle Schlafzimmer und ein modernes Badezimmer, das mit einer Badewanne, einer separaten Dusche und einem Waschbecken mit Spiegelschrank ausgestattet ist.
-- Komfort & Technik --
Die gesamte Wohnung ist mit einem kabelgebundenen Loxone-Smart-Home-System ausgestattet. Beleuchtung, Jalousien, Markise und Heizung lassen sich automatisiert, per Taster oder per App steuern.
Zwei moderne Badezimmer mit Regendusche, Fußbodenheizung in allen Räumen und kontrollierte Wohnraumlüftung schaffen Wohlfühlkomfort auf höchstem Niveau.
-- Mehr Platz für Freizeit & Arbeit --
Der Kellerraum (ca. 25 m²) ist gefliest, belüftet und verfügt über ein Fenster. Ideal als Hobbyraum, Homeoffice, Fitness- oder Saunabereich nutzbar.
Ein direkter Zugang führt zu den Gemeinschaftsräumen mit Wasch- und Fahrradbereich.
Ein Stellplatz direkt vor dem Haus mit Wallbox für E-Autos rundet das Angebot ab.
-- Nachhaltig & Effizient --
Das Energiekonzept überzeugt durch Pelletheizung, PV-Anlage mit Speicher (gemeinschaftlich mit WEG) und hervorragende Dämmung – Energieeffizienzklasse A.
Diese hochwertige Maisonettewohnung vereint den Komfort einer modernen Eigentumswohnung mit dem Wohngefühl eines Reiheneckhauses – ideal für Paare und Familien.
In ruhiger, familienfreundlicher Lage von Erlangen-Büchenbach bietet das 2018 errichtete Effizienzhaus (KfW 40) auf 114 m² Wohnfläche (+ ca. 25 m² Keller, wohnraumähnlich nutzbar mit direktem Zugang) ein lichtdurchflutetes, durchdachtes Raumkonzept mit 5 Zimmern, Terrasse und Garten.
-- Wohnen & Genießen --
Der offene Wohn- und Essbereich ist das Herzstück des Hauses – hell, modern und großzügig.
Ein Highlight ist das integrierte Heimkino mit in die Decke eingelassener Leinwand und 7.1 Dolby-Atmos-Soundsystem – perfekt für Filmabende oder Gaming.
Die hochwertige Einbauküche mit Granitplatte und Bora-Kochfeld fügt sich harmonisch in das elegante Wohnambiente ein. Vom Wohnzimmer gelangen Sie direkt auf die 15 m² große Terrasse mit Südausrichtung und in den liebevoll angelegten 60 m² Garten. Eine elektrische Design-Markise erweitert den Wohnraum ins Grüne.
Im Erdgeschoss befindet sich außerdem noch ein heller Raum mit Fenster, der als Arbeitszimmer oder Schlafzimmer benutzt werden kann sowie ein modernes Dusch-Bad.
Das Obergeschoss beherbergt drei helle Schlafzimmer und ein modernes Badezimmer, das mit einer Badewanne, einer separaten Dusche und einem Waschbecken mit Spiegelschrank ausgestattet ist.
-- Komfort & Technik --
Die gesamte Wohnung ist mit einem kabelgebundenen Loxone-Smart-Home-System ausgestattet. Beleuchtung, Jalousien, Markise und Heizung lassen sich automatisiert, per Taster oder per App steuern.
Zwei moderne Badezimmer mit Regendusche, Fußbodenheizung in allen Räumen und kontrollierte Wohnraumlüftung schaffen Wohlfühlkomfort auf höchstem Niveau.
-- Mehr Platz für Freizeit & Arbeit --
Der Kellerraum (ca. 25 m²) ist gefliest, belüftet und verfügt über ein Fenster. Ideal als Hobbyraum, Homeoffice, Fitness- oder Saunabereich nutzbar.
Ein direkter Zugang führt zu den Gemeinschaftsräumen mit Wasch- und Fahrradbereich.
Ein Stellplatz direkt vor dem Haus mit Wallbox für E-Autos rundet das Angebot ab.
-- Nachhaltig & Effizient --
Das Energiekonzept überzeugt durch Pelletheizung, PV-Anlage mit Speicher (gemeinschaftlich mit WEG) und hervorragende Dämmung – Energieeffizienzklasse A.
Ausstattung
Terrasse, Garten, Keller, Vollbad, Duschbad, Sauna, Einbauküche, Fliesen
Bemerkungen:
Highlights:
* 114 m² Wohnfläche + 25 m² wohnraumnaher Keller (gefliest, belüftet, mit Fenster)
* 60 m² Garten inkl. 15 m² Terrasse mit Südausrichtung
* Zwei Bäder mit bodentiefer Dusche, Hauptbad ausgestattet mit hochwertigen Badmöbeln
* Fußbodenheizung & kontrollierte Wohnraumlüftung
* Kabelgebundenes Smart-Home-System (Loxone) zur Steuerung von Licht, Heizung und Beschattung
* Hochwertige Einbauküche mit Granitplatte und Bora-Kochfeld mit integriertem Dunstabzug
* Integriertes Heimkino im Wohnzimmer (7.1 Soundsystem mit Dolby Atmos)
* Keller mit Sauna und direktem Zugang zu Gemeinschaftsräumen
* Elektrische Markise mit Automatiksteuerung
* Wallbox für E-Autos am Stellplatz direkt vor der Wohnung
* PV-Anlage mit Stromspeicher (Betrieb gemeinsam mit WEG)
* Energieeffizienzklasse A (Pelletheizung)
* Baujahr 2018, sehr gepflegter Zustand
* EG und Treppen gefliest, OG Bio-Vinylboden
Bemerkungen:
Highlights:
* 114 m² Wohnfläche + 25 m² wohnraumnaher Keller (gefliest, belüftet, mit Fenster)
* 60 m² Garten inkl. 15 m² Terrasse mit Südausrichtung
* Zwei Bäder mit bodentiefer Dusche, Hauptbad ausgestattet mit hochwertigen Badmöbeln
* Fußbodenheizung & kontrollierte Wohnraumlüftung
* Kabelgebundenes Smart-Home-System (Loxone) zur Steuerung von Licht, Heizung und Beschattung
* Hochwertige Einbauküche mit Granitplatte und Bora-Kochfeld mit integriertem Dunstabzug
* Integriertes Heimkino im Wohnzimmer (7.1 Soundsystem mit Dolby Atmos)
* Keller mit Sauna und direktem Zugang zu Gemeinschaftsräumen
* Elektrische Markise mit Automatiksteuerung
* Wallbox für E-Autos am Stellplatz direkt vor der Wohnung
* PV-Anlage mit Stromspeicher (Betrieb gemeinsam mit WEG)
* Energieeffizienzklasse A (Pelletheizung)
* Baujahr 2018, sehr gepflegter Zustand
* EG und Treppen gefliest, OG Bio-Vinylboden
Lage des Objektes
Erlangen-Büchenbach zählt zu den beliebtesten Wohnlagen der Stadt – grün, ruhig und familienfreundlich.
Kitas, Schulen, Spielplätze und Einkaufsmöglichkeiten (Rewe, Lidl, Rossmann, Apotheke) und öffentliche Verkehrsmittel liegen nur wenige Gehminuten entfernt.
Die Innenstadt, der Siemens-Campus sowie Adidas, Puma und Schaeffler sind schnell erreichbar.
* Spielplatz und Stadtteilhaus (mit Bibliothek, Café, Makerspace, …): 200m
* Einkaufsmöglichkeiten (REWE, Lidl, Metzger, Bäcker) / Hausarzt / Apotheke / Restaurant : 300m
* Bushaltestellen mit 4 Linien in die Innenstadt: 300m
* Fitnessstudio TV-Vital: 500m
* Heinrich-Kirchner Grundschule: 500m
* Diversite Kitas und Kindergärten: 750m
* Dummetsweiher & Mönauwald: 2km
* Freibad-West: 3km
* Erlanger Innenstadt (Hauptbahnhof): 5km (20 min mit Fahrrad, 12 Minuten mit Auto)
Infrastruktur (im Umkreis von 5 km):
Apotheke, Lebensmittel-Discount, Allgemeinmediziner, Kindergarten, Grundschule, Hauptschule, Realschule, Gymnasium, Gesamtschule, Öffentliche Verkehrsmittel
Kitas, Schulen, Spielplätze und Einkaufsmöglichkeiten (Rewe, Lidl, Rossmann, Apotheke) und öffentliche Verkehrsmittel liegen nur wenige Gehminuten entfernt.
Die Innenstadt, der Siemens-Campus sowie Adidas, Puma und Schaeffler sind schnell erreichbar.
* Spielplatz und Stadtteilhaus (mit Bibliothek, Café, Makerspace, …): 200m
* Einkaufsmöglichkeiten (REWE, Lidl, Metzger, Bäcker) / Hausarzt / Apotheke / Restaurant : 300m
* Bushaltestellen mit 4 Linien in die Innenstadt: 300m
* Fitnessstudio TV-Vital: 500m
* Heinrich-Kirchner Grundschule: 500m
* Diversite Kitas und Kindergärten: 750m
* Dummetsweiher & Mönauwald: 2km
* Freibad-West: 3km
* Erlanger Innenstadt (Hauptbahnhof): 5km (20 min mit Fahrrad, 12 Minuten mit Auto)
Infrastruktur (im Umkreis von 5 km):
Apotheke, Lebensmittel-Discount, Allgemeinmediziner, Kindergarten, Grundschule, Hauptschule, Realschule, Gymnasium, Gesamtschule, Öffentliche Verkehrsmittel
Sonstige Informationen
Heizungsart: Fußbodenheizung
Energieträger: Holzpellets
Makleranfragen nicht erwünscht. Nach § 7 UWG sind unaufgeforderte Kontaktaufnahmen durch Makler ohne ausdrückliche Einwilligung des Empfängers verboten!
ohne-makler (OM) ist weder Anbieter noch Vermittler der Immobilie. OM betreibt eine Plattform für Immobilieneigentümer, die unter anderem die gleichzeitige Veröffentlichung einzelner Inserate auf mehreren Immobilienportalen ermöglicht. Die Inhalte dieser Inserate werden ausschließlich von Dritten verantwortet. Für die Richtigkeit, Vollständigkeit oder Rechtmäßigkeit der Angaben übernimmt OM keine Haftung. Hinweise auf mögliche Rechtsverstöße können jederzeit gemeldet werden und werden nach Prüfung umgehend bearbeitet.
Terrasse Südseite
Garten & Terrasse
Garten Westseite
Terrasse Südseite
Stellplatz mit Wallbox
Haustür & Fahrradschuppen
Wohnzimmer
Wohnzimmer
Wohnküche
Wohnzimmer mit Beamer
Heimkino Wohnzimmer
Arbeitszimmer EG
Arbeitszimmer EG
Diele & Einbauschrank
Duschbad EG
Offener Treppenaufgang
Offener Treppenaufgang
Vollbad OG
Dusche Vollbad OG
Flur OG
Schlafzimmer 1 OG
Schlafzimmer 2 OG
Schlafzimmer 3 OG
Schlafzimmer 3 OG
Keller mit Sauna
Keller mit Sauna
Keller mit Sauna
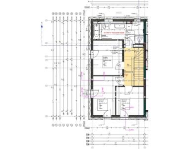
Grundriss EG
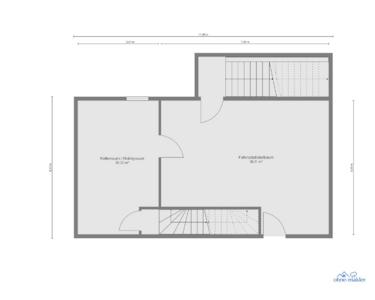
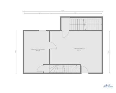
Grundriss OG
Grundriss KG
Außenansicht Südseite
Außenansicht / Fußweg
Außenanlage Siedlung
Grundriss EG
Grundriss OG
Grundriss KG
Grundriss EG
Grundriss KG
Grundriss OG