Exposé
Objektart:
Wohnung
» Etage
» Miete
Standort: Wohnung »
Deutschland » Nordrhein-Westfalen » Krefeld, Stadt (Kreis) » Krefeld
Helle 2-Zimmer-Wohnung im 1. OG – sofort bezugsfertig
Großes Wohnzimmer
Das Wichtigste auf einen Blick:
| Objektnummer: | 9320165 |
Preise
| Kaltmiete (netto) | 594 € |
| Nebenkosten | 376 € |
| Heizkosten enthalten | Ja |
| Kaution | 1.782 € |
Flächen
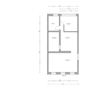
| Wohnfläche | 66 m² |
Objekt Adresse
Niederstraße 64
47829 Krefeld
- Nordrhein-Westfalen
Sonstige Angaben
| Baujahr | 1860 |
| Zimmer | 2 |
| Verfügbar ab | sofort |
| Bad | 1 |
| Anzahl der Etagen im Haus | 1 |
| Inserat befindet sich im Stockwerk | 1 |
| Küche | Einbauküche |
| Bad | 1 |
| Bad | Wanne |
| Boden | Laminat |
| Keller | Ja |
| Heizungsart | Zentralheizung |
| Energieträger/Befeuerung | Gas |
Objektbeschreibung
Diese freundlich geschnittene Wohnung im 1. Obergeschoss überzeugt durch viel Tageslicht und eine funktionale Raumaufteilung.
Sie ist frisch vorbereitet und kann ab sofort bezogen werden.
Das Vollbad mit Badewanne bietet angenehmen Komfort.
Im Jahr 2024 wurden das große Schlafzimmer- sowie das Badfenster zu modernen 3-Scheiben-Wärmeschutzfenstern erneuert – für ein angenehmes Wohnklima und bessere Energieeffizienz. Ein eigener Kellerraum sorgt für praktischen Stauraum.
Hinweis: Die Wohnung verfügt nicht über einen Balkon. Der nahegelegene Park um die Ecke bietet dafür eine attraktive Grünfläche zur Erholung im Freien.
Sie ist frisch vorbereitet und kann ab sofort bezogen werden.
Das Vollbad mit Badewanne bietet angenehmen Komfort.
Im Jahr 2024 wurden das große Schlafzimmer- sowie das Badfenster zu modernen 3-Scheiben-Wärmeschutzfenstern erneuert – für ein angenehmes Wohnklima und bessere Energieeffizienz. Ein eigener Kellerraum sorgt für praktischen Stauraum.
Hinweis: Die Wohnung verfügt nicht über einen Balkon. Der nahegelegene Park um die Ecke bietet dafür eine attraktive Grünfläche zur Erholung im Freien.
Ausstattung
Keller, Vollbad, Einbauküche, Laminat
Bemerkungen:
Die Ausstattung ist funktional und teilsaniert.
Über den guten Zustand bespricht man sich am besten bei der Besichtigung.
Bemerkungen:
Die Ausstattung ist funktional und teilsaniert.
Über den guten Zustand bespricht man sich am besten bei der Besichtigung.
Lage des Objektes
Die Immobilie liegt in belebter aber ruhiger Gegend in Krefeld Uerdingen.
In direkter Nähe befindet sich einerseits die kleine, verkehrsberuhigte Altstadt mit mehrere Restaurants, Ärzte, Cafés und Supermärkten. Auch verschiedene Grün- und Parkanlagen, Fitnessstudios, eine Bibliothek, ein Museum und eine Postannahmestelle erreichen Sie innerhalb von drei Minuten.
Als Highlight ist die Rheinpromenade mit Park in 100m Entfernung zu nennen.
Infrastruktur (im Umkreis von 5 km):
Apotheke, Lebensmittel-Discount, Allgemeinmediziner, Kindergarten, Grundschule, Hauptschule, Realschule, Gymnasium, Gesamtschule, Öffentliche Verkehrsmittel
In direkter Nähe befindet sich einerseits die kleine, verkehrsberuhigte Altstadt mit mehrere Restaurants, Ärzte, Cafés und Supermärkten. Auch verschiedene Grün- und Parkanlagen, Fitnessstudios, eine Bibliothek, ein Museum und eine Postannahmestelle erreichen Sie innerhalb von drei Minuten.
Als Highlight ist die Rheinpromenade mit Park in 100m Entfernung zu nennen.
Infrastruktur (im Umkreis von 5 km):
Apotheke, Lebensmittel-Discount, Allgemeinmediziner, Kindergarten, Grundschule, Hauptschule, Realschule, Gymnasium, Gesamtschule, Öffentliche Verkehrsmittel
Sonstige Informationen
Heizungsart: Zentralheizung
Energieträger: Gas
ohne-makler (OM) ist weder Anbieter noch Vermittler der Immobilie. OM betreibt eine Plattform für Immobilieneigentümer, die unter anderem die gleichzeitige Veröffentlichung einzelner Inserate auf mehreren Immobilienportalen ermöglicht. Die Inhalte dieser Inserate werden ausschließlich von Dritten verantwortet. Für die Richtigkeit, Vollständigkeit oder Rechtmäßigkeit der Angaben übernimmt OM keine Haftung. Hinweise auf mögliche Rechtsverstöße können jederzeit gemeldet werden und werden nach Prüfung umgehend bearbeitet.
Großes Wohnzimmer
Schlafzimmer
Schlafzimmer
Küche/Esszimmer
Küche/Esszimmer
Küche/Esszimmer
Vollbad
Eingangsbereich
Eingangsbereich