Exposé
Objektart:
Wohnung
» Etage
» Kauf
Standort: Wohnung »
Deutschland » Baden-Württemberg » Böblingen (Kreis) » Leonberg
Helle 4,5-Zimmer-Wohnung in ruhiger und zentraler Lage von Leonberg
Wohnzimmer
Das Wichtigste auf einen Blick:
| Objektnummer: | 9316516 |
Preise
| Kaufpreis | 439.000 € |
| Nebenkosten | keine Angabe |
| Hausgeld | 295 € |
Flächen
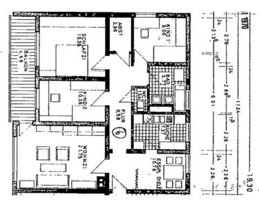
| Wohnfläche | 99,34 m² |
| Maklerprovision | keine Provision, courtagefrei |
Objekt Adresse
71229 Leonberg
- Baden-Württemberg
Sonstige Angaben
| Baujahr | 1971 |
| Zimmer | 4,5 |
| Verfügbar ab | 01.07.2026 |
| Bad | 1 |
| Garage/Stellplätze | 1 |
| Anzahl der Etagen im Haus | 3 |
| Inserat befindet sich im Stockwerk | 2 |
| Küche | Einbauküche |
| Bad | 1 |
| Boden | Fliesen, Laminat |
| Balkone | 1 |
| Terrassen | 0 |
| Garage/Stellplätze | 1 |
| Keller | Ja |
| Energieausweistyp | Verbrauch |
| Energieeffizienzklasse | E |
| Energieverbrauchkennwert | 136 kWh/(m²*a) |
| Heizungsart | Zentralheizung |
| Energieträger/Befeuerung | Gas |
Objektbeschreibung
Diese lichtdurchflutete 4,5-Zimmer-Wohnung liegt ruhig und dennoch zentral in der Leonberger Kernstadt – ideal für Familien und Paare, die ein gepflegtes Zuhause mit durchdachtem Grundriss suchen.
Der offene Wohn- und Essbereich bietet viel Raum für gemeinsames Leben. Der Süd-Balkon lädt zum Entspannen ein und sorgt für Sonne bis in die Abendstunden.
Zur Wohnung gehören eine Garage sowie ein Kellerraum mit Fenster, ideal als Stauraum oder kleiner Hobbyraum.
Der offene Wohn- und Essbereich bietet viel Raum für gemeinsames Leben. Der Süd-Balkon lädt zum Entspannen ein und sorgt für Sonne bis in die Abendstunden.
Zur Wohnung gehören eine Garage sowie ein Kellerraum mit Fenster, ideal als Stauraum oder kleiner Hobbyraum.
Ausstattung
Balkon, Keller, Einbauküche, Laminat, Fliesen
Bemerkungen:
Sanierungen und Modernisierungen
2010 – Kernsanierung:
• Erneuerung von Elektrik, Wasserleitungen und Heizkörpern
• Neues Badezimmer und separates WC
• Hochwertige Einbauküche
• Erneuerung aller Fußböden
2015 – Modernisierung:
• Hochwertiges Laminat in Wohn- und Schlafräumen
• Neues Badezimmer mit begehbarer Dusche und Badewanne sowie separates WC
• Innenwände in Wohn-und Schlafräumen neu verputzt
• Fenster und Haustüre vollständig erneuert.
Bemerkungen:
Sanierungen und Modernisierungen
2010 – Kernsanierung:
• Erneuerung von Elektrik, Wasserleitungen und Heizkörpern
• Neues Badezimmer und separates WC
• Hochwertige Einbauküche
• Erneuerung aller Fußböden
2015 – Modernisierung:
• Hochwertiges Laminat in Wohn- und Schlafräumen
• Neues Badezimmer mit begehbarer Dusche und Badewanne sowie separates WC
• Innenwände in Wohn-und Schlafräumen neu verputzt
• Fenster und Haustüre vollständig erneuert.
Lage des Objektes
Die Wohnung befindet sich in einer ruhigen Wohnstraße in der Leonberger Kernstadt.
Kindergärten, Schulen, Einkaufsmöglichkeiten und ÖPNV sind fußläufig erreichbar – perfekt für den Alltag und für Familien.
Infrastruktur (im Umkreis von 5 km):
Apotheke, Lebensmittel-Discount, Allgemeinmediziner, Kindergarten, Grundschule, Hauptschule, Realschule, Gymnasium, Gesamtschule, Öffentliche Verkehrsmittel
Kindergärten, Schulen, Einkaufsmöglichkeiten und ÖPNV sind fußläufig erreichbar – perfekt für den Alltag und für Familien.
Infrastruktur (im Umkreis von 5 km):
Apotheke, Lebensmittel-Discount, Allgemeinmediziner, Kindergarten, Grundschule, Hauptschule, Realschule, Gymnasium, Gesamtschule, Öffentliche Verkehrsmittel
Sonstige Informationen
Heizungsart: Zentralheizung
Energieträger: Gas
Makleranfragen nicht erwünscht. Nach § 7 UWG sind unaufgeforderte Kontaktaufnahmen durch Makler ohne ausdrückliche Einwilligung des Empfängers verboten!
ohne-makler (OM) ist weder Anbieter noch Vermittler der Immobilie. OM betreibt eine Plattform für Immobilieneigentümer, die unter anderem die gleichzeitige Veröffentlichung einzelner Inserate auf mehreren Immobilienportalen ermöglicht. Die Inhalte dieser Inserate werden ausschließlich von Dritten verantwortet. Für die Richtigkeit, Vollständigkeit oder Rechtmäßigkeit der Angaben übernimmt OM keine Haftung. Hinweise auf mögliche Rechtsverstöße können jederzeit gemeldet werden und werden nach Prüfung umgehend bearbeitet.
Bad
Schlafzimmer
Küche